Stylish Harborne property combining character and contemporary living minutes from local amenities.
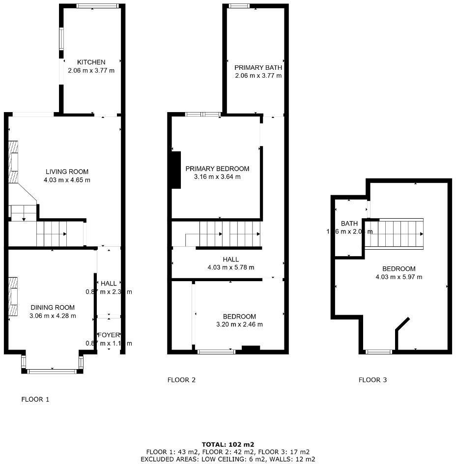
Three double bedrooms including loft en‑suite and walk‑in wardrobe
Period features: high ceilings, bay window, original fireplace
Modern kitchen with integrated appliances and luxury four‑piece bathroom
Two‑tiered low‑maintenance garden with defined seating area
Plentiful built‑in storage across three floors
Small plot size; garden limited for larger extensions or landscaping
High local crime rate — consider security measures
Extension potential (STPP) but no planning permission yet
This well-presented three-bedroom Victorian terrace spans three floors and blends period character with modern fittings. High ceilings, a bay-windowed dining/study and a cosy lounge with original fireplace create flexible living spaces. The loft conversion provides an en-suite bedroom and walk-in wardrobe, useful for family or rental use.
The kitchen is contemporary with integrated appliances and the principal bathroom is a luxury four-piece suite. Storage is plentiful throughout and the rear garden offers two-tiered seating, lawn and mature planting — a low-maintenance outside area for entertaining or children.
Practical considerations: the plot is small and the neighbourhood records higher crime levels than average, which may affect security needs. There is excellent potential to extend subject to planning permission (STPP) but no permissions are currently granted. Freehold tenure and convenient Harborne location close to schools, transport and amenities make this a strong option for families and professionals seeking space and character near the city centre.
3 bedroom terraced house for sale in Station Road, Harborne, Birmingham, B17 9JT, B17 — £395,000 • 3 bed • 1 bath • 1654 ft²
3 bedroom terraced house for sale in Station Road, Harborne, Birmingham, B17 9LS, B17 — £495,000 • 3 bed • 1 bath • 1209 ft²
3 bedroom end of terrace house for sale in Greenfield Road, Harborne, B17 — £310,000 • 3 bed • 1 bath • 990 ft²
3 bedroom terraced house for sale in South Street, Harborne, B17 — £425,000 • 3 bed • 2 bath • 871 ft²
3 bedroom end of terrace house for sale in North Road, Harborne, B17 — £410,000 • 3 bed • 2 bath • 1206 ft²
3 bedroom terraced house for sale in Regent Road, Harborne, Birmingham, B17 — £450,000 • 3 bed • 2 bath • 1045 ft²


































































































































