Expansive terraces and sweeping waterfront vistas for high-impact city living.
Approximately 2,500 sqft duplex penthouse with dramatic city views
Two large terraces, main terrace seats circa 30 people
Top terrace includes media wall and electric roof
Three bedrooms, two bathrooms; circa five principal rooms total
Leasehold tenure — check length and service charges
Very slow broadband speeds reported on site
High local crime levels — consider security needs
Located in cosmopolitan, multicultural student neighbourhood with many amenities
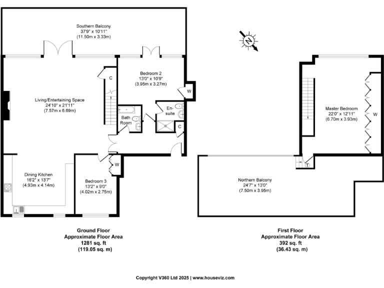
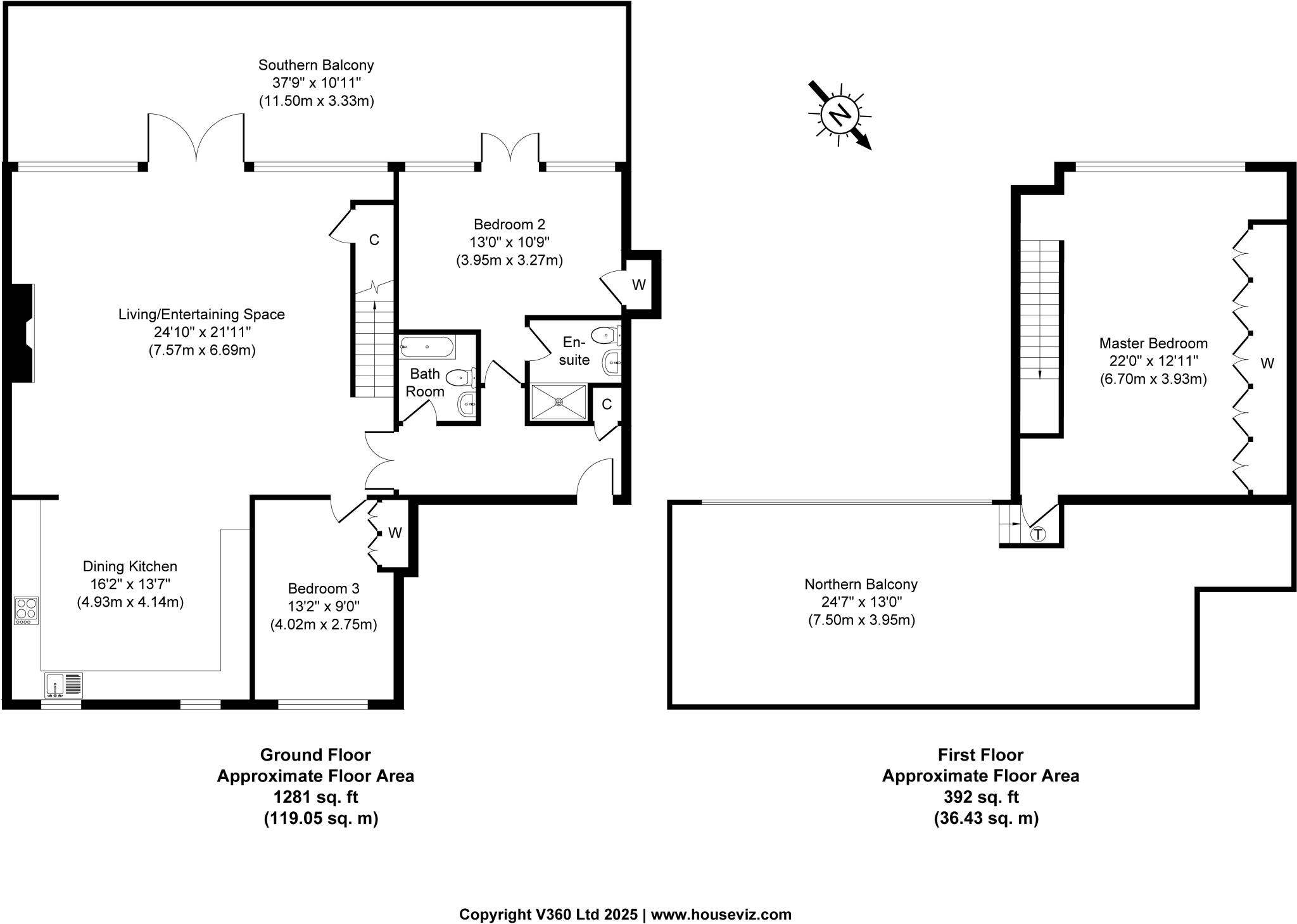
This duplex penthouse occupies an iconic Liverpool City Centre position and offers exceptionally large living space across approximately 2,500 sq ft. Two expansive outdoor terraces provide direct, elevated views of the Royal Liver Building, Town Hall, River Mersey and St George’s Hall — the main terrace accommodates seating for around 30 people and the top terrace features a media wall and an electric roof.
Internally the home offers three bedrooms, two bathrooms and generous entertaining rooms across a multi‑storey layout. The size and layout suit buyers seeking a standout city pied‑à‑terre, a high‑profile private residence, or an investor targeting premium short‑let potential (area is a cosmopolitan, multicultural student neighbourhood with abundant nearby amenities and transport links).
Important practical points are clear: the property is leasehold and broadband speeds are reported as very slow. The immediate area records higher crime levels, so prospective purchasers should factor security and ongoing management into their considerations. All measurements and descriptions are approximate; verification by inspection and survey is recommended.
This is a rare chance to own one of Liverpool’s most recognisable penthouses with dramatic roofline views and substantial outdoor entertaining space — a property with strong visual impact and a clear need for informed due diligence.
3 bedroom apartment for sale in 21 Colquitt Street, Liverpool, L1 — £599,999 • 3 bed • 2 bath • 1264 ft²
2 bedroom penthouse for sale in West Tower, Liverpool, L3 — £1,750,000 • 2 bed • 2 bath • 2984 ft²
3 bedroom penthouse for sale in William Jessop Way, Liverpool, Merseyside, L3 — £500,000 • 3 bed • 2 bath • 1486 ft²
3 bedroom penthouse for sale in Three Bedroom Penthouse, Colquitt Street, L1 — £495,000 • 3 bed • 3 bath • 1299 ft²
3 bedroom apartment for sale in Mann Island, Liverpool, L3 — £525,000 • 3 bed • 2 bath • 1155 ft²
3 bedroom penthouse for sale in West Tower, 8 Brook Street, Liverpool, Merseyside, L3 — £1,750,000 • 3 bed • 2 bath














