WA16 0HF - 7 bedroom detached house for sale in Chester Road, Tabley,…

View on Property Piper

7 bedroom detached house for sale in Chester Road, Tabley, WA16

Summary - TABLEY GRANGE CHESTER ROAD TABLEY KNUTSFORD WA16 0HF

7 bed 4 bath Detached

Spacious 7-bed Georgian house with annexe, huge grounds and outbuilding potential..
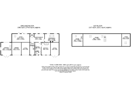
Impressive 5,500 sq ft main house with seven double bedrooms
Separate two-bedroom annexe with previous short‑let income history
Large grounds of about 2.1 acres with tennis court and mature planting
Extensive outbuildings: garages, workshops and unused first-floor space
Recently renovated interior but EPC rating E and solid brick walls uninsulated
No central heating system currently; electric heaters assumed
Fronts busy A‑road (Chester Road) — noise and road access considerations
Very slow broadband; excellent mobile signal
A substantial Georgian family home set in about 2.1 acres, Tabley Grange combines period character with a recent extensive refurbishment. The main house offers around 5,500 sq ft of living space with seven good-sized double bedrooms, generous reception rooms, and attractive features such as oak floors, original shutters and two wood-burning stoves. A separate two-bedroom guest apartment/annexe provides flexible accommodation or rental potential and has been previously let short-term.

The outside space is a major asset: sweeping gravel drive, mature planting, a large lawn, hard tennis court and extensive outbuildings including garages, workshops and undeveloped first-floor space. The outbuilding range offers scope for hobby use, small home business facilities or further conversion subject to consents. The property sits within a wide plot with countryside views and good privacy from tall trees and borders.

Buyers should note a number of important practical considerations. There is currently no central heating system installed (electric heaters assumed), the main walls are solid brick with no assumed insulation, and the EPC rating is E. Broadband speeds are reported as very slow despite excellent mobile signal. The house fronts a very busy A-road (Chester Road) which may affect access, noise and privacy; a medium flood risk is recorded for the area. Council tax is described as relatively expensive and local crime levels are reported as high.

This house will suit a buyer seeking a large, characterful family home with flexible accommodation and outbuilding potential who is comfortable managing rural servicing challenges and upgrading heating/insulation where desired. The separate annexe and outbuildings add tangible income or project potential for investors or multi-generational families.

Property Details

Brochure Descriptions

Image Descriptions

Floorplan Description

Rooms

Textual Property Features

Target Audience

AI Tags

Detected Visual Features

EPC Details

Nearby Schools

Nearest Bars And Restaurants

,,,,}

Nearest General Shops

,,}

Nearest Grocery shops

,,}

Nearest Supermarkets

,,}

Nearest Religious buildings

,,}

Nearest Medical buildings

,,,}

Nearest Airports

}

Nearest Leisure Facilities

,,,,}

Nearest Tourist attractions

,,}

Nearest Train stations

,,,,}

Nearest Bus stations and stops

,,,,}

Nearest Hotels

,,}

Tags

Local Market Stats

AirBnB Data

Similar Properties

Meta

High Res Images

Compatible Images

Low res Images

Thumbnails

Raw Images

High Res Floorplan Images

Compatible Floorplan Images

Low res Floorplan Images

FloorplanImages Thumbnail

Raw Floorplan Images