Period charm meets modern family living in a prime Ealing location..
Bright Victorian bay-front principal bedroom with high ceilings
Thoughtful full refurbishment — modern kitchen and updated finishes
Sunny private rear garden; small plot size for larger families
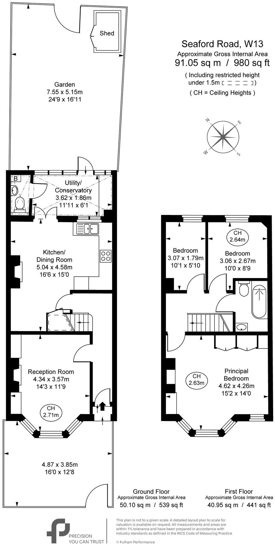
Three bedrooms, one family bathroom only
Freehold tenure; approximately 980 sq ft (91.05 sq m)
Excellent local schools and close to the Elizabeth Line
Area records higher-than-average crime; plan for security measures
Solid brick walls likely without cavity insulation (assumed)
This recently refurbished Victorian mid-terrace blends preserved period character with modern comfort, ideal for a growing family. High ceilings, a bay-front principal bedroom and a bright front reception room give the house strong kerb appeal and generous natural light. The kitchen/dining flow and sunny rear garden make everyday family life and casual entertaining easy.
Practical details are straightforward: three bedrooms, one family bathroom and about 980 sq ft of living space on a freehold title. The property sits in a highly regarded school catchment and is a short journey to the Elizabeth Line, parks and local shops — a location that supports family routines and commuting alike.
There are material points to note so buyers can plan ahead. The plot and garden are small for a family seeking extensive outdoor space; the house has one bathroom only. The area records higher-than-average crime, and the solid brick walls likely lack cavity insulation (assumed). Council tax is above average. While recently refurbished throughout, future buyers should budget for possible loft or rear extensions if extra space is required.
Overall, this home suits buyers who value period charm and a well-considered renovation in a strong Ealing location. It offers immediate move-in comfort plus clear potential to extend and personalise, making it a practical family purchase with room to grow.
3 bedroom terraced house for sale in Glenfield Terrace, Northfields , Ealing, W13 — £950,000 • 3 bed • 3 bath • 851 ft²
3 bedroom terraced house for sale in Green Avenue, Northfields, W13 — £950,000 • 3 bed • 2 bath • 1112 ft²
3 bedroom house for sale in Alexandria Road, Ealing, London, W13 — £800,000 • 3 bed • 2 bath • 1108 ft²
3 bedroom terraced house for sale in Bonchurch Road, Northfields, Ealing , W13 — £795,000 • 3 bed • 2 bath • 1160 ft²
3 bedroom terraced house for sale in Leighton Road, London, W13 — £900,000 • 3 bed • 2 bath • 1213 ft²
3 bedroom terraced house for sale in Regina Terrace, Northfields, Ealing, W13 — £895,000 • 3 bed • 2 bath • 1044 ft²














































































