RM7 0SH - 3 bedroom semidetached house for sale in Gorseway, Rush Gre…

View on Property Piper

3 bedroom semi-detached house for sale in Gorseway, Rush Green, RM7 0SH, RM7

Summary - 126 GORSEWAY ROMFORD RM7 0SH

3 bed 1 bath Semi-Detached

**Standout Features:**
- Three spacious bedrooms
- Modern family bathroom
- Bright, well-maintained interior
- Long private garden ideal for entertaining
- Garage and off-street parking for three vehicles
- Optional loft conversion and lean-to extension (subject to planning)
- Close proximity to Romford Station and local amenities
- Set in a desirable family-friendly area

Discover this charming three-bedroom semi-detached home in the sought-after area of Romford (RM7 0SH), perfect for families and savvy investors alike. With a bright and welcoming interior and a spacious family bathroom, this property is ready for comfortable living. The extensive private garden is perfect for entertaining or a safe place for the kids to play, and the garage plus driveway can accommodate up to three vehicles, an invaluable asset in the city.

Not only does this property offer immediate comfort, but it also presents exciting potential for future renovations, such as a loft conversion or lean-to extension, subject to planning approval. Located just 0.9 miles from Romford Station, you'll enjoy excellent transport links to Central London. The neighborhood is family-friendly, with several reputable schools and healthcare facilities within easy walking distance. With the local crime rate being very low, this property provides a sense of security and community.

Don’t miss out on this exceptional opportunity that combines lifestyle and future value in one lovely package, making it an ideal choice for first-time buyers and investors looking to enhance their portfolio. Secure your viewing today before it’s gone!

Property Details

Image Descriptions

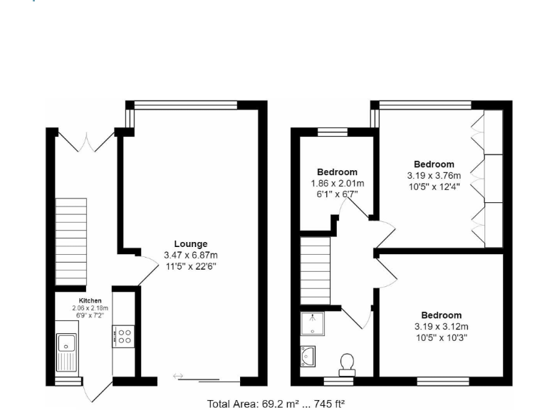
Floorplan Description

Rooms

Textual Property Features

Detected Visual Features

EPC Details

Nearby Schools

Nearest Bars And Restaurants

,,,,}

Nearest General Shops

,,}

Nearest Grocery shops

,,}

Nearest Supermarkets

,,}

Nearest Religious buildings

,,}

Nearest Medical buildings

,,,}

Nearest Airports

,}

Nearest Leisure Facilities

,,,,}

Nearest Tourist attractions

,,}

Nearest Train stations

,,,,}

Nearest Bus stations and stops

,,,,}

Nearest Hotels

,,}

Tags

Local Market Stats

AirBnB Data

Meta

High Res Images

Compatible Images

Low res Images

Thumbnails

Raw Images

High Res Floorplan Images

Compatible Floorplan Images

Low res Floorplan Images

FloorplanImages Thumbnail

Raw Floorplan Images