Spacious period terrace with private garden near top-rated schools.
Large main bedroom plus three good-sized double bedrooms
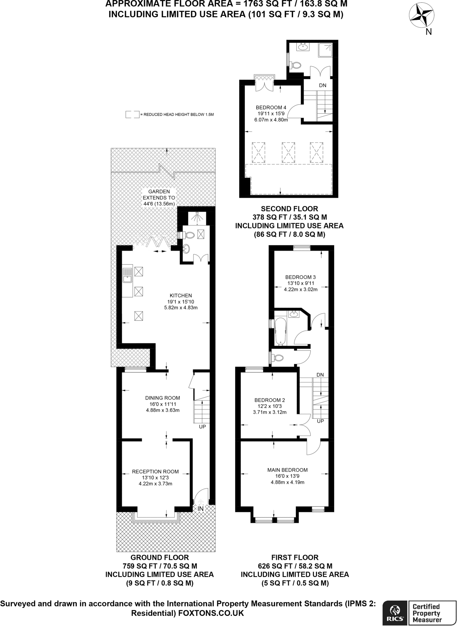
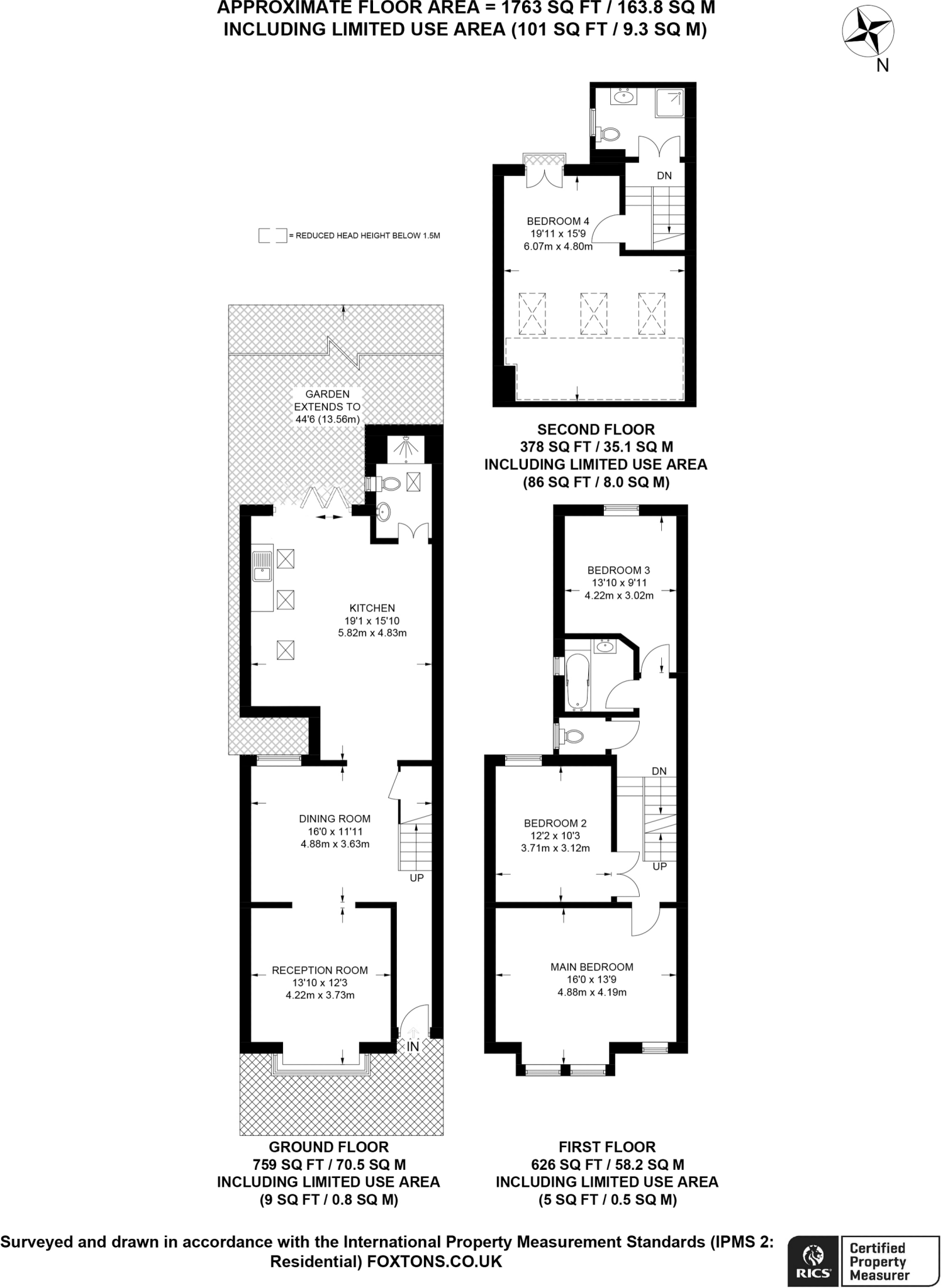
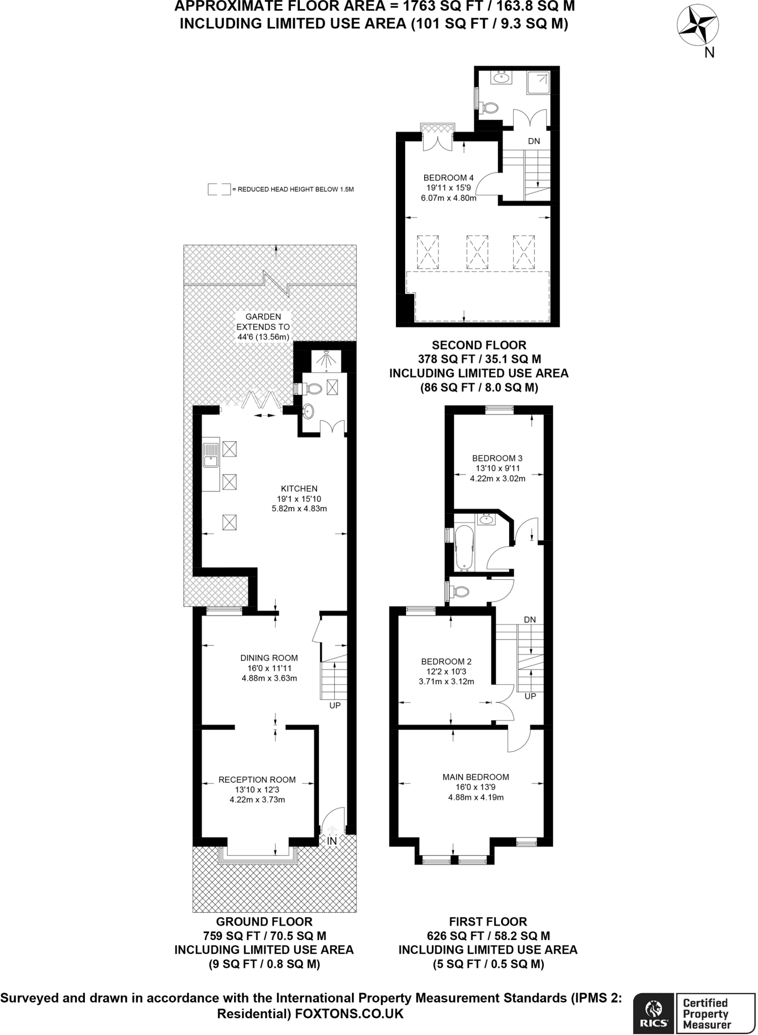
Set on a quiet, sought-after West Dulwich street, this late-Victorian mid-terrace offers generous, family-friendly living across multiple storeys. The house has two bright reception rooms, a large main bedroom plus three further double bedrooms, and a private rear garden — all useful for everyday family life and entertaining. Local shops, cafes and excellent schools are within easy reach, and fast broadband and strong mobile signal suit modern working-from-home routines.
Practical strengths include a spacious kitchen and multiple bathroom suites, plus freehold tenure and solid brick construction typical of its period. The property is average-sized overall with a small plot, making it manageable for a family seeking space without onerous grounds maintenance.
Buyers should note a few material points: the listing text refers to three bathroom suites while the formal data records two — this should be confirmed. Some interior elements (carpets, certain finishes) are dated and there is assumed lack of wall insulation, so work will be needed for energy-efficiency improvements and cosmetic updating. Double glazing is installed but the fitment date is unknown.
In short, this is a substantial period home with clear family appeal and scope for improvement. It will suit buyers wanting well-proportioned rooms and nearby amenities, and those prepared to invest modestly to modernise heating efficiency and interior finishes.
4 bedroom house for sale in Warren Close, West Dulwich, London, SE21 — £800,000 • 4 bed • 1 bath • 1114 ft²
4 bedroom terraced house for sale in Birkbeck Place, West Dulwich, London, SE21 — £1,150,000 • 4 bed • 2 bath • 1512 ft²
3 bedroom terraced house for sale in Chalford Road, West Dulwich, London, SE21 — £875,000 • 3 bed • 1 bath • 1130 ft²
5 bedroom detached house for sale in Rosendale Road, SE21, West Dulwich, London, SE21 — £1,400,000 • 5 bed • 3 bath • 1856 ft²
5 bedroom semi-detached house for sale in Rosendale Road, London, SE21 — £1,500,000 • 5 bed • 3 bath • 2674 ft²
4 bedroom end of terrace house for sale in Tritton Road, London, SE21 — £1,100,000 • 4 bed • 2 bath • 1400 ft²














































































































































































































