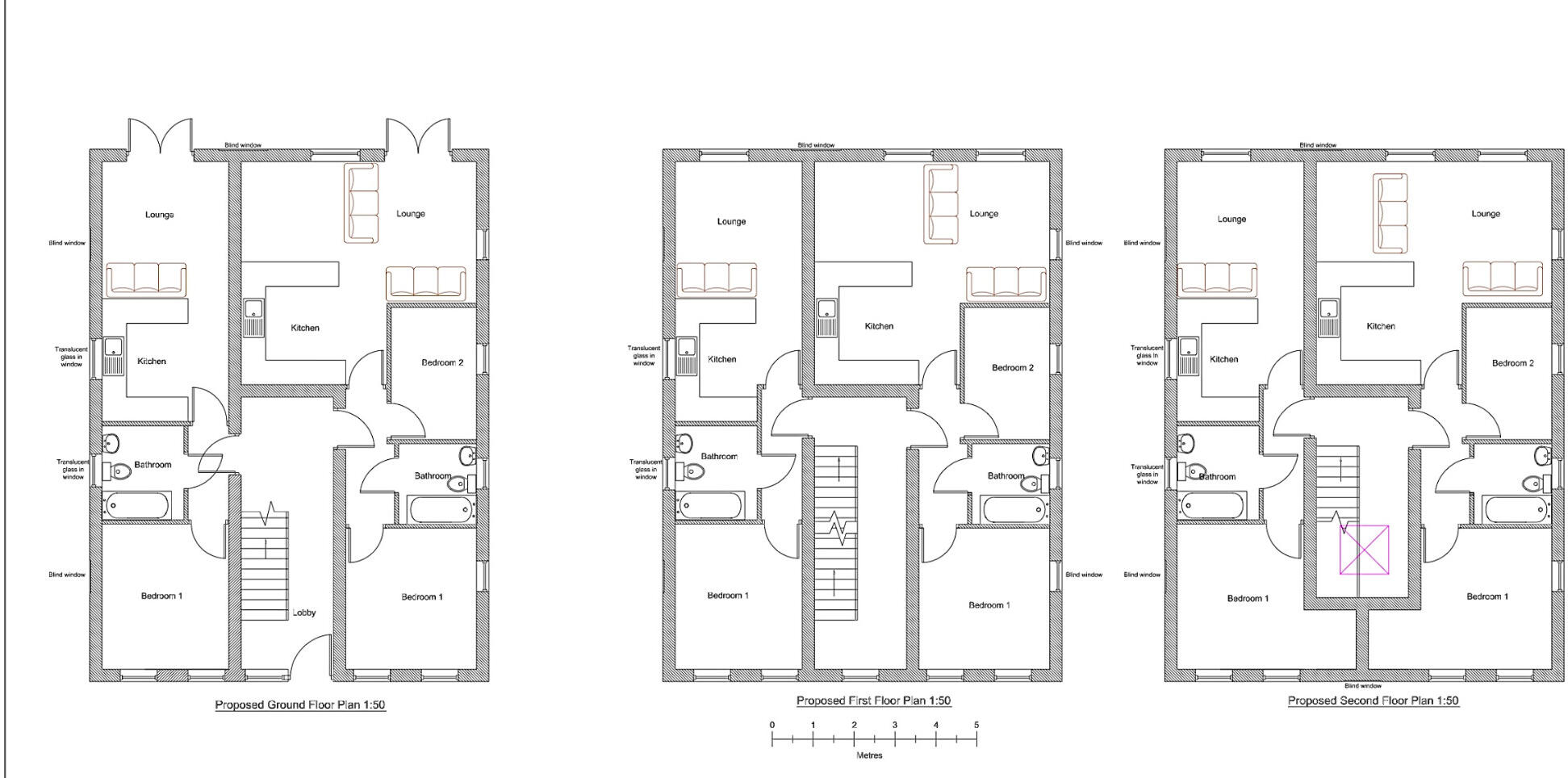
**Standout Features:**
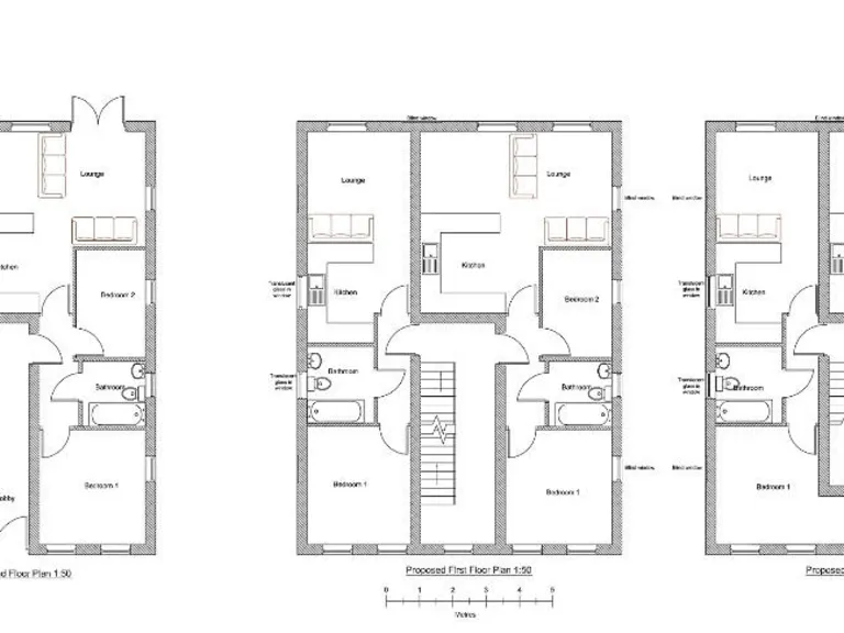
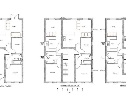
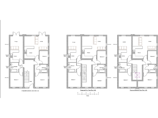
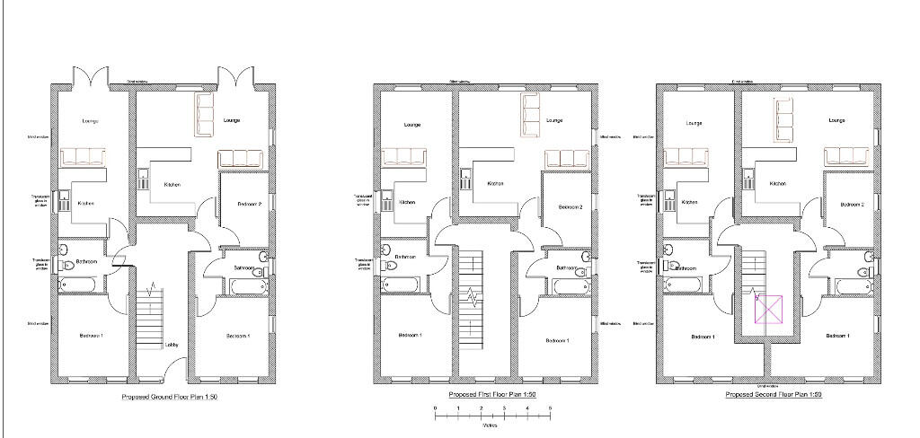
- **Planning Approval:** Granted for six apartments as of May 22, 2023.
- **Prime Location:** Situated in Trowbridge Town Centre with easy access to transport, shops, and amenities.
- **Type of Property:** Development site on a compact urban plot ideal for rental investment.
- **Use Potential:** Suitable for residential apartments or co-living spaces.
**Concerns/Considerations:**
- **Plot Size:** Limited outdoor space; primarily designed for urban living.
- **CIL and S106 Liabilities:** These costs will be the responsibility of the purchaser.
**Summary:**
Seize the opportunity to develop a prime site in Trowbridge Town Centre featuring approved plans for six apartments, perfect for a build-to-rent investment or co-living project. This development plot boasts a modern three-story brick design, strategically located near public transport and a plethora of local amenities, making it an attractive prospect for renters and families alike. With no visible garden and a compact footprint typical of urban plots, this site offers a unique chance to capitalize on the burgeoning rental market in a sought-after location. Potential buyers should note applicable CIL and S106 liabilities. Act fast—development opportunities like this are rare in prime locations!
4 bedroom apartment for sale in The Shires, Trowbridge, BA14 — £150,000 • 4 bed • 4 bath
Land for sale in Fore Street, Trowbridge, BA14 — £650,000 • 1 bed • 1 bath
3 bedroom end of terrace house for sale in Roundstone Street, Trowbridge, BA14 — £250,000 • 3 bed • 3 bath • 2361 ft²
Residential development for sale in 26 Fore Street, Trowbridge, Wiltshire, BA14 — £1,000,000 • 1 bed • 1 bath • 21126 ft²
Land for sale in Stallard Street, Trowbridge, Wiltshire, BA14 — POA • 1 bed • 1 bath
Plot for sale in Plots with planning behind Lion & Fiddle, Trowbridge Road, Hilperton, Trowbridge, BA14 — £275,000 • 1 bed • 1 bath • 2300 ft²






















