Substantial home with land and large commercial outbuilding, ideal for lifestyle change.
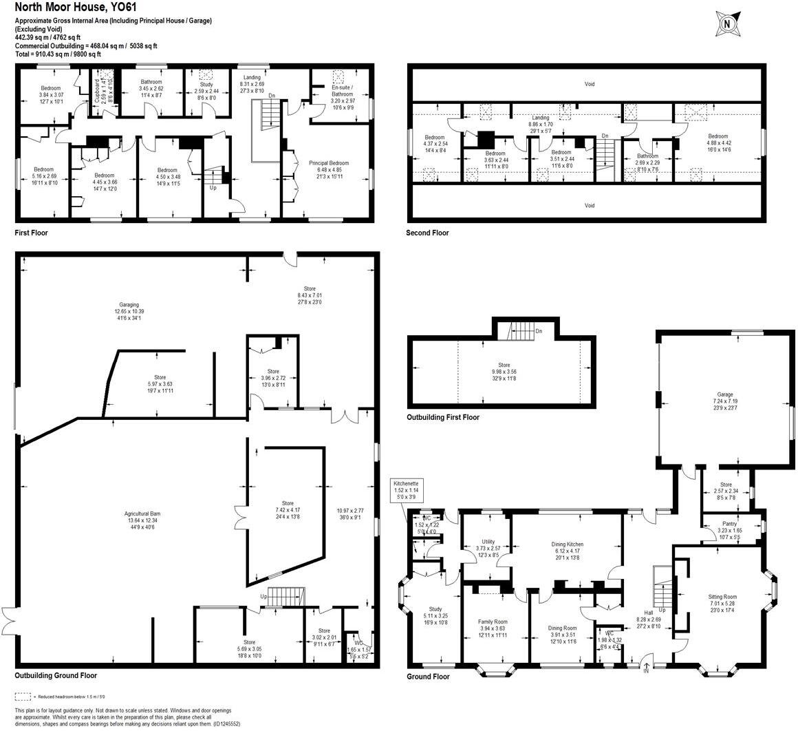
Five double bedrooms and three bathrooms across three floors
Set within approximately 2.2 acres on the edge of Easingwold, this substantial detached house offers flexible family living alongside significant business or ancillary space. The main residence spans around 4,762 sq ft with five double bedrooms, three bathrooms and multiple reception rooms arranged across three floors — ideal for large families who need dedicated living, working and hobby areas.
Outside, mature gardens, a terraced alfresco area and a small woodland create private outdoor space with scope for paddocks, stables or productive planting. A separate commercial building of over 5,000 sq ft sits on the plot, providing genuine scope for a home-based enterprise, storage, conversion to agricultural outbuildings, or creative reuse (subject to planning).
Practical details to note: heating is oil-fired with boiler, and the property carries an expensive council tax band — factors that contribute to running costs. The second-floor accommodation offers clear potential but will need renovation or reconfiguration to suit a buyer’s precise requirements. The setting is rural and relatively isolated, which suits those seeking privacy but may mean longer journeys for some services.
Overall this is a rare mixed-use opportunity: a roomy, characterful family house with substantial land and a large commercial unit, best suited to buyers seeking lifestyle change, equestrian use, small-scale enterprise or renovation potential in a peaceful rural setting.
5 bedroom house for sale in Moor House, Little Hutton, Thirsk, YO7 — £875,000 • 5 bed • 4 bath • 3328 ft²
3 bedroom detached house for sale in The Green, Raskelf, York, North Yorkshire, YO61 — £699,950 • 3 bed • 1 bath • 2527 ft²
Equestrian facility for sale in Fair View, Old Byland, York, YO62 — £950,000 • 4 bed • 3 bath • 1675 ft²
5 bedroom detached house for sale in Husthwaite Road, Easingwold, York, North Yorkshire, YO61 — £1,295,000 • 5 bed • 3 bath • 2706 ft²
4 bedroom detached house for sale in Oulston Road, Easingwold, York, YO61 — £835,000 • 4 bed • 3 bath • 2550 ft²
4 bedroom detached house for sale in Little Fryup, Whitby, YO21 — £795,000 • 4 bed • 4 bath • 3397 ft²






































































































