Extended, private garden, garage and flexible three-storey family space in Haydon End.
New rear sitting-room extension with skylight and garden access
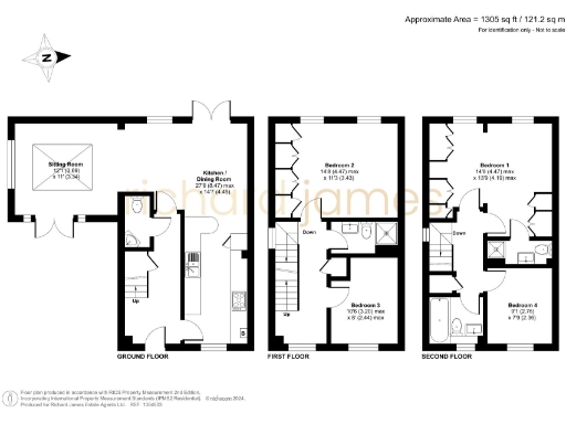
Tucked on a generous corner plot in Haydon End, this extended four-bedroom terraced home balances practical family living with contemporary touches. The ground floor offers a bright 27ft kitchen/diner and a newly extended sitting room with a skylight, creating light-filled communal spaces that flow directly to a private, non-overlooked garden.
Accommodation is arranged over three floors to suit growing families. The first floor provides two well-proportioned bedrooms and a family bathroom; the top floor houses an impressive principal bedroom with an en-suite and a flexible fourth bedroom ideal for guests, a nursery or a home office. The property totals about 1,281 sq ft and benefits from three bathrooms, reducing morning congestion for busy households.
Practical strengths include a garage with additional parking, freehold tenure, very low local crime, no flood risk and fast broadband — useful for remote working and schooling. The home sits in an affluent, family-orientated neighbourhood with several good-rated nearby schools and local amenities including parks and sports facilities.
Notable points to consider: room sizes are described as average overall, so buyers wanting very large reception spaces should check dimensions. While the extension and finishes are presented as modern, any buyer who requires full modernisation or specific bespoke finishes should allow for potential further investment. Council tax is moderate.
4 bedroom semi-detached house for sale in Primrose Close, Haydon Wick, Swindon, SN25 — £375,000 • 4 bed • 2 bath • 990 ft²
4 bedroom end of terrace house for sale in Mariner Road, Swindon, SN25 — £340,000 • 4 bed • 2 bath • 1485 ft²
4 bedroom terraced house for sale in Dorney Road, Swindon, Wiltshire, SN25 — £325,000 • 4 bed • 2 bath • 1191 ft²
4 bedroom detached house for sale in Hewlett Place, Swindon, SN25 — £400,000 • 4 bed • 2 bath • 1216 ft²
4 bedroom semi-detached house for sale in Estella Close, Swindon, Wiltshire, SN25 — £335,000 • 4 bed • 3 bath • 1299 ft²
4 bedroom detached house for sale in Swindon, Wiltshire, SN25 — £425,000 • 4 bed • 2 bath • 1509 ft²






















































































