CH60 1XA - 4 bed spacious detached family home in Wirral South, CH60 1…

View on Property Piper

4 bedroom detached house for sale in Brimstage Road, Heswall, Wirral, CH60

Summary - Summerfield House Summerfield House Brimstage Road, Heswall, Wirral CH60 1XA

4 bed 2 bath Detached

Chain-free four-bedroom detached home with double garage and large private garden in Heswall.
- Chain free detached four-bedroom house on large plot
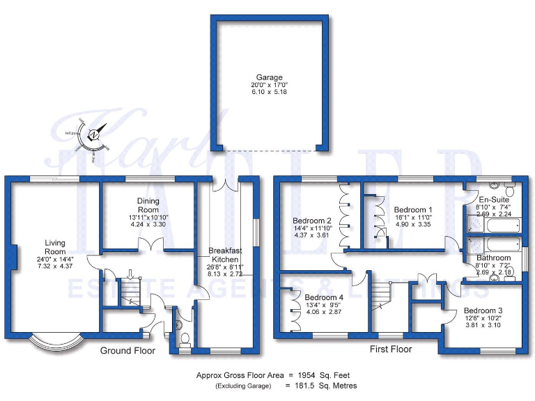
- Approximately 1,954 sq ft across multiple storeys
- Master bedroom with four-piece ensuite; family four-piece bathroom
- Large breakfast kitchen plus separate dining room
- Bay-front living room with patio doors to sunny garden
- Large block-paved driveway and double garage; summer house
- Council tax noted as quite expensive; consider running costs
- No flood risk; excellent mobile and broadband coverage
Set back on a large plot in highly sought-after Heswall, this freehold four-bedroom detached house offers nearly 2,000 sq ft of living space and strong family-focused layout. The home is offered chain-free and benefits from a large block-paved driveway, double garage and private rear garden with summer house — practical for parking, storage and outdoor living.

Inside, a spacious entrance hall leads to a generous living room with bay window and patio doors that open onto the garden, plus a large breakfast kitchen and a separate dining room. Upstairs are four double bedrooms, including a master with a four-piece ensuite; a well-appointed four-piece family bathroom serves the remaining bedrooms. The property is bright, modern in style and arranged over multiple storeys for clear separation of living and sleeping space.

The location is a major selling point: low local crime, excellent mobile and broadband speeds, very affluent area and close to several 'Good' rated primary and secondary schools. Commuter links and local amenities are within easy reach, making this suitable for families or downsizers who want space without compromise.

Buyers should note the council tax is described as quite expensive — a material ongoing cost to factor into budgets. No significant flood risk is recorded. Early viewing is recommended to appreciate the scale, layout and garden setting of this substantial detached home.

Property Details

Image Descriptions

Floorplan Description

Rooms

Textual Property Features

Target Audience

AI Tags

Detected Visual Features

Nearby Schools

Nearest Bars And Restaurants

,,,,}

Nearest General Shops

,,}

Nearest Grocery shops

,,}

Nearest Supermarkets

,,}

Nearest Religious buildings

,,}

Nearest Medical buildings

,,,}

Nearest Airports

}

Nearest Leisure Facilities

,,,,}

Nearest Tourist attractions

,,}

Nearest Train stations

,,,,}

Nearest Bus stations and stops

,,,,}

Nearest Hotels

,,}

Tags

Local Market Stats

Similar Properties

Meta

High Res Images

Compatible Images

Low res Images

Thumbnails

Raw Images

High Res Floorplan Images

Compatible Floorplan Images

Low res Floorplan Images

FloorplanImages Thumbnail

Raw Floorplan Images