**Standout Features:**
- Two spacious bedrooms and two bathrooms
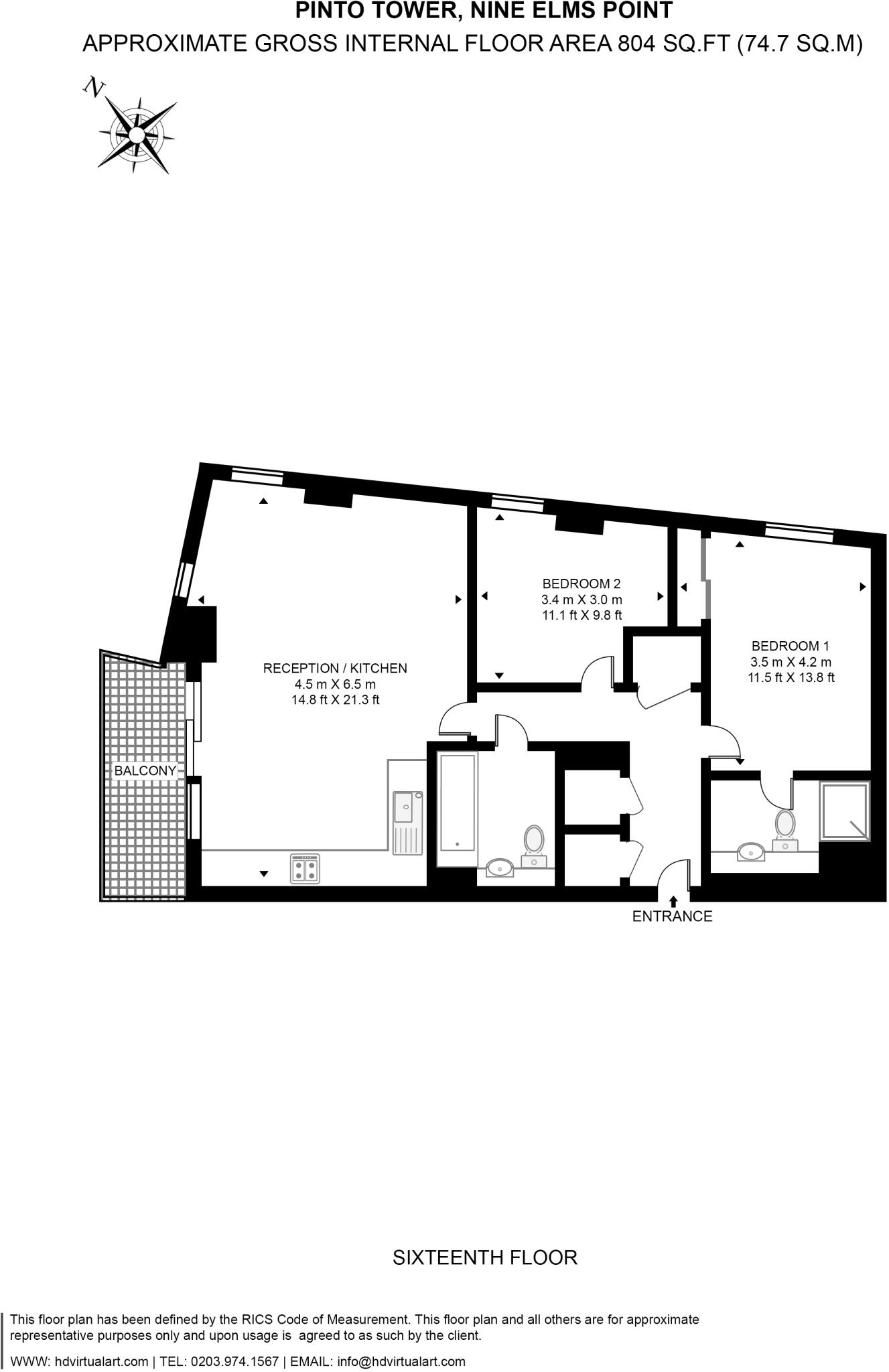
- Approx. 804 square feet on the 16th floor
- Private balcony with views over West London
- Part of Nine Elms Point development with substantial amenities
- 24-hour concierge, residential gym, and business lounge
- Excellent transport links with Nine Elms Tube extension (Zone 1)
**Concerns:**
- Leasehold tenure with annual ground rent of £730
- Higher council tax and area deprivation challenges
Discover your new home in the heart of London at this impressive two-bedroom apartment situated on the 16th floor of Pinto Tower, within the vibrant and rapidly developing Nine Elms Point neighborhood. Spanning approximately 804 square feet, this dual aspect residence features a spacious open-plan living area that opens onto a private, westerly-facing balcony, perfect for enjoying sunsets over the city. The modern kitchen is fully equipped with high-end appliances, and the principal bedroom boasts an en-suite bathroom along with ample storage.
Residents enjoy exclusive access to exceptional amenities, including a 24-hour concierge, a well-equipped gym, and landscaped courtyards—ideal for both relaxation and social gatherings. With Nine Elms Tube station and Vauxhall's extensive transport links at your doorstep, commuting and exploring London has never been easier.
While the property is part of a fast-evolving urban landscape with a diverse local community, be mindful of the leasehold nature and the associated costs, including an annual ground rent. This apartment is not only a stylish living space but also offers potential for future value appreciation as Nine Elms continues to thrive. Don’t miss out on this unique opportunity to secure your slice of cosmopolitan London living!
2 bedroom apartment for sale in Hebden Place, London, SW8 — £825,000 • 2 bed • 2 bath • 963 ft²
2 bedroom apartment for sale in Hebden Place, Nine Elms, SW8 — £675,000 • 2 bed • 2 bath • 752 ft²
2 bedroom flat for sale in Pinto Tower, Nine Elms Point, 4 Hebden Place, Nine Elms, London, SW8 — £790,000 • 2 bed • 2 bath • 798 ft²
1 bedroom flat for sale in Pinto Tower, Nine Elms Point, 4 Hebden Place, Nine Elms, London SW8 — £595,000 • 1 bed • 1 bath • 550 ft²
1 bedroom apartment for sale in Pinto Tower, Nine Elms Point, SW8 — £495,000 • 1 bed • 1 bath • 561 ft²
2 bedroom apartment for sale in Wandsworth Road, Nine Elms, SW8 — £915,000 • 2 bed • 2 bath • 985 ft²






















































































