Chain-free one-bedroom flat near Bracknell station — modern, low-maintenance living..
Chain-free one-bedroom apartment, built 2018, first-floor with lift access
Allocated underground parking plus visitor bays; off-street parking available
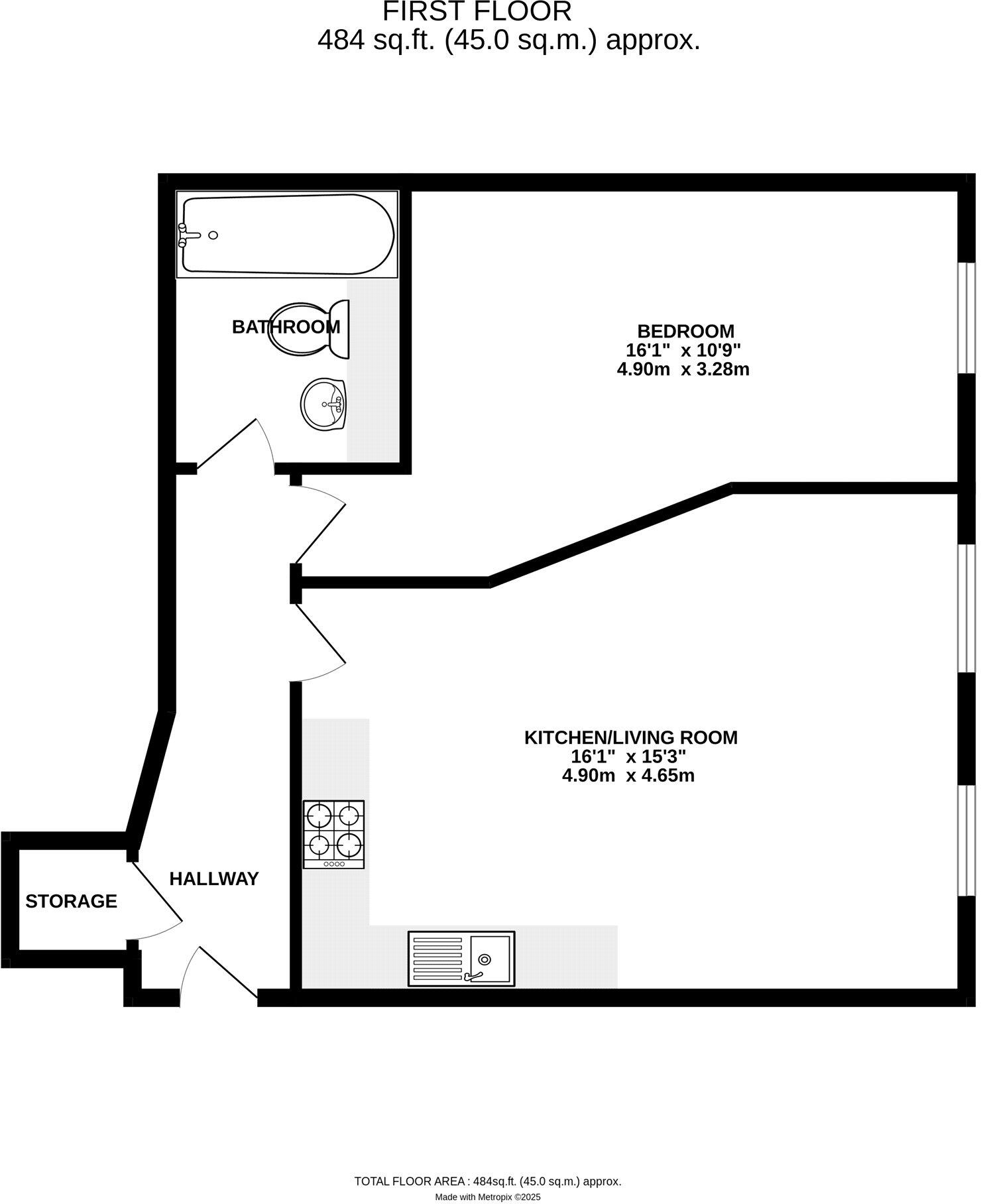
Open-plan kitchen/living area with contemporary finishes and integrated appliances
Larger-than-average double bedroom for a one-bed of this size
Leasehold with c.117 years remaining; service charge and ground rent payable
No private outdoor space; communal forecourt only
Electric room heaters as main heating — potentially higher running costs
Approx. 484 sq.ft (45.0 sq.m); better for singles/couples or investors
This compact first-floor apartment in The Braccans offers practical, low-maintenance living a short walk from Bracknell town centre and the mainline station. Built in 2018, the property is presented in good decorative order with contemporary finishes, an open-plan kitchen/living area and one larger-than-average bedroom for the size.
The flat is chain-free and has lift access, allocated underground parking plus visitor bays — useful in an urban setting. Its location gives easy access to the Lexicon shopping centre, road links (M3/M4) and local amenities, making it suitable for first-time buyers or buy-to-let investors seeking rental demand from commuters.
Material considerations are factual: this is a leasehold property with c.117 years remaining, and annual service charge and ground rent apply (c. £1,730.40 and c. £150 pa respectively). There is no private outdoor space and heating is by electric room heaters, which can be more costly than gas central heating.
Overall, the apartment suits someone prioritising location, low upkeep and modern finishes over outdoor amenity and large living space. Buyers should factor in ongoing leasehold costs and the property’s modest 484 sq.ft footprint when comparing value in the local market.
1 bedroom apartment for sale in London Road, Bracknell, Berkshire, RG12 — £200,000 • 1 bed • 1 bath • 485 ft²
1 bedroom apartment for sale in London Road, Bracknell, Berkshire, RG12 — £200,000 • 1 bed • 1 bath • 549 ft²
1 bedroom apartment for sale in London Road, Bracknell, Berkshire, RG12 — £190,000 • 1 bed • 1 bath • 442 ft²
1 bedroom apartment for sale in London Road, Bracknell, Berkshire, RG12 — £220,000 • 1 bed • 1 bath • 553 ft²
1 bedroom apartment for sale in Mount Lane, Bracknell, Berkshire, RG12 — £125,000 • 1 bed • 1 bath • 344 ft²
1 bedroom apartment for sale in Fleming Place, Bracknell, Berkshire, RG12 — £220,000 • 1 bed • 1 bath • 514 ft²


























