Flexible single-level living with large gardens and garage, ideal for downsizers.
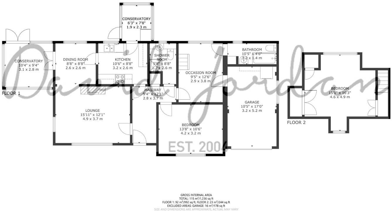
Two-bedroom detached chalet bungalow with versatile occasional room ensuite
Large plot with front, side and west-facing rear gardens
Integral garage, brick-paved driveway and off-street parking
Majority double glazing; gas central heating with Worcester boiler
Bright L-shaped lounge/diner and conservatory with patio access
Built mid-20th century — some fixtures and finishes need updating
Freehold tenure; no flood risk; council tax above average
Convenient for Seaford Head, local schools and A259 bus links
Set on a generous plot close to Seaford Head, this detached chalet bungalow offers adaptable two-bedroom living across two floors. The main bedroom occupies the first floor, while the ground floor includes a second double bedroom and a versatile occasional room with an ensuite and direct garage access — handy for hobbyists or work-from-home storage.
The home benefits from a large front, side and west-facing rear garden, a brick‑paved driveway and an integral garage with wall-mounted Worcester boiler. A bright L-shaped lounge/diner links to a conservatory that opens onto the patio, and the kitchen provides fitted units with space for appliances. Majority double glazing and gas central heating keep running costs straightforward.
This property will suit downsizers seeking single-level living with occasional upstairs sleeping, gardeners wanting outdoor space, or buyers prepared to refresh interiors. The house is structurally conventional (cavity walls, tiled roof) but some rooms and finishes are dated and would benefit from updating to reach modern standards. Council tax is above average.
Practical positives include no flood risk, very low local crime, excellent mobile signal and fast broadband. The location is convenient for local schools, bus routes on the A259 and links to Eastbourne and Brighton. Buyers should note the property is freehold and built mid-20th century, so consider expected maintenance and potential refurbishment costs.
4 bedroom bungalow for sale in Hazeldene, Seaford, BN25 — £675,000 • 4 bed • 2 bath • 1785 ft²
3 bedroom bungalow for sale in Chesterton Drive, Seaford, BN25 — £475,000 • 3 bed • 1 bath • 1563 ft²
3 bedroom detached bungalow for sale in Victor Close, Seaford, BN25 — £475,000 • 3 bed • 1 bath • 705 ft²
3 bedroom detached bungalow for sale in Hillside Avenue, Seaford, BN25 — £425,000 • 3 bed • 1 bath • 1252 ft²
3 bedroom detached bungalow for sale in Belgrave Crescent, Seaford, BN25 — £395,000 • 3 bed • 1 bath • 1057 ft²
2 bedroom detached bungalow for sale in Richington Way, Seaford, BN25 — £350,000 • 2 bed • 1 bath • 614 ft²


































































































