Chain-free three-bed terrace with garden and modern kitchen.
Chain free freehold mid-terrace
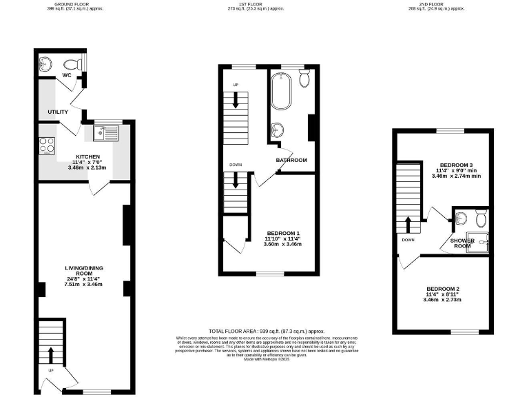
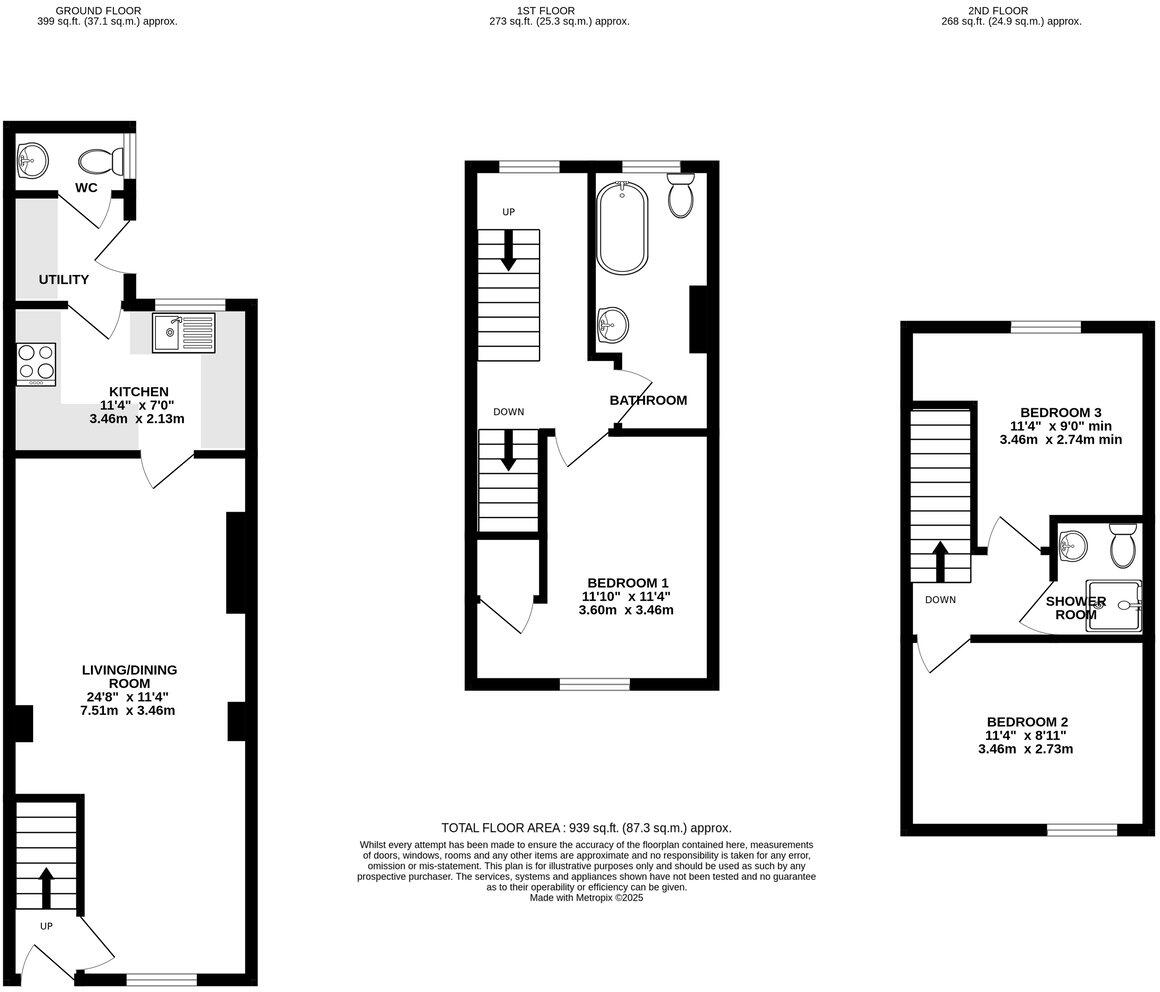
A deceptively spacious three-bedroom mid-terrace arranged over three floors, offered freehold and chain free. The ground floor has an open-plan living/dining room and a modern kitchen with integrated appliances, plus a utility area and ground-floor WC — practical for everyday living.
The main bedroom and a charming roll-top bathroom sit on the first floor, with two further bedrooms and a shower room on the top floor. Sloping ceilings on the upper level create character but may limit some furniture placement. A small rear garden is ready for cultivation and provides outdoor space off the house.
Well suited to first-time buyers or a small family looking for a move-in-ready core with scope to personalise. Some traditional features, such as a stone fireplace, will benefit from modernization if desired. Council tax is very cheap and the property sits in a low-crime, small-town location with average broadband and mobile signal. EPC band currently TBC.
2 bedroom terraced house for sale in Leconfield Street, Cleator Moor, CA25 — £80,000 • 2 bed • 1 bath • 624 ft²
3 bedroom end of terrace house for sale in Montreal Avenue, Cleator Moor, Cumbria, CA25 — £100,000 • 3 bed • 1 bath
3 bedroom end of terrace house for sale in Croasdale Place, Cleator Moor, CA25 — £75,000 • 3 bed • 1 bath • 685 ft²
2 bedroom terraced house for sale in Ennerdale Road, Cleator Moor, Cumbria, CA25 — £60,000 • 2 bed • 1 bath
3 bedroom terraced house for sale in Trumpet Road, Cleator, CA23 — £107,500 • 3 bed • 2 bath • 1066 ft²
2 bedroom terraced house for sale in Ennerdale Road, Cleator Moor, CA25 — £110,000 • 2 bed • 1 bath • 883 ft²














































