BN18 0AH - 2 bed new bungalow park home in Arundel Road, BN18 0AH

View on Property Piper

2 bedroom park home for sale in 39 Havenwood Residential Park Havenwood, Arundel, BN18

Summary - 39, HAVENWOOD, ARUNDEL BN18 0AH

2 bed 1 bath Park Home

Chain-free, low-maintenance two-bed park home with woodland views and 10-year warranty..
- Brand-new two-bedroom bungalow-style park home, chain-free
- 10-year build warranty for long-term reassurance
- Bright open-plan living area with integrated kitchen appliances
- Woodland views and small deck/patio, low-maintenance outdoor space
- Freehold tenure stated; park uses an indefinite lease term — check details
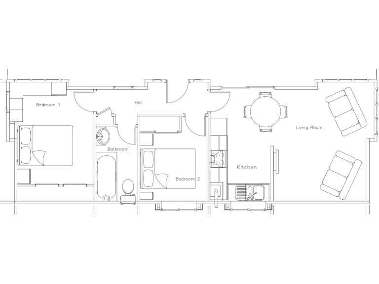
- Compact 40x12 layout, one bathroom, best for downsizers
- Broadband average, mobile signal excellent
- Local crime levels above average; consider security and location
A brand-new, bungalow-style park home set within Havenwood Residential Park, positioned on the edge of the South Downs National Park. The Chatsworth Gold specification delivers a bright, open-plan living area, integrated kitchen appliances and two bedrooms with fitted wardrobes — designed for low-maintenance, single-storey living. Off-street parking, a small deck/patio and woodland views make this a peaceful base for relaxed daily life.

This home is sold chain-free with a 10-year warranty and freehold tenure, offering reassuring protection for a new owner. The site is fully residential and tailored to residents aged 50 and over; the setting suits buyers seeking a quiet, community-focused lifestyle and easy-access accommodation without stairs.

Be realistic about scale and local services: the home is compact (40 x 12 style), with one bathroom and modest internal room sizes suited to downsizers rather than large families. Broadband speeds are average and local crime levels are above average for the area — both practical points to factor into daily living. Residential park homes are commonly managed under site-specific arrangements (an indefinite lease term is used on this park), so check site rules, service charges and any residency conditions before committing.

For buyers prioritising low-maintenance living near the South Downs and Arundel’s amenities, this property offers strong appeal: new specification, easy parking and pleasant woodland outlook in a peaceful retirement-focused community. Its compact layout and site governance mean it suits those wanting simpler, single-level living rather than full family accommodation.

Property Details

Image Descriptions

Floorplan Description

Rooms

Textual Property Features

Target Audience

AI Tags

Detected Visual Features

Nearby Schools

Nearest Bars And Restaurants

,,,,}

Nearest General Shops

,,}

Nearest Grocery shops

,,}

Nearest Supermarkets

,,}

Nearest Religious buildings

,,}

Nearest Medical buildings

,,,}

Nearest Leisure Facilities

,,,,}

Nearest Tourist attractions

,,}

Nearest Train stations

,,,,}

Nearest Bus stations and stops

,,,,}

Nearest Hotels

,,}

Tags

Local Market Stats

Similar Properties

Meta

High Res Images

Compatible Images

Low res Images

Thumbnails

Raw Images

High Res Floorplan Images

Compatible Floorplan Images

Low res Floorplan Images

FloorplanImages Thumbnail

Raw Floorplan Images