**Standout Features:**
- Newly built 3-bedroom detached house with garage and garden room.
- High-quality finishes including flagstone floors and stone mullioned windows.
- Eco-friendly features with an Air Source heat pump and underfloor heating.
- Open-plan kitchen with island units and wood-burning stove.
- Enclosed patio garden with off-street parking.
**Summary:**
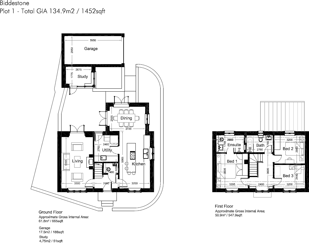
Introducing “The Forge,” a stunning three-bedroom detached home in the idyllic village of Biddestone, boasting 1,264 sq ft of modern living space. This new build combines contemporary elegance with desirable country-style charm, featuring natural stone elevations and stylish interior finishes, including a lovely open-plan kitchen fitted with an island and a cozy wood-burning stove. The versatile garden room attached to the garage enhances functionality, perfect for a home office or hobby area.
Enjoy the comfort of underfloor heating powered by an eco-friendly Air Source system, promising warmth and energy efficiency throughout. The principal bedroom suite is a private retreat, complemented by two additional bedrooms sharing a beautifully appointed family bathroom. Outside, the enclosed patio garden offers a peaceful oasis, while off-street parking is available.
Nestled in a prosperous community with a rich local spirit, Biddestone is close to essential amenities and prestigious schools. This exclusive opportunity to own a modern farmhouse in an Area of Outstanding Natural Beauty is rare—don’t miss your chance to become a part of this charming village lifestyle!
4 bedroom link detached house for sale in 4 The Forge, The Green, Biddestone, Chippenham, SN14 — £975,000 • 4 bed • 3 bath • 1934 ft²
4 bedroom detached house for sale in The Forge, Biddestone, Wiltshire, SN14 7 DG, SN14 — £975,000 • 4 bed • 3 bath • 1933 ft²
4 bedroom end of terrace house for sale in The Green, Biddestone, Wiltshire, SN14 7DG, SN14 — £650,000 • 4 bed • 1 bath • 1569 ft²
5 bedroom detached house for sale in The Green, Biddestone, Chippenham, Wiltshire, SN14 — £1,650,000 • 5 bed • 5 bath • 4165 ft²
4 bedroom detached house for sale in Marchants Lane, Pipehouse, Freshford, Bath BA2 — £975,000 • 4 bed • 3 bath • 2240 ft²
4 bedroom link detached house for sale in Cuttle Lane, Biddestone, Chippenham, Wiltshire, SN14 — £1,495,000 • 4 bed • 3 bath • 4026 ft²














































































