**Standout Features:**
- Prime location in New Jackson Area, Manchester
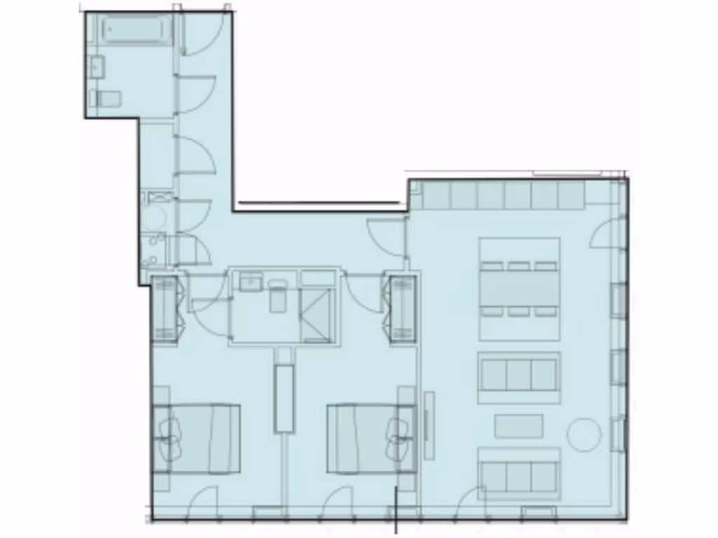
- Corner two-bedroom flat with contemporary design
- Open-plan living area with large floor-to-ceiling windows
- High-specification kitchen with premium appliances
- Access to on-site amenities including a gym and swimming pool
- Off-street parking available
- Chain-free sale with a 997-year lease
**Property Overview:**
Experience urban living at its finest with this beautifully furnished two-bedroom, two-bathroom apartment located in Elizabeth Tower. Designed to a high standard, the large open-plan living space bathed in natural light offers splendid city views, complemented by a modern, fully equipped kitchen. With a generous lease of 997 years and very low crime rates, this property in the multicultural and cosmopolitan student neighborhood presents an ideal investment opportunity or comfortable home.
Conveniently situated just 0.3 miles from Deansgate tram and train links, and a mere 0.1 miles from local bus services, commuting is effortless. The area’s burgeoning local establishments, from eateries to green spaces, create a vibrant community perfect for socializing and leisure activities.
Keep in mind the service charge of approximately £2,871.96 annually and a ground rent of £392, yet this apartment promises a lifestyle of ease with amenities right at your doorstep. Seize the chance to make this exceptional property yours—such unique listings in sought-after locations rarely last long!
2 bedroom flat for sale in Elizabeth Tower, 141 Chester Road, Manchester, M15 — £470,000 • 2 bed • 2 bath • 926 ft²
2 bedroom flat for sale in Elizabeth Tower, 141 Chester Road, Manchester, M15 — £425,000 • 2 bed • 2 bath • 926 ft²
2 bedroom apartment for sale in 141 Chester Road, Greater Manchester, M15 — £459,888 • 2 bed • 2 bath • 927 ft²
2 bedroom apartment for sale in 141 Chester Road, Greater Manchester, M15 — £430,888 • 2 bed • 2 bath • 938 ft²
2 bedroom apartment for sale in Chester Road, Manchester, Greater Manchester, M15 — £407,946 • 2 bed • 2 bath • 927 ft²
2 bedroom apartment for sale in Chester Road, Manchester, Greater Manchester, M15 — £377,116 • 2 bed • 2 bath • 805 ft²










































































































