PL12 6YU - 1 bedroom apartment for sale in Grassmere Way, Pillmere, Sa…

View on Property Piper

1 bedroom apartment for sale in Grassmere Way, Pillmere, Saltash, Cornwall, PL12

Summary - 100 GRASSMERE WAY PILLMERE SALTASH PL12 6YU

1 bed 1 bath Apartment

**Standout Features:**
- Ideal for buy-to-let or first-time buyers
- Currently let for £760 per month
- Second-floor apartment in a modern development
- Spacious lounge/diner and fitted kitchen
- Allocated off-street parking space
- uPVC double glazing and gas central heating with a condensing boiler
- Low crime rate, affluent area

**Summary:**
Discover a fantastic opportunity with this second-floor apartment, perfect for first-time buyers or investors seeking a buy-to-let option. Currently generating a rental income of £760 per month, this well-maintained residence features a welcoming lounge/diner, a compact fitted kitchen with modern wooden cabinets, and a cozy double bedroom. The sleek bathroom includes essential fixtures for your comfort. Enjoy the benefits of uPVC double glazing and efficient gas central heating, ensuring cozy living throughout the year.

This small yet functional flat is part of a stylish residential building nestled in a quiet, affluent area boasting low crime rates. An allocated off-street parking space adds to your convenience. With nearby schools rated 'Good' by Ofsted and an appealing environment that includes trees and access to local amenities, this apartment embodies both comfort and accessibility. Don’t miss out on the chance to secure a desirable property that combines affordability with future renovation potential. Act now, as opportunities like this won’t last long!

Property Details

Brochure Descriptions

Image Descriptions

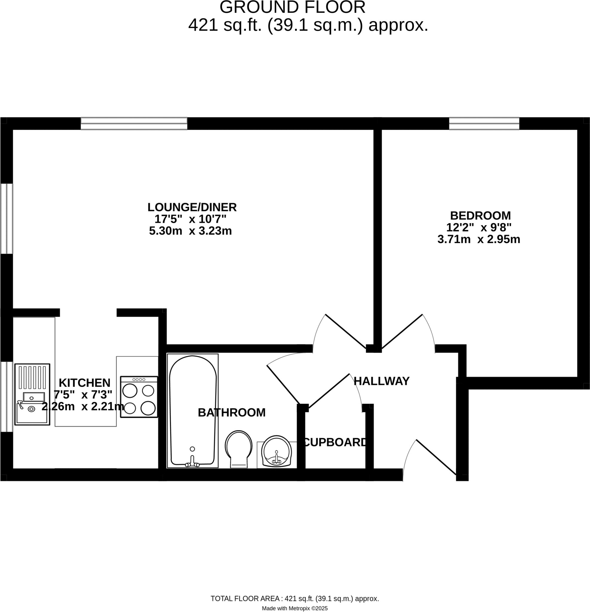
Floorplan Description

Rooms

Textual Property Features

Detected Visual Features

EPC Details

Nearby Schools

Nearest Bars And Restaurants

,,,,}

Nearest General Shops

,,}

Nearest Grocery shops

,,}

Nearest Supermarkets

,,}

Nearest Religious buildings

,,}

Nearest Medical buildings

,,,}

Nearest Leisure Facilities

,,,,}

Nearest Tourist attractions

,,}

Nearest Train stations

,,,,}

Nearest Bus stations and stops

,,,,}

Nearest Hotels

,,}

Tags

Local Market Stats

AirBnB Data

Similar Properties

Meta

High Res Images

Compatible Images

Low res Images

Thumbnails

Raw Images

High Res Floorplan Images

Compatible Floorplan Images

Low res Floorplan Images

FloorplanImages Thumbnail

Raw Floorplan Images