**Standout Features:**
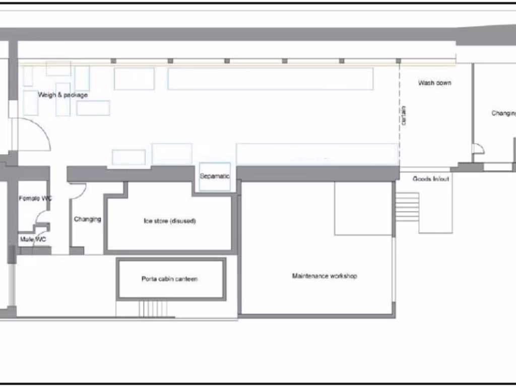
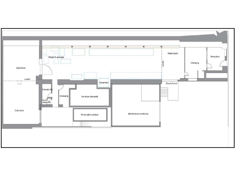
- Specialized light industrial unit for food production/processing
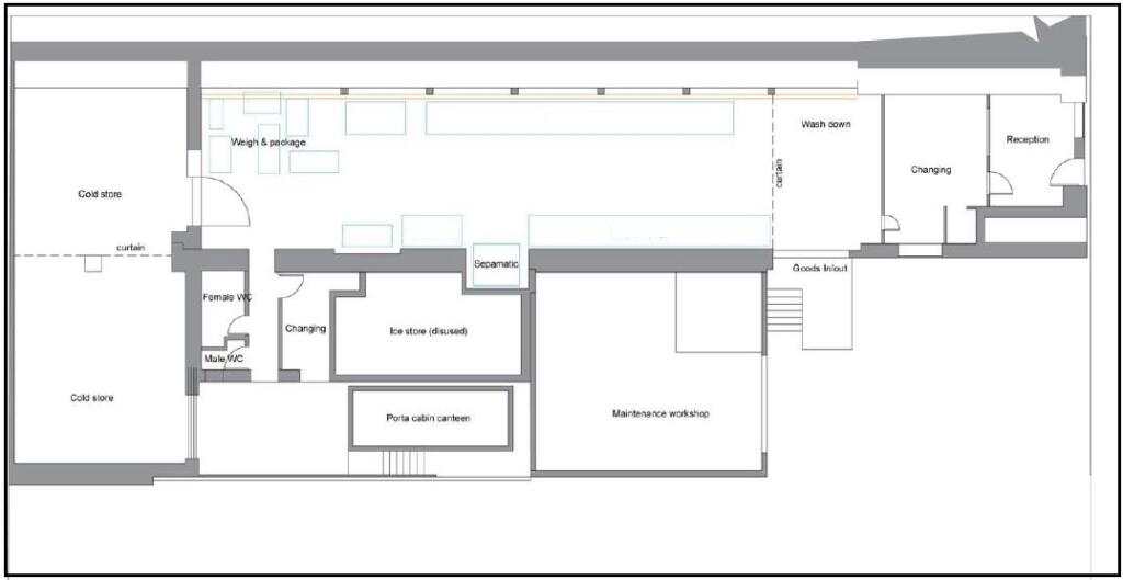
- Built area of 3,730 sq ft fitted out for high-standard operations
- Long leasehold remaining until September 2107
- Solar panels providing renewable energy with 3-phase power supply
- Located in a low-crime, affluent area with excellent mobile signal
- Includes multiple dedicated facilities for processing and operational efficiency
**Potential Downsides:**
- 84 years left on the lease, which may require attention for renewal
- Age of construction (before 1900) implies potential structural and insulation concerns
- Broadband speeds currently reported as slow
---
Discover a unique opportunity at Unit 8, Stable Hobba Industrial Estate in Newlyn, Penzance, ideal for entrepreneurs or investors seeking a spacious light industrial facility. This 3,730 sq ft unit, once dedicated to shellfish processing, boasts a high standard of fit-out tailored for food production, with potential for easy adaptation to other industrial uses. Enjoy advanced facilities, including air conditioning, multiple processing areas, and energy efficiency with solar panel installations and 3-phase power.
Situated in an affluent, low-crime area, this property not only offers ample parking and convenience but also presents a strategic location for business operations with easy access to transport links. Though the property requires some consideration regarding the lease renewal and has slow broadband speeds, it stands as an attractive investment opportunity with substantial flexibility for future renovations. Don’t miss your chance to secure this highly functional unit—explore the potential today!
Hospitality facility for sale in Seafood Processing Business, The Strand, Penzance, Cornwall, TR18 — £1,750,000 • 1 bed • 1 bath • 6304 ft²
Light industrial facility for sale in 11 Long Rock Industrial Estate, TR20 — £250,000 • 1 bed • 1 bath • 2448 ft²
Light industrial facility for sale in 9 & 17 Stable Hobba, Penzance, Cornwall, TR20 — £225,000 • 1 bed • 1 bath • 1723 ft²
Light industrial facility for sale in 7a Rospeath Lane, Crowlas, Penzance, TR20 — £250,000 • 1 bed • 1 bath • 2638 ft²
Restaurant for sale in 4-6 New Road, Penzance, Cornwall, TR18 — £350,000 • 1 bed • 1 bath • 1409 ft²
Workshop for sale in Chywoone Rural Workshops, St Just, TR19 — £90,000 • 1 bed • 1 bath • 701 ft²










































