Comfortable single-storey living with generous gardens and plentiful outbuildings.
Three double bedrooms, one en-suite and ground-floor shower room
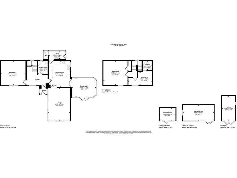
This deceptively spacious single-storey home sits on a large plot in rural Hundleton, just a short drive from Pembroke and nearby beaches. The bungalow is arranged with a ground-floor bedroom and shower room, plus two first-floor double bedrooms (one en-suite), making it particularly suitable for downsizers or buyers seeking single-level living with occasional upstairs accommodation. The conservatory overlooks well-kept lawns and two patio areas, offering peaceful views front and rear.
Practical benefits include LPG-fired central heating, UPVC double glazing fitted after 2002, ample off-street parking on a private block-paved driveway, and plentiful outbuildings — a garage/workshop, two sheds and a summerhouse currently used as a home office. The plot is roughly a quarter of an acre and provides clear scope for gardening, storage or light extension subject to consents.
Important considerations: the EPC is rated F and the property’s solid sandstone/limestone walls are assumed to lack insulation, so energy performance and running costs are likely higher than modern homes. Drainage is private, broadband and mobile signals are average, and the house dates from before 1900, so buyers should allow for age-related maintenance and confirm all services. Viewing is recommended to judge the balance of comfortable living space against potential upgrading costs.
3 bedroom detached bungalow for sale in Reginald Close, Hundleton, Pembroke, SA71 — £450,000 • 3 bed • 2 bath • 1849 ft²
3 bedroom bungalow for sale in Cricket Grove, Hundleton, Pembroke, Pembrokeshire, SA71 — £260,000 • 3 bed • 1 bath • 762 ft²
3 bedroom detached bungalow for sale in The Parade Ground, Pembroke Dock, SA72 — £320,000 • 3 bed • 2 bath • 1073 ft²
3 bedroom detached bungalow for sale in Tudor Close, Pembroke, SA71 — £280,000 • 3 bed • 1 bath • 919 ft²
3 bedroom detached bungalow for sale in Lawrenny Road, Cresselly, SA68 — £335,000 • 3 bed • 1 bath • 1087 ft²
3 bedroom bungalow for sale in Whitehill, Cresselly, Kilgetty, Pembrokeshire, SA68 — £300,000 • 3 bed • 1 bath


































































































