RH13 5UN - 2 bedroom terraced house for sale in Roebuck Close, Horsham…

View on Property Piper

2 bedroom terraced house for sale in Roebuck Close, Horsham, RH13

Summary - 4 ROEBUCK CLOSE HORSHAM RH13 5UN

2 bed 1 bath Terraced

**Standout Features:**
- Immaculate two-bedroom mid-terraced house
- Recently refurbished kitchen with cottage-style units
- Heated conservatory leading to a quaint paved garden
- Allocated off-street parking
- Located near woodland walks and Horsham town center

**Potential Concerns:**
- Small overall size (566 sq ft) may not suit larger families
- Located in a multi-ethnic area with an average crime rate
- Nearby schools rated as varying from "requires improvement" to "good"

Discover your new home in this beautifully presented two-bedroom mid-terraced house, located in a serene cul-de-sac just minutes from the A264, providing easy access to major routes and a short drive to the vibrant center of Horsham. Ideal for first-time buyers or small families, this property boasts a cozy layout with a newly refurbished kitchen featuring charming cottage-style units and a spacious heated conservatory that invites natural light and links to a private, low-maintenance paved garden – perfect for enjoying peaceful outdoor moments.

With double-glazed windows and gas-fired heating, you'll find comfort in the living space, complemented by two well-sized bedrooms and a modern bathroom suite. Allocated off-street parking adds convenience. While the cozy size (566 sq ft) may present limitations for larger households, the property offers future potential for renovations to maximize living space. Secure this delightful home before it’s gone!

Property Details

Brochure Descriptions

Image Descriptions

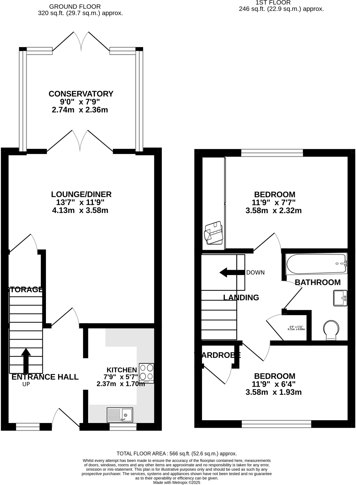
Floorplan Description

Rooms

Textual Property Features

Detected Visual Features

Nearby Schools

Nearest Bars And Restaurants

,,,,}

Nearest General Shops

,,}

Nearest Grocery shops

,,}

Nearest Supermarkets

,,}

Nearest Religious buildings

,,}

Nearest Medical buildings

,,,}

Nearest Airports

}

Nearest Leisure Facilities

,,,,}

Nearest Tourist attractions

,,}

Nearest Train stations

,,,,}

Nearest Bus stations and stops

,,,,}

Nearest Hotels

,,}

Tags

Local Market Stats

AirBnB Data

Similar Properties

Meta

High Res Images

Compatible Images

Low res Images

Thumbnails

Raw Images

High Res Floorplan Images

Compatible Floorplan Images

Low res Floorplan Images

FloorplanImages Thumbnail

Raw Floorplan Images