SY13 1HA - Land for sale in Queensway, Whitchurch, SY13

View on Property Piper

Land for sale in Queensway, Whitchurch, SY13

Summary - 22, QUEENSWAY SY13 1HA

1 bed 1 bath Land

**Standout Features:**
- Generous plot approved for replacement of existing dwelling/store
- Planning consent granted (16th August 2024)
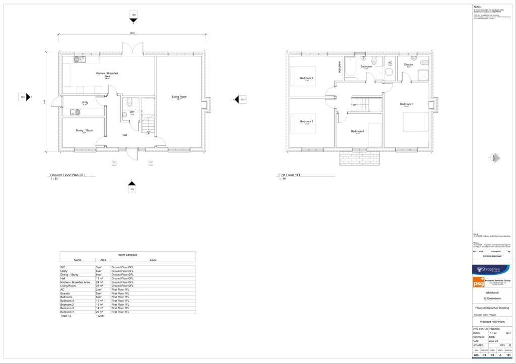
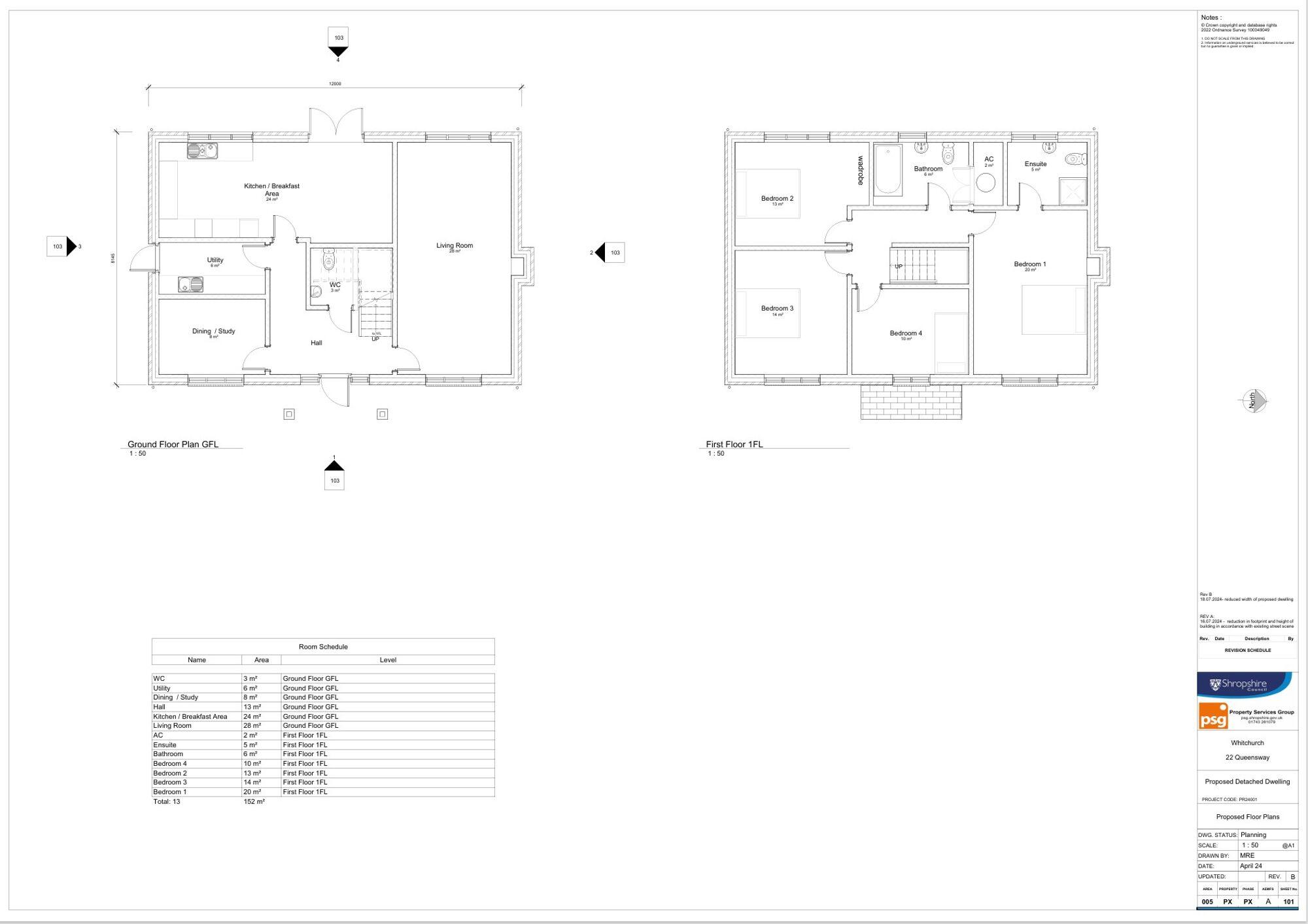
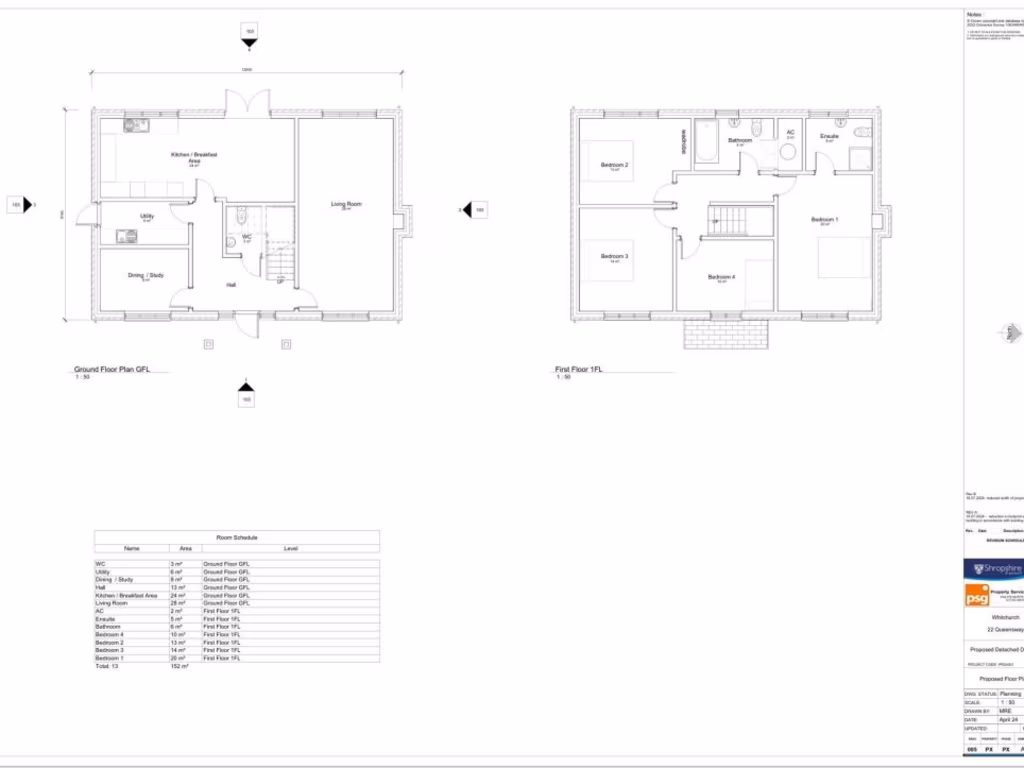
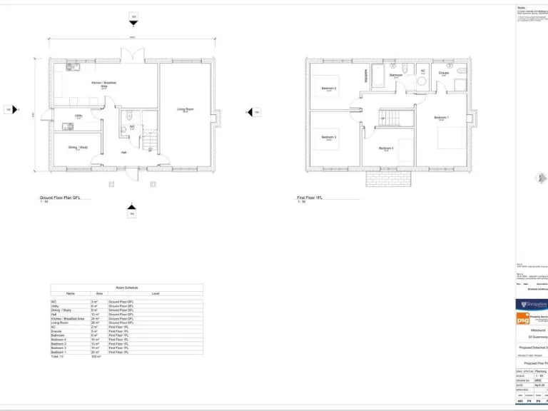
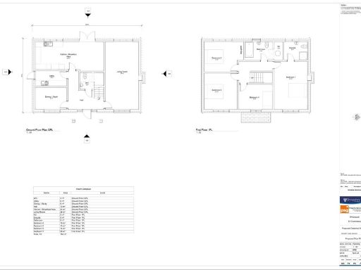
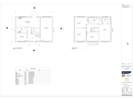
- Proposed construction: 4 bedrooms (1 en-suite), 2 reception rooms, kitchen/breakfast room
- Backs onto Queensway playing fields and pond
- Convenient location near Whitchurch town center

**Concise Summary:**
This expansive freehold building plot on Queensway in Whitchurch, SY13, is ripe with potential for those dreaming of their ideal home. Currently home to an uninhabitable mid-20th-century structure, the site has received planning consent for the demolition and construction of a stunning new detached house featuring 4 spacious bedrooms, including one en-suite, and two reception rooms, perfect for family living.

Embrace the opportunity to design your dream residence, enjoying serene views over the adjacent Queensway playing fields and pond, which provide a unique backyard-like extension. The location is incredibly convenient, with easy access to Whitchurch’s amenities, schools, and public transport, making it an attractive choice for families, professionals, or investors looking for a promising development site.

While the current structure requires immediate demolition, the property is set up for success, with its excellent mobile signal, fast broadband, and low crime rate enhancing its appeal. Don’t miss out on this unique chance to create a bespoke living space tailored to your desires!

Property Details

Image Descriptions

Floorplan Description

Rooms

Textual Property Features

Detected Visual Features

EPC Details

Nearby Schools

Nearest Bars And Restaurants

,,,,}

Nearest General Shops

,,}

Nearest Grocery shops

,,}

Nearest Supermarkets

,,}

Nearest Religious buildings

,,}

Nearest Medical buildings

,,,}

Nearest Leisure Facilities

,,,,}

Nearest Tourist attractions

,,}

Nearest Train stations

,,,,}

Nearest Bus stations and stops

,,,,}

Nearest Hotels

,,}

Tags

Local Market Stats

AirBnB Data

Similar Properties

Meta

High Res Images

Compatible Images

Low res Images

Thumbnails

Raw Images

High Res Floorplan Images

Compatible Floorplan Images

Low res Floorplan Images

FloorplanImages Thumbnail

Raw Floorplan Images