**Standout Features:**
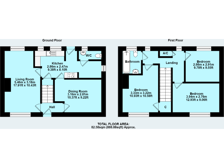
- Semi-detached family home with 3 bedrooms and 1 bathroom
- Offers scenic views of the Bristol Channel and Quantock Hills
- Two reception rooms with natural light and fireplaces
- Generously sized rear garden with decking area and large timber shed
- Convenient location close to shops and schools
- Freehold tenure with inexpensive council tax (Band B)
**Concerns:**
- Some areas may require modernization
- On-street parking availability
- Average broadband and mobile signals
Welcome to your new family home! This charming semi-detached house is situated in a picturesque small town, offering ample space across two reception rooms and three bedrooms. The inviting living room floods with natural light, creating a cozy atmosphere, while the traditional kitchen provides ample room for culinary creativity. Enjoy peaceful evenings in the generous rear garden, complete with a large timber shed and a charming decked area perfect for entertaining or relaxing amid stunning views of the Bristol Channel and Quantock Hills.
This home is a great fit for families or first-time buyers seeking a delightful community with essential amenities and schools within walking distance. While the property presents some opportunities for modernization, it is overall a well-maintained gem in a low-crime area. Don't miss the chance to make it your own—properties like this in such a desirable location are in high demand!
3 bedroom semi-detached house for sale in Doniford Road, Watchet, Somerset, TA23 — £250,000 • 3 bed • 1 bath • 1045 ft²
3 bedroom end of terrace house for sale in Kingsland, Watchet, Somerset, TA23 — £215,000 • 3 bed • 1 bath • 877 ft²
3 bedroom semi-detached house for sale in Doniford Road, Watchet, Somerset, TA23 — £225,000 • 3 bed • 2 bath • 1149 ft²
3 bedroom semi-detached house for sale in Regents Way, Minehead, Somerset, TA24 — £296,000 • 3 bed • 1 bath • 823 ft²
3 bedroom terraced house for sale in Greenway, Watchet, Somerset, TA23 — £225,000 • 3 bed • 1 bath • 971 ft²
3 bedroom detached house for sale in Wristland Road, Watchet, Somerset, TA23 — £385,000 • 3 bed • 2 bath • 1658 ft²














































































