Spacious plot with schools, parking and extension potential for growing families.
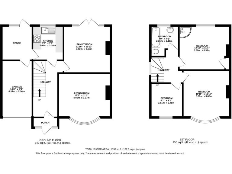
- Handsome 1930s semi-detached family home
- Three good-size bedrooms, one with a shower cubicle
- Large private rear garden with mature trees and greenhouse
- Driveway parking for multiple cars plus single garage
- Chain free and freehold with scope to extend (STPP)
- Requires modernisation throughout; original fittings remain
- Cavity walls assumed uninsulated; potential energy upgrades needed
- Council tax band above average
This handsome 1930s semi-detached house offers comfortable family living on a large plot close to St Albans city centre. The house sits back from the road with a driveway, single garage and a larger-than-average private rear garden — ideal for children and outdoor entertaining.
Inside are two generous reception rooms with period features, a practical kitchen and three good-size bedrooms upstairs (one with a shower cubicle) served by a family bathroom. The property is presented with many original elements but requires updating throughout, giving a buyer clear scope to modernise and personalise the space.
Significant appeal lies in the potential to extend or reconfigure (subject to planning permission), and the location is a major draw: Oakwood Primary and Beaumont Secondary are within walking distance, plus easy access to shops, transport and open countryside. The house is chain free and sold as freehold, with fast broadband, excellent mobile signal and low local crime.
Buyers should note material points honestly: the home will need modernisation, the cavity walls are assumed uninsulated, and council tax is above average. These factors, together with planning potential, mean the house will particularly suit growing families or buyers seeking a renovation project in a highly desirable neighbourhood.
3 bedroom semi-detached house for sale in Gurney Court Road, St. Albans, AL1 4QU, AL1 — £950,000 • 3 bed • 2 bath • 1271 ft²
4 bedroom semi-detached house for sale in Hatfield Road, St. Albans, AL4 — £700,000 • 4 bed • 1 bath • 779 ft²
4 bedroom semi-detached house for sale in Beech Road, St. Albans, AL3 — £815,000 • 4 bed • 2 bath • 1415 ft²
4 bedroom semi-detached house for sale in Hatfield Road, St. Albans, AL4 — £1,100,000 • 4 bed • 1 bath • 1388 ft²
2 bedroom terraced house for sale in Mentmore Road, St Albans, AL1 — £550,000 • 2 bed • 1 bath • 985 ft²
5 bedroom semi-detached house for sale in Colney Heath Lane, St. Albans, AL4 0TU, AL4 — £850,000 • 5 bed • 2 bath • 1990 ft²










































































