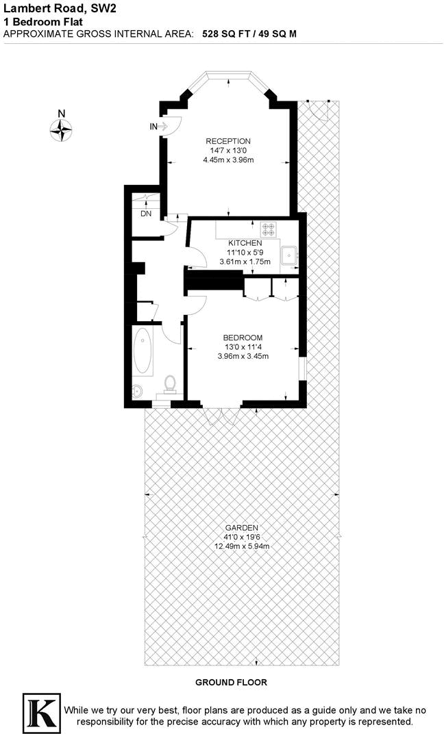
Sunny one-bedroom with approved extension potential minutes from Brixton, Clapham and Brockwell Park.
One double bedroom with fitted wardrobes and garden access
A bright one-bedroom ground-floor apartment set in a double-fronted, end-of-terrace Victorian conversion. High corniced ceilings, a large bay reception and original wooden floors give the principal room real period character, while a separate kitchen and contemporary bathroom keep day-to-day living straightforward. The south-facing private garden and direct access to a large cellar are rare extras for this size.
Practical buyers will value the previously approved planning permission to extend into a two-bedroom layout — prospective purchasers can request the proposed plans. The flat is chain-free with a share of freehold, and the size and layout suit both first-time buyers seeking a characterful home and buy-to-let investors targeting strong local rental demand.
Be aware of local issues: the area records higher crime levels than average and the building’s solid brick walls are assumed uninsulated, so improved insulation or energy upgrades may be required. Overall the property presents a well-proportioned, move-in-ready core with sensible scope for added value through permitted extension and targeted upgrades.
3 bedroom flat for sale in Lambert Road,SW2 — £795,000 • 3 bed • 2 bath • 1090 ft²
1 bedroom flat for sale in Dalyell Road, SW9 — £435,000 • 1 bed • 1 bath • 689 ft²
2 bedroom flat for sale in Lambert Road, SW2 — £580,000 • 2 bed • 1 bath • 806 ft²
1 bedroom flat for sale in Concanon Road, SW2 — £495,000 • 1 bed • 1 bath • 514 ft²
1 bedroom flat for sale in St. Stephens Terrace, SW8 — £450,000 • 1 bed • 1 bath • 475 ft²
1 bedroom flat for sale in Brixton, London, SW2 — £500,000 • 1 bed • 1 bath • 506 ft²










































