**Standout Features:**
- Mixed-use freehold building with commercial and residential units
- Excellent income potential: total rental income of £47,400 PA from three units
- Fantastic location in a vibrant inner-city area with numerous amenities
- Outstanding public transport access
- Good local primary and secondary schools nearby
- Solid brick construction with double-glazed windows
**Potential Concerns:**
- Commercial unit lease has only 6 years remaining; mortgages may be challenging to secure
- Very high crime rate; area classified as very deprived
- Small plot size and maintenance concerns due to lack of insulation
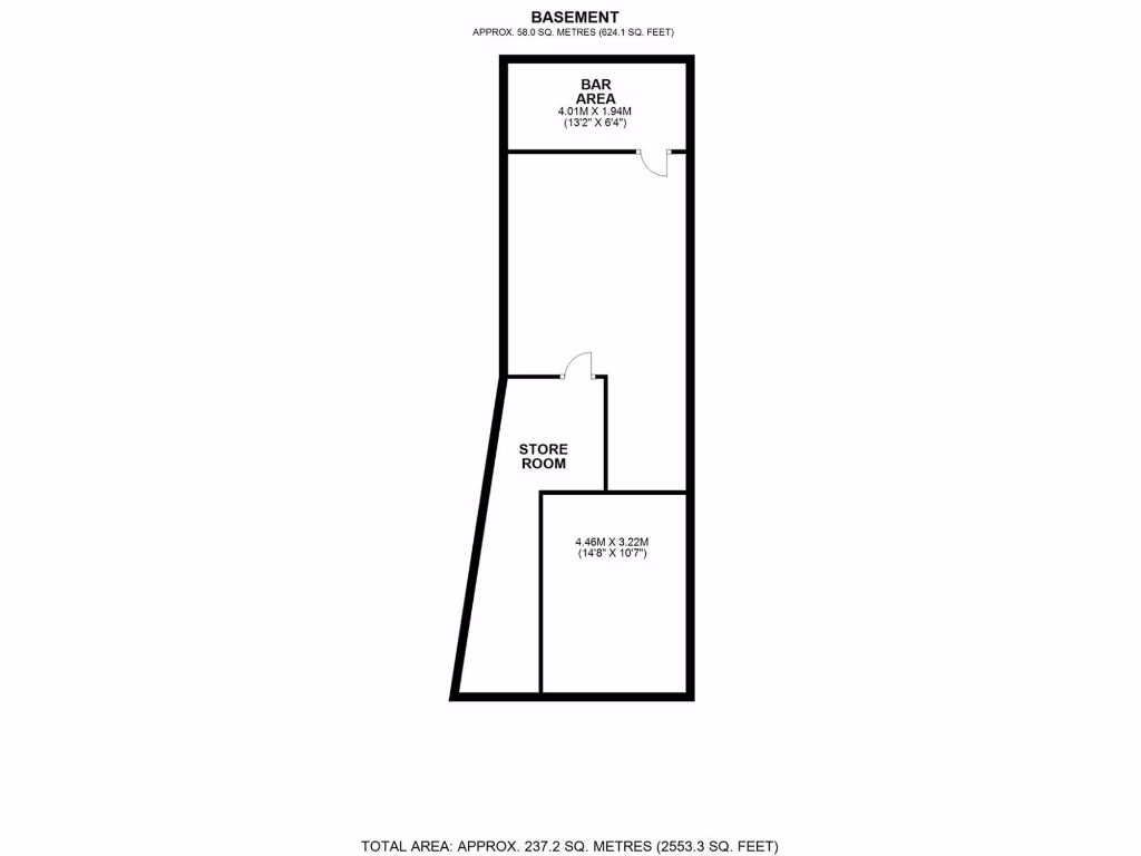
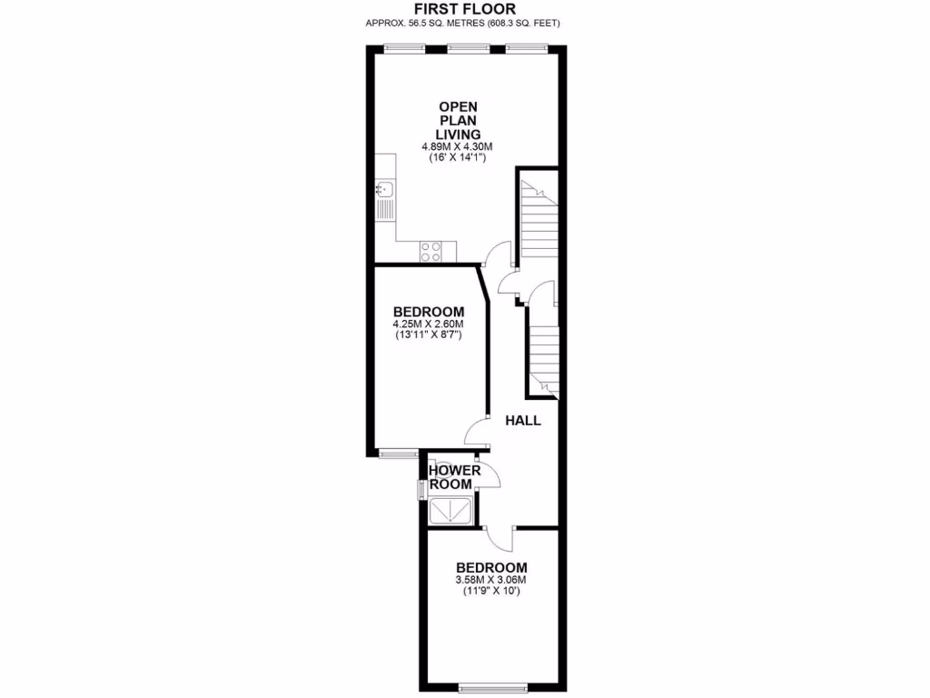
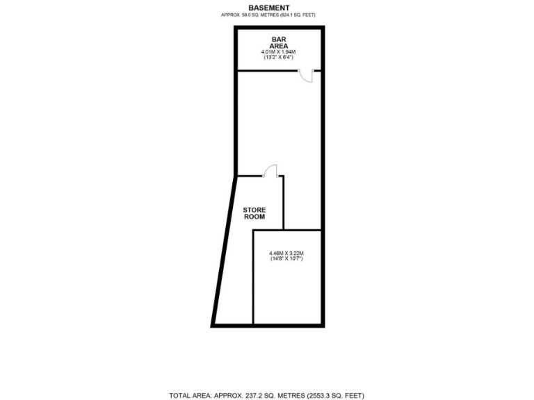
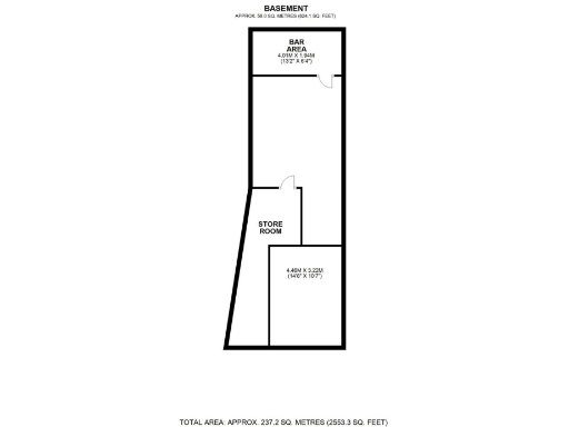
Discover an exceptional mixed-use property opportunity in SE8, perfect for investors seeking rental income or families wanting a versatile living arrangement. This impressive Victorian brick building boasts a commercial unit generating £22,800 PA, along with two separate flats—one featuring two bedrooms and another one-bedroom flat, both currently below market rent. With strong rental demand in this cosmopolitan area, the property offers the potential for significant rental growth alongside a prime location rich with shops, cafes, and excellent schools.
While the building does require some maintenance considerations, including minor upgrades, serious investors will appreciate the rare chance to enhance rental yields. Note that the lease on the commercial unit may pose challenges with mortgage lenders, calling for careful planning. Additional highlights include rapid broadband, excellent mobile signal, and nearby public transit options. Seize this opportunity to invest in a property brimming with future potential and transform it into a thriving asset. Act fast—opportunities like this don't last long!
Commercial property for sale in Deptford High Street, London, SE8 — £900,000 • 1 bed • 1 bath • 1868 ft²
Commercial property for sale in New Cross Road, London, Greater London, SE14 — £800,000 • 2 bed • 2 bath • 2329 ft²
3 bedroom terraced house for sale in Dartmouth Road, Forest Hill, London, SE23 — £950,000 • 3 bed • 2 bath • 1108 ft²
Commercial property for sale in Deptford High Street, London, SE8 — £300,000 • 1 bed • 1 bath • 1400 ft²
Commercial property for sale in Deptford High Street, SE8 — £700,000 • 3 bed • 1 bath • 2423 ft²
High street retail property for sale in Wood Lane, Dagenham, RM8 — £420,000 • 1 bed • 1 bath • 1880 ft²


















































































