SN2 1DQ - 3 bed renovated three bed in Ferndale Road, SN2 1DQ

View on Property Piper

3 bedroom terraced house for sale in Ferndale Road, Swindon, SN2

Summary - 613 FERNDALE ROAD SWINDON SN2 1DQ

3 bed 1 bath Terraced

Compact, move-in-ready terrace with double garage and garden — ideal for first-time buyers..
Three bedrooms in a newly renovated mid-terrace
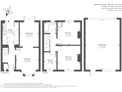
A recently renovated three-bedroom mid-terrace on Ferndale Road, presented with modern decor and practical living space across two stories. The property benefits from a rare double garage and a private garden — useful extras in this area. At about 753 sq ft the house is compact but well laid out for families or first-time buyers seeking move-in-ready accommodation.

The location offers many local amenities within walking distance — shops, cafés, takeaways and frequent bus links — and several good-rated primary and secondary schools nearby. Heating is mains gas via boiler and radiators, and double glazing is already installed, helping with running costs. Council tax is reported as low.

Buyers should note material considerations: the wider neighbourhood records higher crime levels and the local area is relatively deprived. The house dates from the early 20th century with cavity walls assumed uninsulated, and the double glazing was installed before 2002, so further insulation or energy upgrades may be beneficial. Viewing is recommended to assess the compact layout and to judge whether the property matches your needs and budget for any additional improvements.

Property Details

Image Descriptions

Floorplan Description

Rooms

Textual Property Features

Target Audience

AI Tags

Detected Visual Features

EPC Details

Nearby Schools

Nearest Bars And Restaurants

,,,,}

Nearest General Shops

,,}

Nearest Grocery shops

,,}

Nearest Supermarkets

,,}

Nearest Religious buildings

,,}

Nearest Medical buildings

,,,}

Nearest Leisure Facilities

,,,,}

Nearest Tourist attractions

,,}

Nearest Train stations

,,,,}

Nearest Bus stations and stops

,,,,}

Nearest Hotels

,,}

Tags

Local Market Stats

Similar Properties

Meta

High Res Images

Compatible Images

Low res Images

Thumbnails

Raw Images

High Res Floorplan Images

Compatible Floorplan Images

Low res Floorplan Images

FloorplanImages Thumbnail

Raw Floorplan Images