Spacious, practical home close to schools and shopping for family life.
Chain free three-bedroom semi-detached house, ready to move into
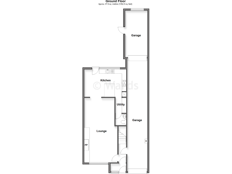
Large 24'5" living/dining room — generous family space
Off-road parking, garage plus 18'5" workshop for storage or hobbies
Separate utility room and downstairs cloakroom for convenience
Solar panels and double glazing (pre-2002) reduce running costs
Single family bathroom only — shared by three bedrooms
Cavity walls assumed uninsulated — potential energy-efficiency work needed
Local crime level reported above average — check neighbourhood data
This well-presented three-bedroom semi-detached house in Broadstairs offers practical family living in a popular residential area close to good schools and Westwood Cross shopping. The layout includes a long living/dining room, a sizeable kitchen, separate utility and a handy downstairs cloakroom — practical spaces for daily family life.
Outside there is off-road parking, an integral garage with an adjacent workshop and a private rear garden ideal for children or entertaining. The home has solar panels and double glazing (installed before 2002), helping running costs, and it is sold chain free for a straightforward move.
Buyers should note the property dates from the mid-20th century and the cavity walls are assumed to have no added insulation, so energy-efficiency upgrades could be needed to improve thermal performance. There is one family bathroom serving three bedrooms and the local reported crime level is above average — factors to weigh for family buyers.
Overall this is a comfortable, well-equipped family home in an affluent area with strong transport and amenity links. It suits purchasers seeking immediate move-in condition with scope to invest in energy improvements or modernise bathroom facilities over time.
3 bedroom semi-detached house for sale in Rumfields Road, Broadstairs, Kent, CT10 — £300,000 • 3 bed • 1 bath • 765 ft²
3 bedroom semi-detached house for sale in Beech Drive, Broadstairs, CT10 — £265,000 • 3 bed • 1 bath • 733 ft²
3 bedroom semi-detached house for sale in Hildersham Close, Broadstairs, Kent, CT10 — £375,000 • 3 bed • 1 bath • 934 ft²
3 bedroom semi-detached house for sale in Beech Drive, Broadstairs, Kent, CT10 — £300,000 • 3 bed • 1 bath • 942 ft²
3 bedroom semi-detached house for sale in Hildersham Close, Broadstairs, Kent, CT10 — £350,000 • 3 bed • 1 bath • 872 ft²
3 bedroom semi-detached house for sale in Vincent Close, Broadstairs, Kent, CT10 — £280,000 • 3 bed • 1 bath • 819 ft²






























































































