**Standout Features:**
- Period end-of-terrace home over 4 floors
- 3 spacious bedrooms and 2 bathrooms (including en-suite)
- Modern kitchen with built-in appliances and stylish decor
- Sought-after location near historic High Street
- Prime catchment area for top-rated schools
- Charming rear garden with side access
**Potential Concerns:**
- Small plot size
- Very high local crime rate
- Solid brick walls without insulation
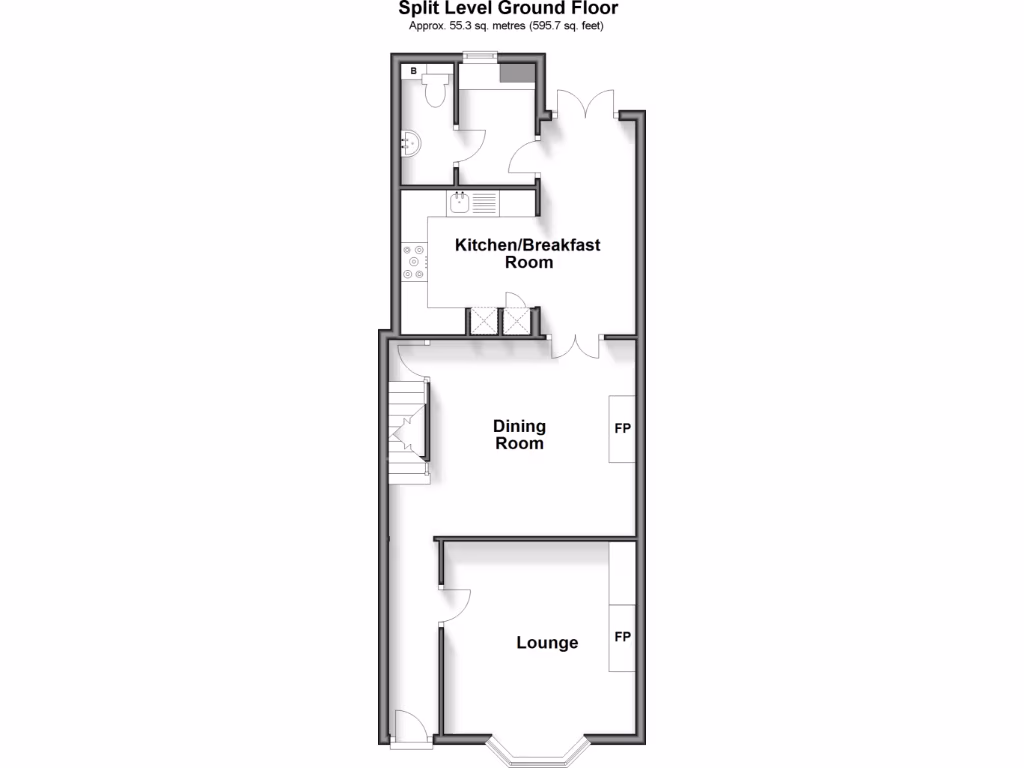
Nestled within one of Rochester's most desirable neighborhoods, this charming Victorian end-of-terrace home spans four floors, providing ample living space perfect for families or investors seeking a rental property. With its inviting living room featuring a modern fireplace, high ceilings, and period details, along with a contemporary kitchen equipped with glossy cabinets and built-in appliances, this residence beautifully blends classic charm with modern conveniences. Enjoy the comfort of three spacious bedrooms, including an en-suite, and a private rear garden ideal for outdoor gatherings.
The property is situated within a highly sought-after catchment area for some of the region's top-performing schools, ensuring it is an excellent choice for families. While the home presents an incredible opportunity, potential buyers should also be aware of the small plot size and a higher-than-average local crime rate. The solid brick construction, though characterful, lacks insulation, leaving potential for future renovation to enhance energy efficiency.
Don’t miss the chance to own a piece of Rochester history in a prime location; schedule a viewing today and envision the possibilities this unique home offers!
3 bedroom terraced house for sale in Maidstone Road, Rochester, Kent, ME1 — £350,000 • 3 bed • 1 bath • 937 ft²
3 bedroom end of terrace house for sale in Everest Lane, Frindsbury, Rochester, Kent, ME2 — £280,000 • 3 bed • 1 bath • 701 ft²
3 bedroom end of terrace house for sale in Martin Road, Strood, Rochester, Kent, ME2 — £250,000 • 3 bed • 1 bath • 797 ft²
4 bedroom end of terrace house for sale in Beresford Avenue, Rochester, Kent, ME1 — £425,000 • 4 bed • 1 bath • 1240 ft²
4 bedroom terraced house for sale in Maidstone Road, Rochester, ME1 — £500,000 • 4 bed • 2 bath • 1744 ft²
3 bedroom terraced house for sale in City Way, Rochester, Kent, ME1 — £360,000 • 3 bed • 1 bath • 1098 ft²






























































