SM7 1QZ - 4 bedroom bungalow for sale in Banstead Road, Banstead, SM7

View on Property Piper

4 bedroom bungalow for sale in Banstead Road, Banstead, SM7

Summary - 197 BANSTEAD ROAD BANSTEAD SM7 1QZ

4 bed 2 bath Bungalow

**Standout Features:**
- Freehold, detached bungalow
- Spacious layout with four bedrooms
- Beautifully landscaped garden with privacy
- Generous carriage driveway and attached garage
- Chain free for quick possession
- Located in affluent, low-crime area with fast broadband

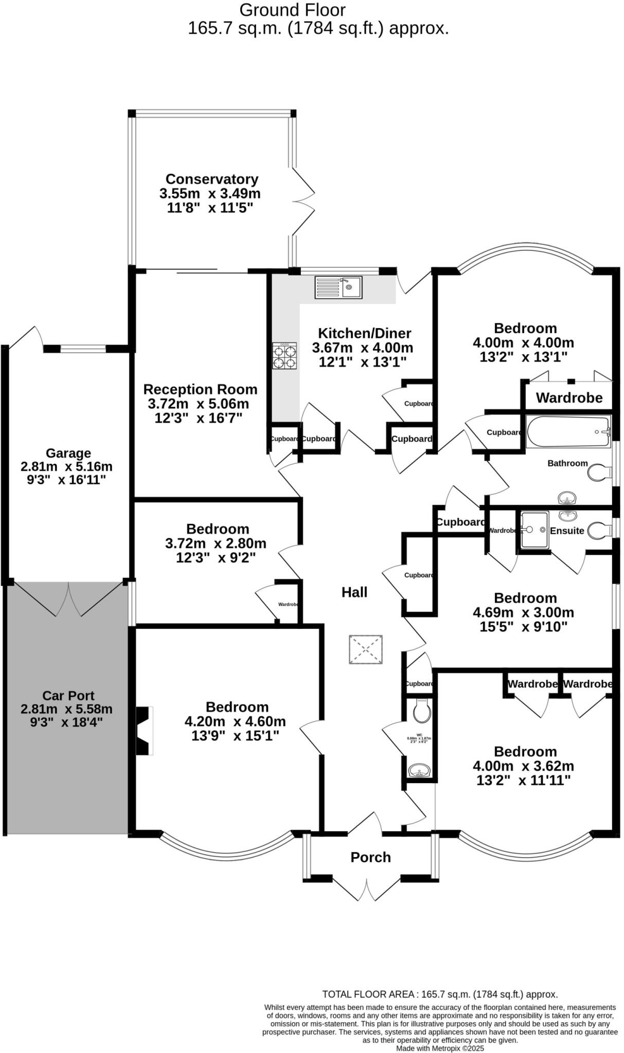
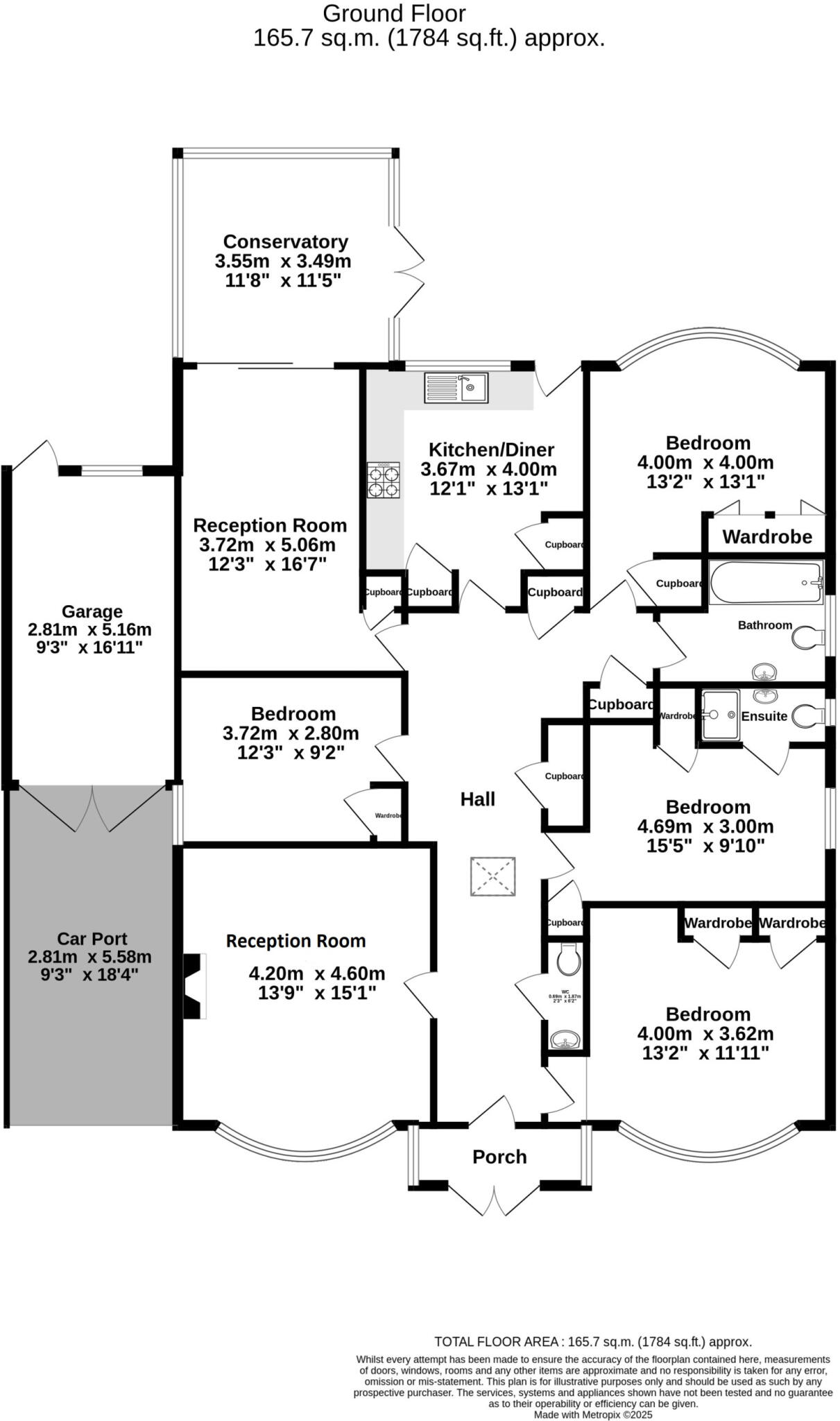
This stunning four-bedroom detached bungalow is a rare find situated on the desirable Banstead Road, perfectly positioned between Ewell and Banstead. Boasting a spacious 1,784 square feet of immaculately maintained living space, this cozy retreat is perfect for families and offers a tranquil lifestyle. The property features a fitted kitchen, two bathrooms, and an attached garage, providing both comfort and convenience.

Step outside to discover the beautifully landscaped garden, offering a private oasis for relaxation or entertaining. The carriage driveway offers ample parking space. Located in a highly sought-after neighborhood with excellent schools, including several with 'Good' Ofsted ratings, this property is ideal for families looking for a serene and secure community.

Though currently in good condition, the cavity walls may be lacking insulation, which could present an opportunity for future enhancements. With very low crime rates and easy access to local amenities, this impressive bungalow presents a fantastic opportunity for first-time buyers, families, or anyone seeking a peaceful retreat in an affluent area. Act quickly—properties like this don't stay on the market for long!

Property Details

Image Descriptions

Floorplan Description

Rooms

Textual Property Features

Detected Visual Features

EPC Details

Nearby Schools

Nearest Bars And Restaurants

,,,,}

Nearest General Shops

,,}

Nearest Grocery shops

,,}

Nearest Supermarkets

,,}

Nearest Religious buildings

,,}

Nearest Medical buildings

,,,}

Nearest Airports

,,}

Nearest Leisure Facilities

,,,,}

Nearest Tourist attractions

,,}

Nearest Train stations

,,,,}

Nearest Bus stations and stops

,,,,}

Nearest Hotels

,,}

Tags

Local Market Stats

Similar Properties

Meta

High Res Images

Compatible Images

Low res Images

Thumbnails

Raw Images

High Res Floorplan Images

Compatible Floorplan Images

Low res Floorplan Images

FloorplanImages Thumbnail

Raw Floorplan Images