Five-bedroom cul-de-sac house with large garden and double garage, ideal for growing families.
Five double bedrooms across three storeys
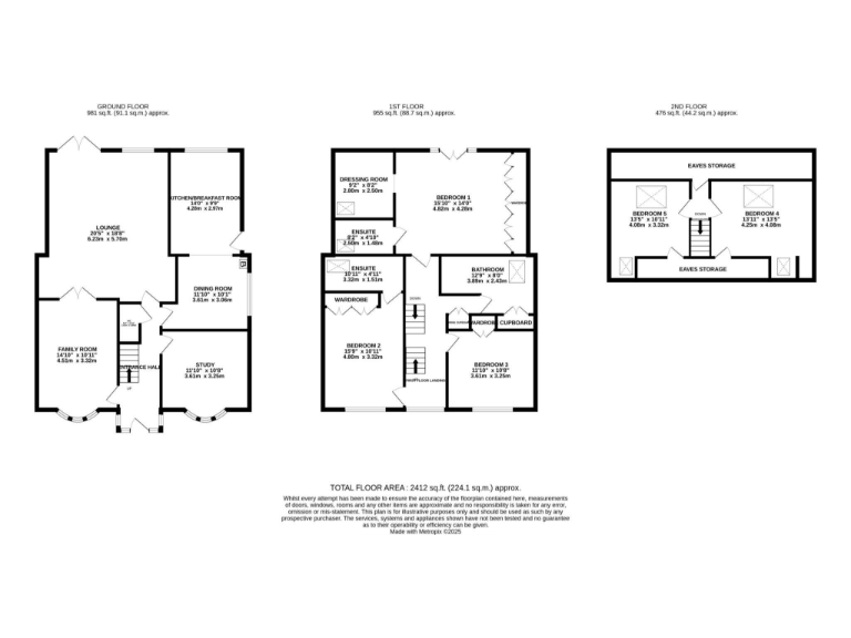
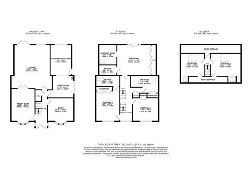
Set on a large plot at the end of a quiet cul-de-sac in Blofield, this three-storey Tudor Revival detached house offers genuinely roomy family living across 2,336 sq ft. The layout includes five bedrooms, two en suites, a dedicated dressing room off the main bedroom and three reception rooms, giving flexibility for home working, play and entertaining.
The rear garden is private and well-proportioned with a patio, summer house and an electric-equipped shed — perfect for outdoor living. Practical benefits include a double garage, ample driveway parking and gas central heating. The location suits family life with good local primary and secondary schools, village amenities and easy road links to Norwich and the Norfolk coast.
Buyers should note this property dates from the 1980s and some elements such as the glazing have an unknown installation date. Council tax is above average for the area and services, fixtures and appliances have not been independently tested. With its generous rooms and large plot, the house offers clear potential for updating or personalization rather than a turn-key purchase.
5 bedroom detached house for sale in Shreeve Road, Blofield, NR13 — £475,000 • 5 bed • 3 bath • 1798 ft²
7 bedroom detached house for sale in Garden Road, Blofield, NR13 — £1,250,000 • 7 bed • 5 bath • 4392 ft²
4 bedroom detached house for sale in Yarmouth Road, Blofield, NR13 — £500,000 • 4 bed • 2 bath • 1313 ft²
4 bedroom detached house for sale in Newstead Gardens, Blofield, NR13 — £625,000 • 4 bed • 2 bath • 1625 ft²
5 bedroom detached house for sale in Yarmouth Road, Blofield, Norwich, NR13 — £525,000 • 5 bed • 3 bath • 1792 ft²
7 bedroom detached house for sale in Garden Road, Blofield, NR13 — £1,250,000 • 7 bed • 4 bath • 4392 ft²










































































































































































