Village base with garage, solar panels and easy-care garden for family life.
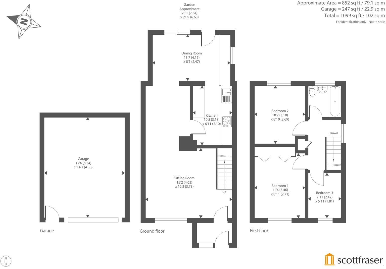
- Extended rear providing a separate dining room
- Large single garage plus driveway and turning area
- Roof-mounted solar panels for energy savings
- Updated family bathroom with fitted vanity
- Low-maintenance paved and gravelled rear garden
- Galley kitchen with space for freestanding appliances
- One bathroom serving three bedrooms
- Built 1967–1975; may suit further modernisation
This extended three-bedroom semi-detached home sits in attractive Bampton, offering practical family accommodation over two floors. A covered porch leads into a sitting room with a working fireplace and an extended rear dining room, creating a comfortable ground-floor living flow.
Practical strengths include a large single garage with driveway parking, roof-mounted solar panels for reduced energy bills, an updated family bathroom with fitted vanity, and a low-maintenance rear garden laid to paving and gravel. Windows are double-glazed and heating is mains gas with a boiler and radiators.
Considerations: the kitchen is a galley layout suited to freestanding appliances and may feel tight for larger households; there is one bathroom serving three bedrooms. The house dates from the late 1960s–1970s, so buyers wanting a modern specification may choose to update finishes or services over time.
Convenient for local shops, Bampton primary schooling, and road links to Witney and the A40/A420, this well-presented home will suit families seeking a manageable, energy-efficient village base with good parking and scope to personalise internally.
3 bedroom semi-detached house for sale in Cote Road, Bampton, Oxfordshire, OX18 — £400,000 • 3 bed • 1 bath • 1173 ft²
3 bedroom semi-detached bungalow for sale in Bowling Green Close, Bampton, Oxfordshire, OX18 — £295,000 • 3 bed • 1 bath • 689 ft²
3 bedroom semi-detached house for sale in Giles Place, Bampton, Oxfordshire, OX18 — £400,000 • 3 bed • 1 bath • 1035 ft²
4 bedroom semi-detached house for sale in Chandler Close, Bampton, Oxfordshire, OX18 — £395,000 • 4 bed • 1 bath • 1318 ft²
3 bedroom semi-detached house for sale in Bampton, Oxfordshire, OX18 — £375,000 • 3 bed • 2 bath • 1140 ft²
4 bedroom terraced house for sale in Ampney Orchard, Bampton, Oxfordshire, OX18 — £375,000 • 4 bed • 2 bath • 1135 ft²






































































