Bright renovated flat with private patio and own front door.
Newly renovated one-bedroom ground-floor flat
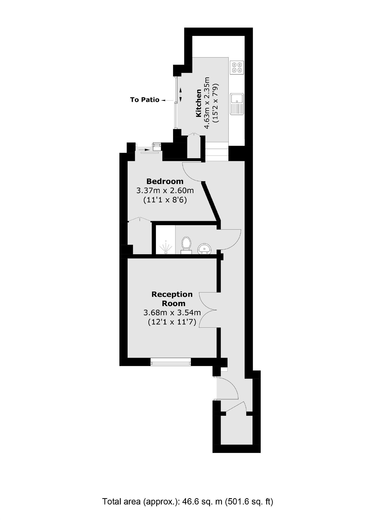
This compact one-bedroom ground-floor flat sits in a handsome Victorian terrace between Clapham and Wandsworth Commons. Recently renovated, it combines period features—high ceilings and sash-style windows—with a contemporary finish, an eat-in kitchen and a bright reception room. The property benefits from its own private entrance, a small low-maintenance patio garden and a share of freehold.
At about 501 sq ft the apartment is efficiently laid out and well suited to a first-time buyer or a downsizer seeking a central Battersea address. The finish is modern throughout, with engineered wood floors, neutral decoration and good natural light. Local amenities, transport links and several highly regarded schools are within easy reach.
Buyers should note the compact internal footprint and modest external space: the patio is small and storage will be limited. The building is traditional solid-brick construction (c.1900–1929) and walls are assumed uninsulated, which may affect running costs despite mains gas heating. Council tax is affordable and there is no identified flood risk.
Overall this is a low-maintenance, well-presented city apartment offering immediate move-in condition, characterful period elements and long-term rental or owner-occupier appeal in a sought-after Between-the-Commons location.
2 bedroom apartment for sale in Auckland Road, SW11 — £925,000 • 2 bed • 2 bath • 894 ft²
1 bedroom flat for sale in Aliwal Road, Clapham Junction, London, SW11 — £475,000 • 1 bed • 1 bath • 529 ft²
1 bedroom flat for sale in Shelgate Road, London, SW11 — £525,000 • 1 bed • 1 bath • 559 ft²
1 bedroom apartment for sale in Shelgate Road, London, SW11 — £375,000 • 1 bed • 1 bath • 308 ft²
1 bedroom end of terrace house for sale in Bennerley Road,
Between the Commons, SW11 — £300,000 • 1 bed • 1 bath • 378 ft²
1 bedroom apartment for sale in Mysore Road, SW11 — £525,000 • 1 bed • 1 bath • 483 ft²


































