**Standout Features:**
- Charming Victorian-style cottage in a desirable conservation area
- Chain-free sale with freehold tenure
- Private rear garden, suitable for families
- Attractive location near local amenities and schools
- Requires modernization, presenting a blank canvas for buyers
**Concerns:**
- Locally listed status may limit renovation and extension options
- High crime rate in the area
- Solid brick walls, no insulation (assumed)
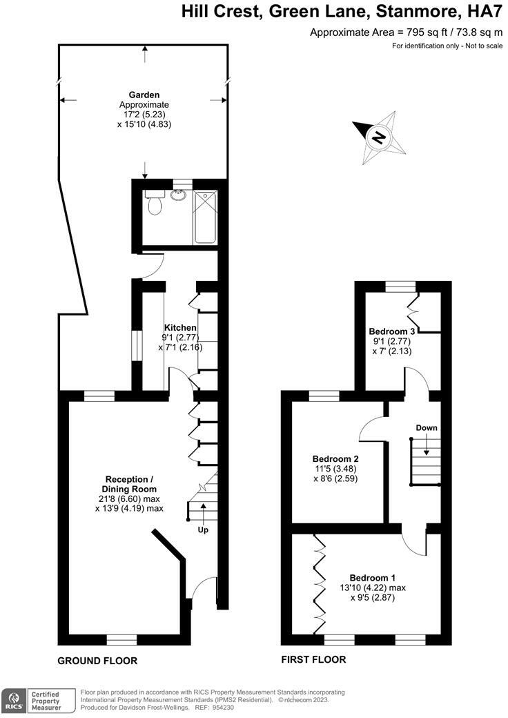
This charming three-bedroom cottage, known as 'Hill Crest,' is nestled within the picturesque Stanmore Hill Conservation Area, a sought-after locale for families. With a freehold title and being chain-free, this property offers a unique opportunity for those looking to invest in a historic home. The layout features a welcoming double reception room, a functional galley kitchen, and a cozy utility room. Upstairs, you'll find two generous double bedrooms alongside a spacious single, providing ample living space.
Though the interior does require modernization, this allows for personalization and enhancement to your taste. The private rear garden is perfect for families to enjoy outdoor activities, while the surrounding area boasts excellent schools and convenient access to shops and transport links. However, prospective buyers should note the locally listed status which may impact renovation potential and the higher crime rating in the vicinity.
Don't miss out on this exclusive opportunity to own a slice of history in a vibrant community—schedule a viewing today and envision the possibilities for your new family home!
2 bedroom house for sale in Green Lane, Stanmore, HA7 — £650,000 • 2 bed • 1 bath • 889 ft²
2 bedroom cottage for sale in Green Lane, Stanmore, HA7 — £550,000 • 2 bed • 1 bath • 995 ft²
2 bedroom terraced house for sale in Little Common, Stanmore, HA7 — £425,000 • 2 bed • 1 bath • 768 ft²
2 bedroom semi-detached house for sale in Green Lane, Stanmore, HA7 — £600,000 • 2 bed • 1 bath • 781 ft²
3 bedroom terraced house for sale in Crown Street, Harrow on the Hill Village Conservation Area, HA2 — £715,000 • 3 bed • 2 bath • 1000 ft²
2 bedroom cottage for sale in West Street, Harrow, HA1 3EL, HA1 — £550,000 • 2 bed • 1 bath • 561 ft²


























































