Spacious four-bedroom house with flexible layout and conversion potential.
4 bedrooms in a traditional detached cottage with character features
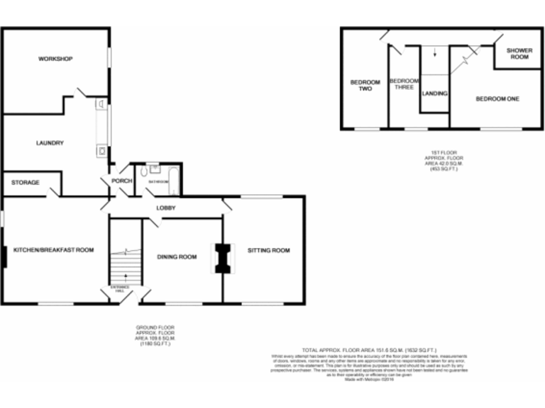
Spacious 1,658 sq ft interior with flexible room layout
Impressive kitchen with Aga, central island and walk-in pantry
Large workshop and substantial loft — clear conversion potential (subject to consents)
Enclosed rear courtyard; garage parking available nearby
Stone walls likely uninsulated; property requires updating and maintenance
Medium flood risk — investigate insurance and flood measures
Freehold tenure; mains gas central heating and double glazing present
This detached four-bedroom cottage blends traditional character with practical living across a generous 1,658 sq ft footprint. Period features — exposed stonework, timber floorboards, brick fireplaces and a gas-fired Aga — give the house warmth and personality, while mains gas central heating and double glazing provide modern comfort.
The ground floor centres on an impressive kitchen/breakfast room, dining/living room with wood burner and an adaptable sitting room that could serve as a fourth bedroom. A large workshop with a substantial loft offers clear potential for conversion to additional accommodation or an independent workspace (subject to consents). Outside, an enclosed rear courtyard provides private outdoor space, and garage parking is available nearby.
Practical considerations: the house is dated in parts and will need updating to modern standards. Walls are likely uninsulated (stone construction), and there is a medium flood risk for the area. These factors affect maintenance and insurance costs and should be reviewed before purchase. Council tax is moderate and the property is freehold.
Set on Main Street in East Ayton, the location suits families and second-home buyers. Local primary schools have good Ofsted ratings, the village provides everyday amenities, and the North York Moors, Scarborough coastline and Dalby Forest are all close by for outdoor activities. Broadband and mobile signal are strong, and the neighbourhood has low crime levels.
3 bedroom detached house for sale in Main Street, East Ayton, Scarborough, North Yorkshire, YO13 — £318,500 • 3 bed • 1 bath • 1393 ft²
4 bedroom detached house for sale in Shelton Avenue, East Ayton, Scarborough, North Yorkshire, YO13 — £290,000 • 4 bed • 1 bath • 883 ft²
3 bedroom house for sale in 8 Castlegate, East Ayton, YO13 — £300,000 • 3 bed • 1 bath • 932 ft²
4 bedroom detached house for sale in Farrier Way, East Ayton, Scarborough, Yorkshire, YO13 — £342,000 • 4 bed • 2 bath • 1324 ft²
4 bedroom semi-detached house for sale in Betton Rise, East Ayton, Scarborough, North Yorkshire, YO13 — £265,000 • 4 bed • 2 bath • 1055 ft²
5 bedroom semi-detached house for sale in Chantry Road, East Ayton, Scarborough, North Yorkshire, YO13 — £200,000 • 5 bed • 1 bath


















































































