Chain-free, well-presented one-bedroom with garden and parking, ideal for first-time buyers..
- Chain free ground-floor apartment ready to occupy
- Long lease: 951 years remaining, peppercorn ground rent
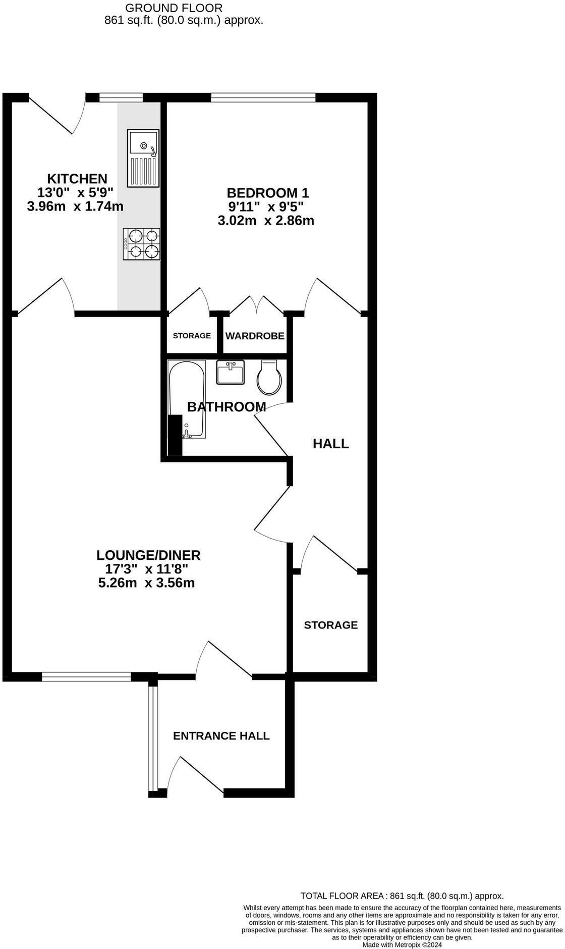
- Spacious lounge/diner and modern fitted kitchen with appliances
- Good-sized double bedroom with built-in triple wardrobes
- Enclosed rear garden and allocated off-street parking nearby
- Electric room heaters; no gas central heating
- Cavity walls shown with no added insulation (assumed)
- Built 1967–1975; double glazing install date unknown
A bright, chain-free ground-floor apartment ideal for a first-time buyer or buy-to-let investor. The accommodation is presented in immaculate order, with a spacious lounge/diner, contemporary fitted kitchen and integrated appliances, plus a modern bathroom with bath and shower.
Practical comforts include double glazing, an enclosed rear garden and allocated off-street parking nearby. The roomy double bedroom has built-in triple wardrobes and useful storage; the long lease (951 years remaining) gives ownership security and very low ongoing lease costs.
Note the property uses electric room heaters rather than gas central heating and the cavity walls are shown as having no added insulation (assumed). The building dates from the late 1960s–1970s, and double glazing install date is unknown. These are manageable points but worth factoring into running-cost and retrofit plans.
Overall this is a well-presented, low-maintenance starter home or rental opportunity in comfortable, low-crime Kingsteignton with good local schools and fast broadband. Offered chain free for quick completion, it’s ready for immediate occupation or letting.
1 bedroom ground floor flat for sale in Longfield Avenue, Kingsteignton, Newton Abbot, TQ12 3RA, TQ12 — £170,000 • 1 bed • 1 bath • 495 ft²
1 bedroom apartment for sale in Gestridge Road, Kingsteignton, TQ12 — £130,000 • 1 bed • 1 bath • 506 ft²
1 bedroom maisonette for sale in Captains Road, Kingsteignton, Newton Abbot, TQ12 — £120,000 • 1 bed • 1 bath • 373 ft²
2 bedroom flat for sale in Crossley Moor Road, Kingsteignton, TQ12 — £200,000 • 2 bed • 1 bath • 603 ft²
1 bedroom apartment for sale in Gate Tree Close, Kingsteignton, TQ12 3RB, TQ12 — £170,000 • 1 bed • 1 bath • 469 ft²
1 bedroom flat for sale in Templers Road, Newton Abbot, Devon, TQ12 — £100,000 • 1 bed • 1 bath • 454 ft²














































