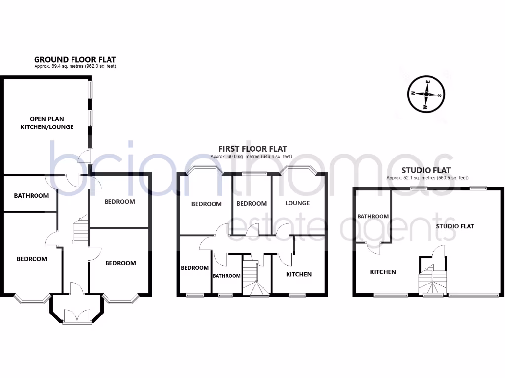
**Key Features:**
- Fully extended double-fronted property with three separate flats
- Ground and first-floor flats each with three bedrooms; large studio on the second floor
- Potential rental income of £5,500 PCM, currently generating £4,750 PCM
- Spacious outbuilding with bathroom, ideal for extra storage or utility space
- Ample off-street parking available
- Situated a short walk from Goodmayes TFL Rail and Elizabeth Line station for convenient commuting
- Total living space: 2,168 sq. ft.
This fully extended triplex property presents an exceptional investment opportunity, boasting three well-appointed flats, perfect for generating substantial rental income. Each unit features thoughtful layouts, with the ground and first-floor flats offering three bedrooms, while the expansive studio on the second floor provides additional versatility. The large outbuilding adds value as extra storage or potential workspace.
Located in a vibrant community just minutes from Goodmayes station, commuting into the city is seamless, enhancing the property's appeal for tenants. While the current rental income stands at £4,750 PCM, the achievable potential is promising at £5,500 PCM. The property is primarily in good condition; however, investors should consider that the solid brick structure may require some cosmetic updates or enhancements over time.
Families and first-time buyers will appreciate the nearby amenities, including schools rated 'Good' by OFSTED, making this an ideal living space. With a competitive price of £950,000, this property combines comfort, investment potential, and the excitement of urban living. Don’t miss out on this unique opportunity to secure a multi-flat property in a bustling area—act quickly as it won’t last long!
4 bedroom end of terrace house for sale in Aberdour Road, Ilford, IG3 — £900,000 • 4 bed • 2 bath • 1731 ft²
5 bedroom semi-detached house for sale in Wellesley Road, Ilford, Essex, IG14JX, IG1 — £820,000 • 5 bed • 3 bath • 1181 ft²
House for sale in Balfour Road, Ilford, IG1 — £750,000 • 1 bed • 1 bath • 496 ft²
3 bedroom terraced house for sale in Birkbeck Road, Ilford, Essex, IG2 — £550,000 • 3 bed • 2 bath • 682 ft²
Commercial property for sale in 794 Green Lane, Dagenham, London, RM8 — £500,000 • 2 bed • 1 bath • 1532 ft²
2 bedroom apartment for sale in Aberdour Road, Ilford, IG3 — £375,000 • 2 bed • 1 bath • 1081 ft²














































































