**Standout Features:**
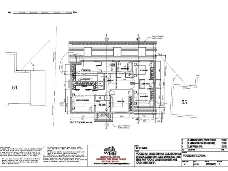
- Spacious detached property with three double bedrooms and an additional study
- Plots spans approximately 1/3 acre, offering ample outdoor space
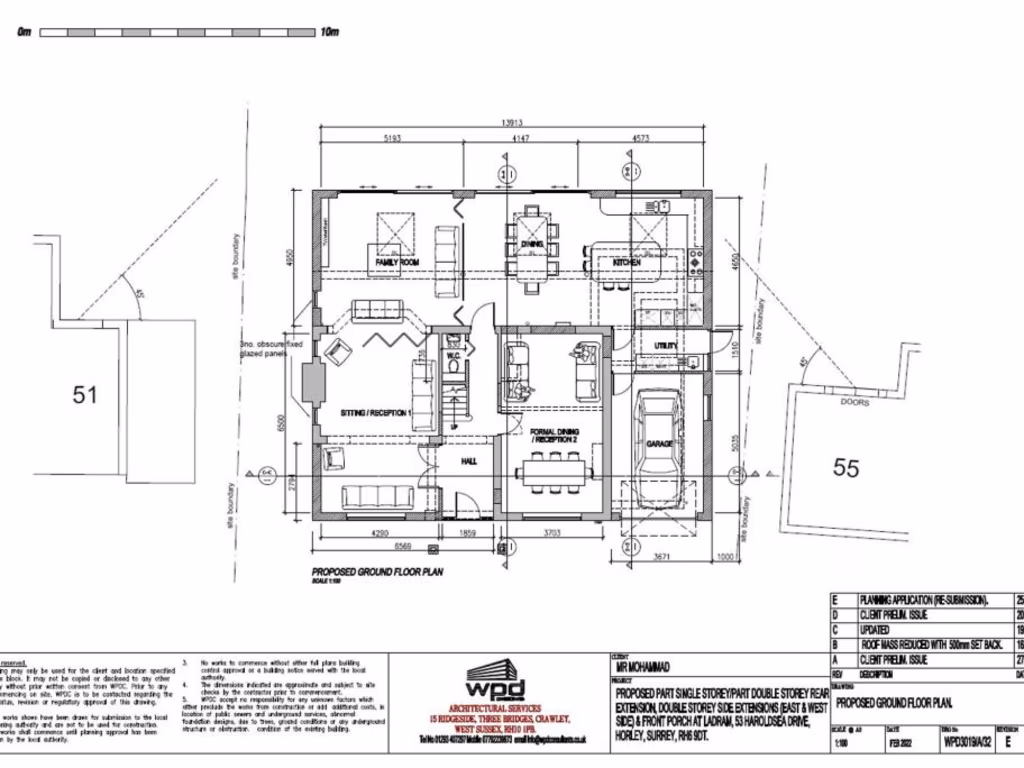
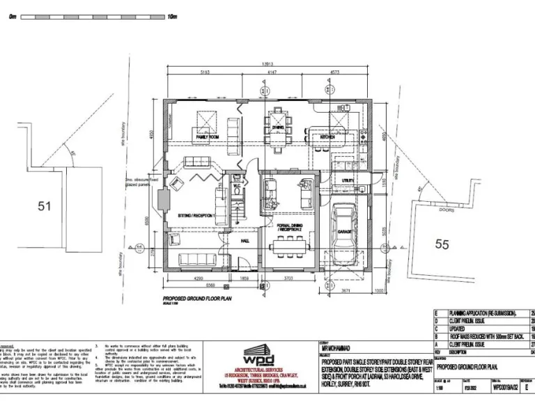
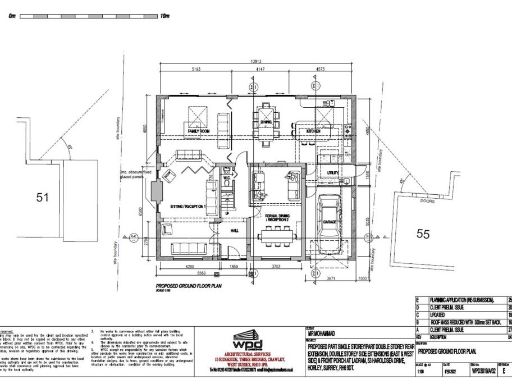
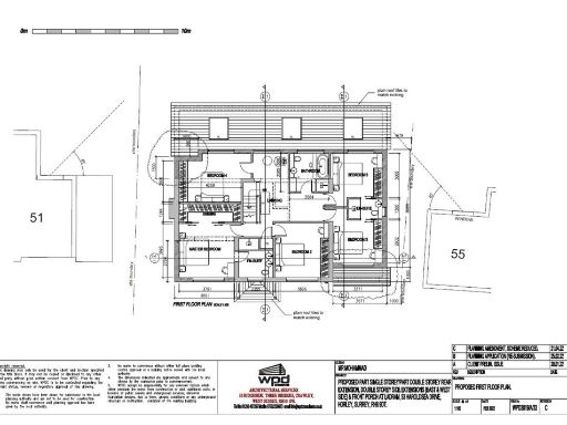
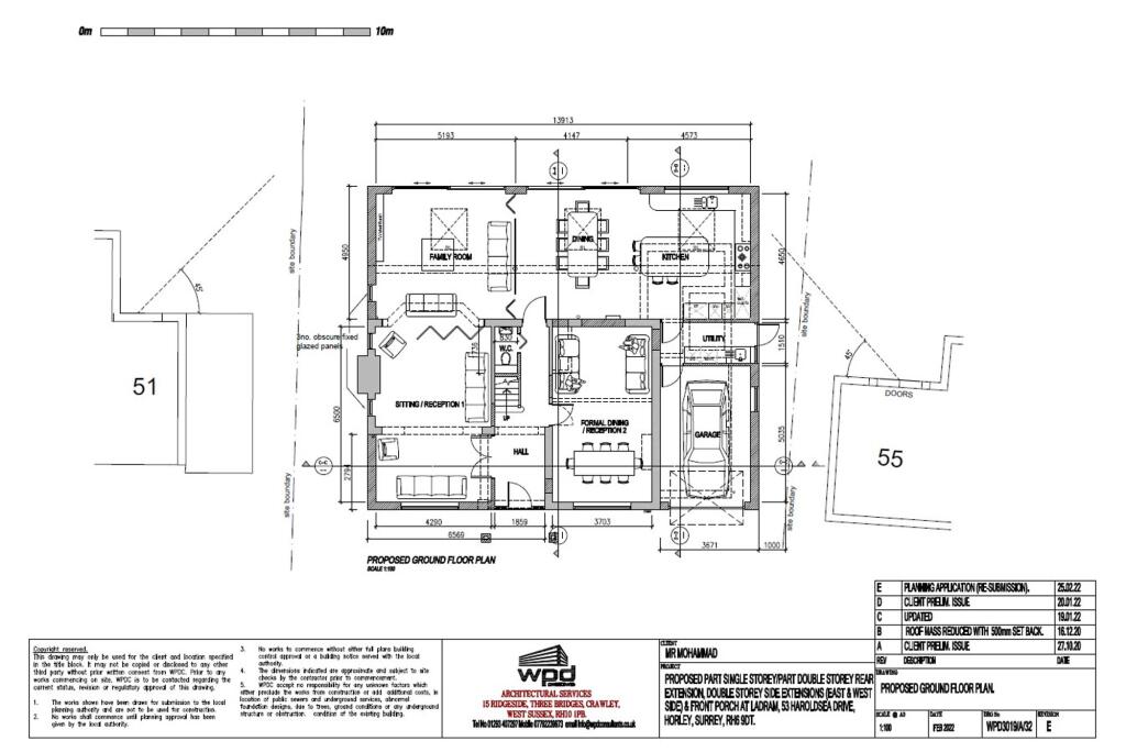
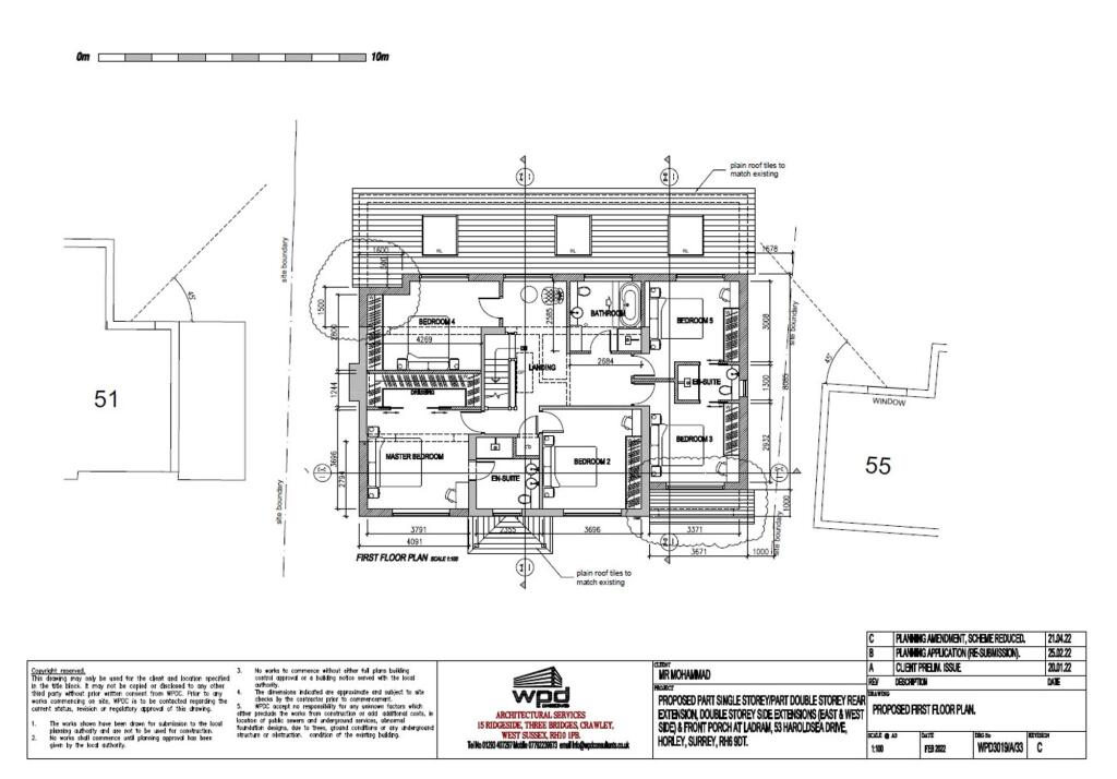
- Planning permission has been granted for significant extensions
- Desirable location near Horley town center, train station, and Gatwick Airport
- Large garden with privacy from trees, ideal for families or entertaining
- Driveway parking plus garage for convenience
**Concise Summary:**
Discover a well-presented three-bedroom detached home in one of Horley’s sought-after neighborhoods, boasting a generous 1/3 acre plot perfect for outdoor enjoyment and future expansion. With planning permission already granted for substantial building works, this property has incredible potential for renovation and personalization.
The spacious interior features a welcoming entrance hall leading to a bright living room, dining area, and a well-configured kitchen. Additionally, an office space provides versatility for remote work or study. Upstairs, three generous double bedrooms share a well-appointed bathroom, blending modern comfort with charming character.
Outside, the vast garden is a true highlight, offering ample room for children to play or to host gatherings, framed by high greenery for added privacy. Located mere moments from local schools with excellent ratings and convenient amenities, this property combines comfort, lifestyle, and future possibilities. Don't miss this exclusive opportunity—ideal for families or investors looking to capitalize on a prime location!
3 bedroom detached house for sale in Limes Avenue, Horley, Surrey, RH6 — £625,000 • 3 bed • 1 bath • 1430 ft²
3 bedroom terraced house for sale in Crescent Way, Horley, Surrey, RH6 — £425,000 • 3 bed • 2 bath • 1313 ft²
4 bedroom detached house for sale in Ashleigh Close, Horley, RH6 — £635,000 • 4 bed • 3 bath • 1954 ft²
4 bedroom detached house for sale in Sangers Drive, Horley, Surrey, RH6 — £500,000 • 4 bed • 1 bath • 1098 ft²
4 bedroom detached house for sale in Silverlea Gardens, Horley, Surrey, RH6 — £825,000 • 4 bed • 2 bath • 2028 ft²
4 bedroom semi-detached house for sale in Crescent Way, Horley, Surrey, RH6 — £550,000 • 4 bed • 2 bath • 2500 ft²






















































































































































