Compact modern apartment minutes from station, ideal for first-time buyers.
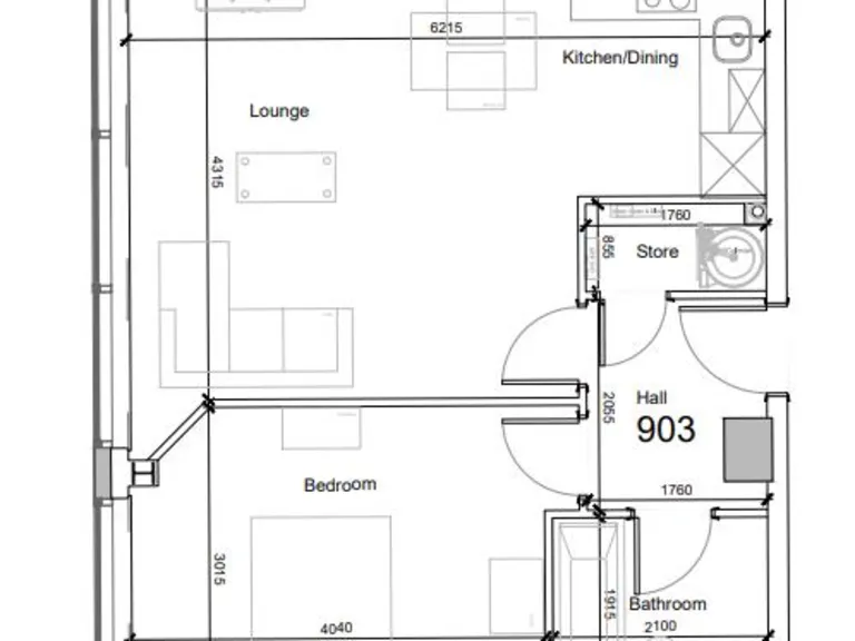
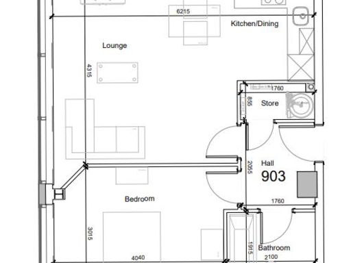
9th-floor one-bedroom apartment, approx 495 sq ft
Set on the 9th floor of a contemporary purpose-built block, this one-bedroom apartment places Basingstoke’s transport and shopping amenities on your doorstep. The open-plan living and kitchen area benefits from good natural light and city views from an elevated position, creating an airy feel in a compact 495 sq ft footprint. A lift, secure entry and 24-hour concierge add convenience for daily commuting.
The property is offered with tenants in situ, making it a straightforward option for buy-to-let investors, while the long lease (143 years remaining) and town-centre location also suit first-time buyers seeking an easy commute to London (under an hour). The layout comprises an open-plan kitchen/lounge, double bedroom and modern bathroom with shower over bath.
There are important practical points to note: the building uses electric room heaters rather than gas central heating, service charges are c. £2,000pa and ground rent £350pa. The local area records very high crime levels and higher deprivation indices, and the site has a medium flood risk—factors buyers should weigh when viewing.
Overall this apartment offers a low-hassle, central buy with clear rental or owner-occupier potential, but it is best suited to those who accept higher running costs, communal charges and the urban location’s local social challenges.
1 bedroom apartment for sale in Churchill Way, Basingstoke, Hampshire, RG21 — £100,000 • 1 bed • 1 bath • 420 ft²
1 bedroom flat for sale in Basingstoke, Hampshire, RG21 — £160,000 • 1 bed • 1 bath • 559 ft²
1 bedroom apartment for sale in Edison House, 16-18 Winchester Road, Basingstoke, Hampshire, RG21 — £150,000 • 1 bed • 1 bath • 333 ft²
Studio flat for sale in Alencon Link, Basingstoke, Hampshire, RG21 — £165,000 • 1 bed • 1 bath • 410 ft²
1 bedroom flat for sale in Alencon Link, Basingstoke, Hampshire, RG21 — £165,000 • 1 bed • 1 bath • 399 ft²
1 bedroom flat for sale in Skyline Plaza, Basingstoke, RG21 — £170,000 • 1 bed • 1 bath • 582 ft²


















































