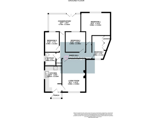
**Standout Features:**
- Extended detached bungalow in a quiet residential area.
- Four spacious bedrooms with potential for a family.
- Ample off-road parking and a detached garage.
- Inviting conservatory for added living space.
- Offered chain-free for a smooth purchase.
- Generous plot with a low-maintenance garden.
- In need of renovation, allowing for personalization.
**Potential Concerns:**
- Requires modernization throughout, particularly in the kitchen and bathroom.
- Neighborhood has above-average crime rates and some area deprivation.
Discover the potential of this extended detached bungalow, offering a wealth of living space with four bedrooms—ideal for a growing family or as a smart investment opportunity. With its ample off-road parking and a detached garage, you'll appreciate the convenience this property brings. The inviting conservatory provides a sunny retreat, while the low-maintenance garden allows for relaxation without the commitment of extensive upkeep.
Situated in a city setting with quick access to local amenities and schools rated 'Good' or better, this property is a hidden gem that promises both comfort and opportunity. Although it requires renovation to reach its full potential, this is a blank canvas ready for your personal touch. Enjoy the privacy of a tranquil neighborhood while benefiting from excellent mobile and broadband connectivity. Opportunities like this don’t last long—imagine the possibilities and act now!
2 bedroom detached bungalow for sale in Pennine Way, Biddulph, ST8 — £210,000 • 2 bed • 1 bath • 646 ft²
3 bedroom detached bungalow for sale in Holyhead Crescent, Stoke-On-Trent, ST3 — £200,000 • 3 bed • 1 bath • 808 ft²
3 bedroom detached bungalow for sale in Long Lane, Harriseahead, ST7 — £220,000 • 3 bed • 1 bath • 889 ft²
2 bedroom detached bungalow for sale in Roe Lane, Westlands, ST5 — £325,000 • 2 bed • 1 bath • 1195 ft²
2 bedroom detached bungalow for sale in Hough Hill, Stoke-on-Trent, ST6 — £325,000 • 2 bed • 1 bath • 807 ft²
3 bedroom semi-detached bungalow for sale in Joyce Ave, Bradeley , Stoke-On-Trent, ST6 — £160,000 • 3 bed • 1 bath • 743 ft²


























































