Elevated plot with large garden, outbuilding and far-reaching views.
Three double bedrooms with original period features
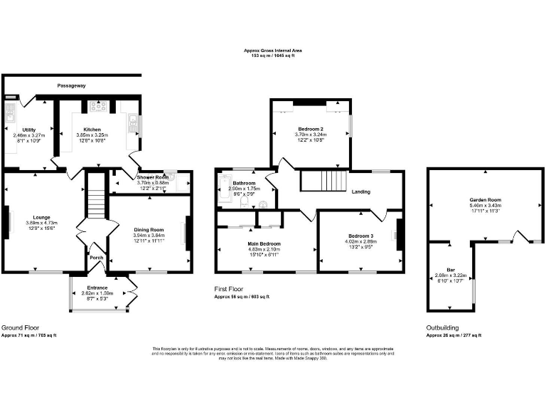
Set on an elevated plot in a popular village fringe, this three-double-bedroom detached home delivers expansive mountain, valley and Swansea Bay views. Period details including cast-iron fireplaces, original coving and a farmhouse kitchen give the house strong character, while a large tiered garden, gazebo (hot tub-ready) and an insulated ‘Man Cave’ with Tiki bar and gym create versatile outdoor living and entertaining space.
Internally the layout is generous: two reception rooms, conservatory, practical utility and ground-floor shower room plus a first-floor bathroom with a cast-iron bath. Parking is available on-road and a single garage opposite provides secure off-road parking. At 1,645 sq ft on a large plot, the house offers scope to modernise and reconfigure to suit growing families or to increase rental/Airbnb income.
Notable facts to consider: the EPC is D and the council tax band is D. Broadband speeds are average and the wider area has higher levels of deprivation, which may affect long-term resale values in parts. The property is freehold and not at flood risk. Some updating and potential refurbishment will be needed to maximise value — there is character to retain but also scope for modernisation.
This property will suit buyers seeking countryside lifestyle with convenient access to outdoor recreation (Waterfall Country and Brecon Beacons nearby), those wanting extra entertaining/outbuilding space, or investors considering holiday-let potential. Viewings will be most useful for people who value original features and large outdoor space but accept a renovation programme to refresh services and finishes.
3 bedroom detached house for sale in Coronation Avenue, Cymmer, Port Talbot, SA13 3NT, SA13 — £180,000 • 3 bed • 1 bath • 945 ft²
5 bedroom detached house for sale in Abermellte Court, Pont Nedd Fechan, Neath, SA11 5NJ, SA11 — £600,000 • 5 bed • 4 bath • 1947 ft²
3 bedroom detached house for sale in Cwmphil Road, Lower Cwmtwrch, Swansea., SA9 — £350,000 • 3 bed • 1 bath
3 bedroom semi-detached house for sale in Heol Tawe, Abercrave, SA9 — £220,000 • 3 bed • 2 bath • 1043 ft²
3 bedroom detached house for sale in Golwg Y Mynydd, Godrergraig, Swansea, SA9 2DN, SA9 — £270,000 • 3 bed • 2 bath
3 bedroom detached house for sale in ., Neath, SA10 — £375,000 • 3 bed • 2 bath • 1206 ft²














































































































































