**Standout Features:**
- Grade II Listed property dating back to 1550, enriched with historical charm.
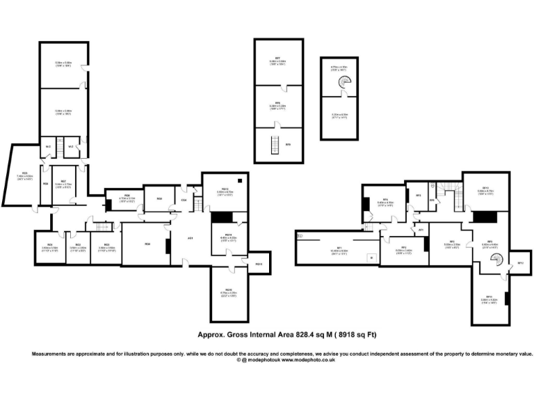
- Expansive 740.88 sq. m (7,975 sq. ft) space on a stunning 2.34-hectare (5.79 acres) site.
- Potential for transformation back into a large residential home or development into offices (planning permission in place for two-storey office building).
- Features include exquisite original elements, mature trees protected by TPOs, and historic walled gardens.
- Separate Gatehouse with additional parking spaces (6 onsite).
**Summary:**
Discover an exceptional opportunity with 'The Old Rectory,' a historic Grade II property nestled in the picturesque Suffolk countryside. Boasting a remarkable floor area of nearly 8,000 sq. ft., this Georgian-style estate offers a mix of traditional architecture and modern potential. With planning permission secured for two-storey offices, the property provides a versatile canvas for investors or homeowners looking to restore its former glory. Secure your chance to revive the stately charm of the interior, featuring ornate fireplaces and high ceilings, all while enjoying the scenic views of the meticulously landscaped grounds complete with mature trees and a charming walled garden.
While the property presents a magnificent project opportunity, its listed status may introduce certain challenges to renovations—this is a project for those ready to invest in its historic character. Located in an affluent community with excellent mobile connectivity and low crime rates, families will appreciate the proximity to reputable primary and secondary schools, making it ideal for long-term living. Don't miss the chance to own a piece of history and create your dream country residence or office space. This is a rare find that won’t last long!
5 bedroom detached house for sale in Church Lane, Claydon, IP6 — £1,250,000 • 5 bed • 1 bath • 9000 ft²
7 bedroom detached house for sale in Little Blakenham, Ipswich, Suffolk, IP8 — £1,750,000 • 7 bed • 4 bath • 5378 ft²
6 bedroom detached house for sale in Newton, Sudbury, Suffolk, CO10 — £1,650,000 • 6 bed • 4 bath • 9690 ft²
6 bedroom detached house for sale in Belchamp Otten, Suffolk/Essex Border, CO10 — £1,795,000 • 6 bed • 6 bath • 6344 ft²
5 bedroom detached house for sale in Sudbury, Suffolk, CO10 — £1,495,000 • 5 bed • 3 bath • 4480 ft²
8 bedroom detached house for sale in Rookery Road, Monewden, Woodbridge, Suffolk, IP13 — £1,650,000 • 8 bed • 4 bath • 6380 ft²


















































