Substantial five-bedroom period house with extensive gardens, garage and no onward chain.
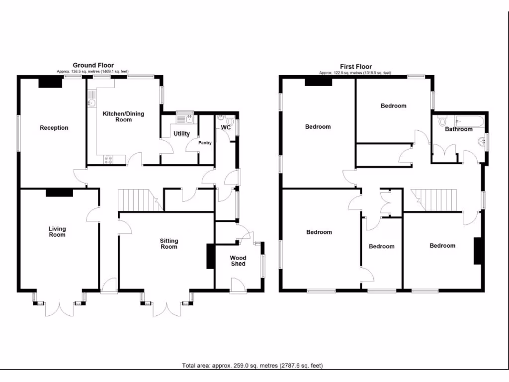
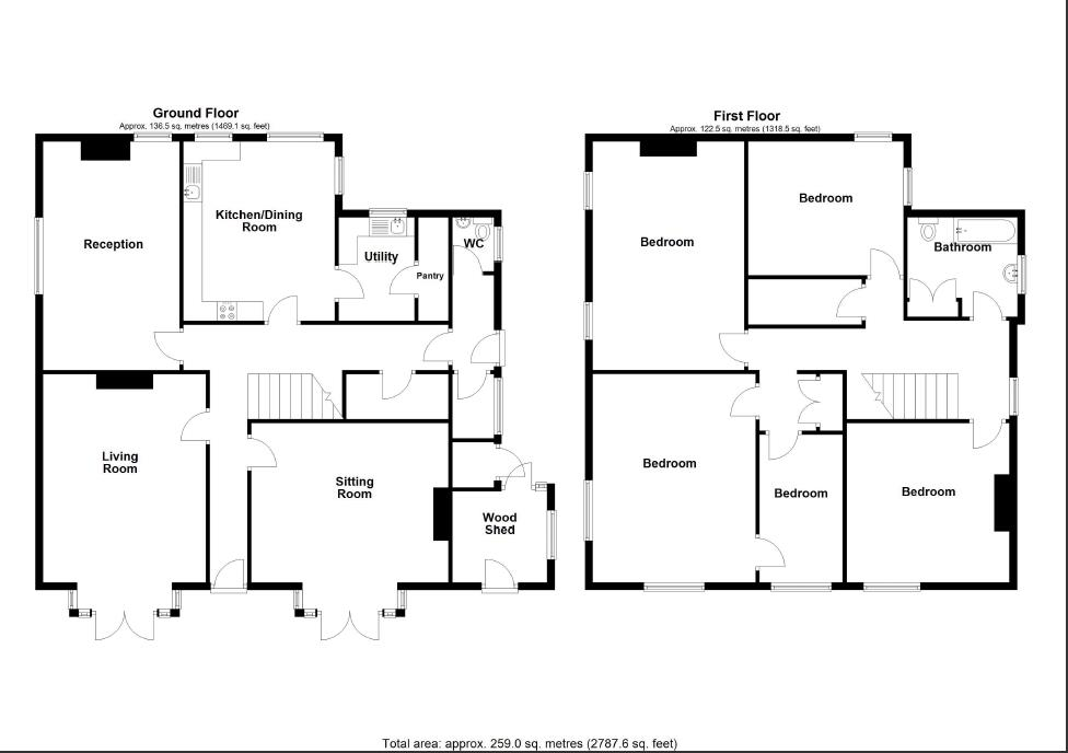
Five double bedrooms and three large reception rooms
Moreton House is a substantial Victorian detached family home set well back from Station Road in Weston Rhyn. The house offers five generous bedrooms, three large reception rooms and a roomy kitchen/breakfast space — original sash windows, fireplaces and quarry-tiled floors retain clear period character. The property is chain free and occupies approximately half an acre of mature, private grounds with two garages, an additional outbuilding and driveway parking.
The plot and outbuildings present clear scope to enhance living space or add value, subject to planning consent — convert the log store or outbuilding, landscape the productive growing plot, or extend into the generous gardens. Practical features include pantry/utility space and substantial built-in storage across the first floor landing.
Buyers should note the house will benefit from refurbishment to bring services and finishes up to modern standards; there is cosmetic wear consistent with age. There is historic Japanese knotweed in the garden that is being treated under a thermo-electric plan by an authorised provider. Council tax is understood to be Band E, and viewing in person is recommended to appreciate scale and condition.
This home suits families seeking a roomy, characterful house in a quiet village setting or buyers looking for a renovation project with long-term potential on a very large plot. Low local crime, good nearby schools and countryside surroundings add to the property's appeal.
3 bedroom detached house for sale in Weston Rhyn, Oswestry, SY10 7SD, SY10 — £295,000 • 3 bed • 2 bath • 1224 ft²
2 bedroom terraced house for sale in Roseville, Station Road, Weston Rhyn, SY10 — £170,000 • 2 bed • 1 bath • 948 ft²
6 bedroom detached house for sale in Weston Rhyn, SY10 7LB, SY10 — £1,250,000 • 6 bed • 4 bath • 7583 ft²
2 bedroom end of terrace house for sale in Plough Bank, Station Road, Weston Rhyn, Oswestry, SY10 — £190,000 • 2 bed • 1 bath • 775 ft²
4 bedroom detached house for sale in Aspen Grange, Weston Rhyn, Nr Oswestry., SY10 — £325,000 • 4 bed • 1 bath • 1300 ft²
4 bedroom house for sale in Nant Lane, Morda, Oswestry, SY10 — £750,000 • 4 bed • 2 bath • 3537 ft²






















































































































