Three-bedroom, chain-free home with garden and renovation potential in Chesham..
- Three bedrooms and lounge/diner with decent room proportions
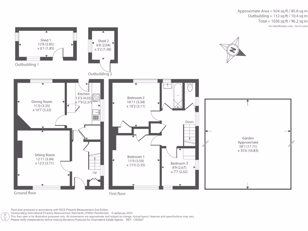
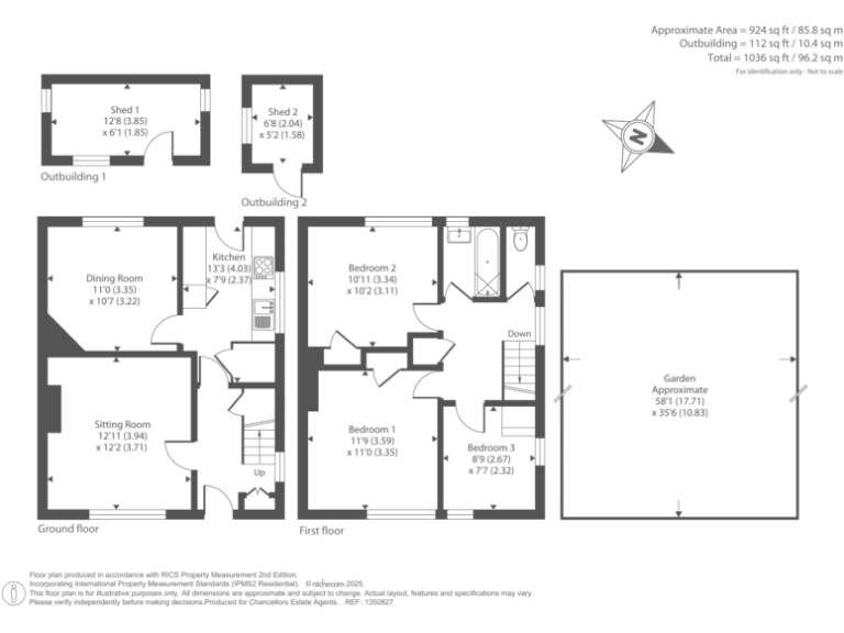
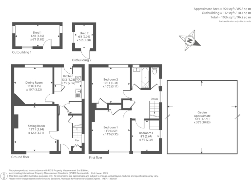
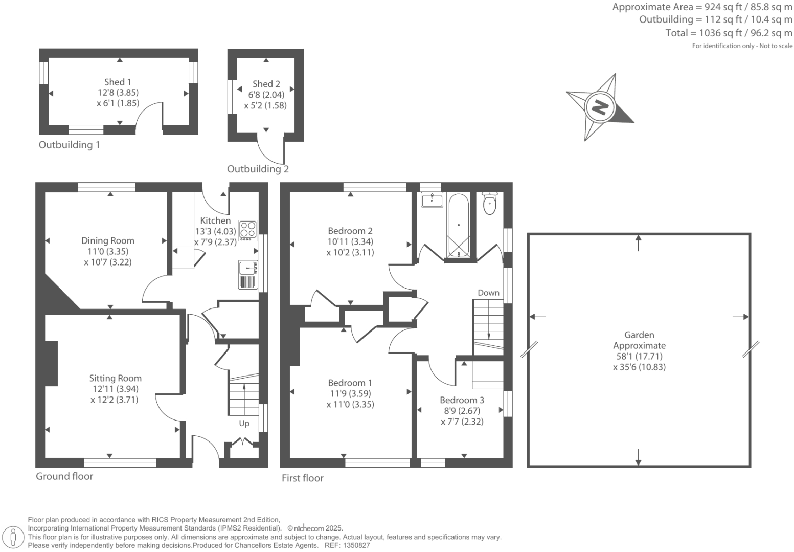
- Approx. 1,036 sq ft with decent rear garden and cul-de-sac setting
- Chain free and freehold — no onward chain
- Requires modernization throughout; renovation works expected
- Double glazing present; boiler and radiators on mains gas
- On-street parking only; no driveway or garage
- Local crime levels above average — factor for buyers/investors
- Close to Good/Outstanding schools and local amenities
A three-bedroom end-of-terrace home in Chesham offered chain-free and ready for renovation. Set in a cul-de-sac position with far-reaching views, the property provides an average-sized footprint (approx. 1,036 sq ft) and a decent rear garden — a solid canvas for a growing family or buyers seeking improvement potential.
Internally the layout is practical: entrance hall, lounge/dining room, separate kitchen, three bedrooms, bathroom and separate WC. The house has double glazing and mains gas central heating with boiler and radiators, reducing immediate major-services concerns. The home dates from the 1950–66 era and retains mid-century character, though modernisation is required throughout.
Location strengths include good local schools (several rated Good or Outstanding), fast broadband, excellent mobile signal and nearby amenities such as a nursery, recreation ground and convenience store. Street parking serves the property; there is no off-street parking provided. Note the local area records above-average crime and the wider area classification indicates pockets of hardship — relevant for buyers weighing long-term rental or resale prospects.
This freehold, multi-story property is suited to families looking to personalise a home, developers seeking modest renovation scope, or first-time buyers able to take on a refurbishment project. Important negatives are the need for renovation and on-street parking only; survey recommended to confirm condition and any hidden repair costs.
3 bedroom terraced house for sale in Chesham, Buckinghamshire, HP5 — £500,000 • 3 bed • 1 bath • 1059 ft²
3 bedroom terraced house for sale in Fair Leas, Chesham, Buckinghamshire, HP5 — £385,000 • 3 bed • 1 bath • 809 ft²
3 bedroom terraced house for sale in Chesham, Buckinghamshire, HP5 — £325,000 • 3 bed • 1 bath • 884 ft²
3 bedroom semi-detached house for sale in Nutkins Way, Chesham, HP5 2BE, HP5 — £450,000 • 3 bed • 1 bath • 1132 ft²
4 bedroom semi-detached house for sale in Wykeridge Close, Chesham, Buckinghamshire, HP5 — £460,000 • 4 bed • 1 bath • 1250 ft²
3 bedroom semi-detached house for sale in Patterson Road, Chesham, HP5 — £455,000 • 3 bed • 1 bath • 1006 ft²










































































