**Standout Features:**
- Prime location in a peaceful cul-de-sac
- Well-presented two-bedroom semi-detached bungalow
- Low maintenance gardens with modern landscaping
- Ample parking including a garage and shed
- Close to shopping facilities and approximately one mile from the town center
- Chain free with gas central heating and double glazing
- Very low crime rate in the area
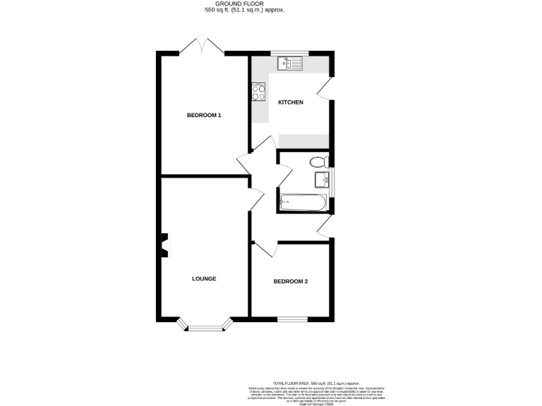
This delightful two-bedroom semi-detached bungalow offers a perfect blend of tranquility and convenience in a highly sought-after cul-de-sac setting. The carefully maintained interiors feature a welcoming entrance hall, a cozy living room, a fitted kitchen, two inviting bedrooms, and a well-appointed bathroom. Boasting a gas-fired central heating system and double glazing, this home promises comfort and efficiency year-round.
Outside, enjoy attractive, low maintenance gardens, a spacious garage/workshop, and a shed, perfect for hobbyists or additional storage. Situated close to essential shops and facilities, and just a mile from the town center, this property presents an ideal opportunity for first-time buyers, families, or those looking to downsize.
While the bungalow is well-kept, the overall size is compact, which may appeal to those seeking ease of maintenance rather than extensive space. The prime location ensures excellent potential for both comfortable living and investment. With a very low crime rate, and a host of good local schools, this charming home combines security and community — don’t miss out on this charming property that could soon become your serene retreat.











































