**Standout Features:**
- Historical charm with Grade II listed status dating back to 1600
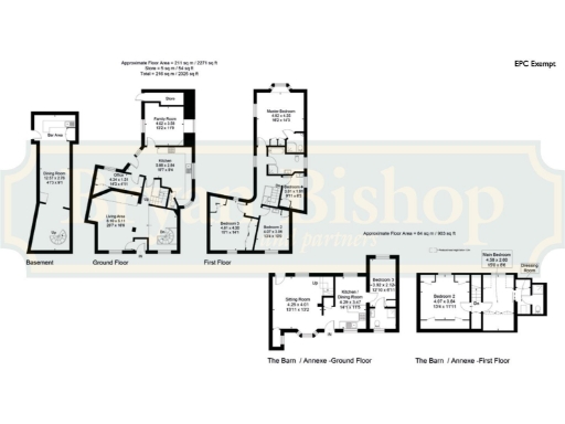
- Spacious 6-bedroom main house and a separate 3-bedroom annexe ("The Barn")
- Impressive cellar with medieval architecture, ideal for entertaining
- Generous garden space and off-street parking
- Located in a vibrant and affluent village community with low crime rates
**Notable Concerns:**
- Listed status may limit renovation possibilities
- Basement dining area has low ceiling height
Nestled on a picturesque cobbled street in the heart of Welwyn, this delightful detached house perfectly balances historical charm with modern comfort. Boasting over 3,000 square feet, the main residence features six tastefully appointed bedrooms and four bathrooms that showcase a unique design filled with character, including exposed beams and original brickwork. A standout feature is the stunning cellar, a medieval gem perfect for hosting guests, while the traditional kitchen and family room promise an inviting space for everyday living.
The property includes a separate three-bedroom annexe, presenting a fantastic opportunity for rental income or multi-generational living. Outside, the decent-sized garden provides a tranquil retreat, complemented by convenient off-street parking. Living here means you're surrounded by the charm of a thriving village with ample local amenities, schools, and excellent transport links to London.
This rare opportunity embodies comfort, exclusivity, and historical significance, making it perfect for buyers seeking a unique home in an affluent community. Don't miss your chance to own a piece of history!
4 bedroom detached house for sale in Danesbury Park Road, Welwyn, Hertfordshire, AL6 — £1,250,000 • 4 bed • 2 bath • 2494 ft²
2 bedroom terraced house for sale in Mill Lane, Welwyn, Hertfordshire, AL6 — £500,000 • 2 bed • 1 bath • 884 ft²
4 bedroom terraced house for sale in Church Lane, Kimpton, Hitchin, SG4 — £750,000 • 4 bed • 2 bath • 967 ft²
3 bedroom semi-detached house for sale in Welwyn Hall Gardens, Welwyn, AL6 — £625,000 • 3 bed • 2 bath • 1311 ft²
3 bedroom link detached house for sale in High Street, Welwyn, AL6 — £495,000 • 3 bed • 1 bath • 1123 ft²
2 bedroom cottage for sale in Church Street, Welwyn, AL6 — £525,000 • 2 bed • 1 bath • 799 ft²


































































































































