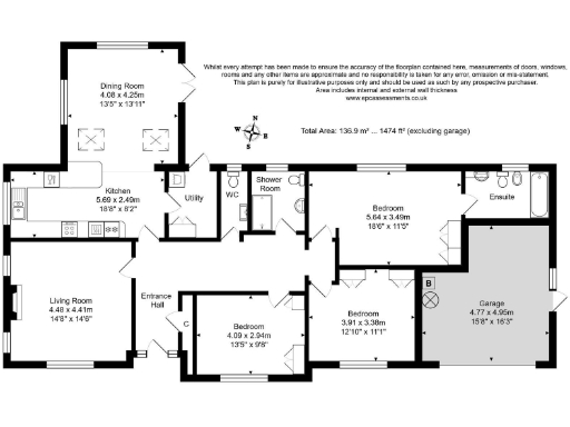
**Standout Features:**
- Three double bedrooms and two bathrooms.
- Attractive, spacious kitchen dining room with natural light and garden views.
- Comfortable sitting room with dual aspect fireplace.
- Large landscaped garden with patio area, ideal for outdoor entertaining.
- Detached large garage and ample driveway parking.
- No chain—ready for immediate purchase!
- Located in a sought-after village near Bath with excellent local amenities.
This stunning three-bedroom detached bungalow, 'Kintor', offers a harmonious blend of modern comfort and classic charm in the picturesque village of Limpley Stoke. Benefiting from a well-lit, stylish kitchen dining room that opens directly onto a beautifully landscaped garden, this home is perfect for those looking to entertain or unwind in serene surroundings. The spacious sitting room, enhanced by a dual aspect fireplace, creates a welcoming atmosphere for family gatherings.
Retreat to the generous master bedroom with its own ensuite, while two additional double bedrooms provide ample accommodation for the family or guests. The expansive garden presents a blank canvas for gardening enthusiasts, featuring a sizeable patio for al fresco dining. Though the property requires attention to insulation and potential upgrades (with cavity walls built as-is), this presents an exciting opportunity for customization.
Located with easy access to Bath’s vibrant city center and surrounded by the tranquility of local walking paths, this home combines village living with proximity to urban conveniences. With extremely low crime rates and excellent schooling options nearby, this bungalow is ideal for families or those seeking a peaceful community. Don’t miss your chance to own this exceptional property—schedule a viewing today!
4 bedroom detached bungalow for sale in Uplands Close, Limpley Stoke, Bath, BA2 — £775,000 • 4 bed • 3 bath • 1400 ft²
3 bedroom detached bungalow for sale in Shoscombe, Bath, BA2 — £549,950 • 3 bed • 2 bath • 1403 ft²
3 bedroom detached house for sale in Lower Stoke, Limpley Stoke, Bath, BA2 — £595,000 • 3 bed • 1 bath • 875 ft²
2 bedroom semi-detached bungalow for sale in Holcombe Close, Bathampton, Bath, BA2 — £525,000 • 2 bed • 2 bath • 1027 ft²
3 bedroom detached house for sale in Sladebrook Road, Bath, BA2 — £650,000 • 3 bed • 2 bath • 1520 ft²
3 bedroom detached bungalow for sale in Somerdale Avenue, Bath, Somerset, BA2 — £460,000 • 3 bed • 1 bath • 953 ft²






















































































