Large newly built four-bedroom house with gardens, double garage and underfloor heating..
Newly built (2021) detached family house over 2,400 sq ft
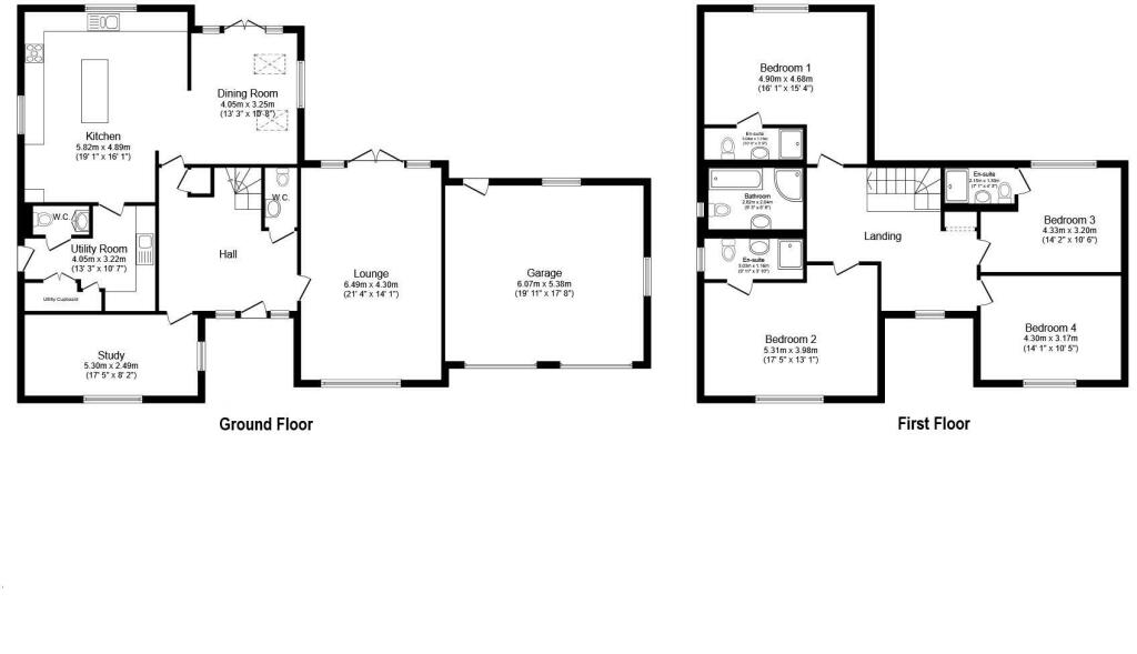
A substantial newly built family home finished in stone, 1 Wheal Georgia offers over 2,400 sq ft of well-proportioned living arranged across two floors. The ground floor centres on a large contemporary kitchen with utility, vaulted sunroom, sitting room, study and generous circulation space. Upstairs are four double bedrooms, three with en‑suite facilities, vaulted ceilings and plentiful storage.
Built in 2021 and offered chain free, the house sits on a very large plot with lawns, a brick‑paved driveway and a double garage/workshop. Energy-efficient features include an air source heat pump and underfloor heating; services are mains connected and the property is rated EPC C with good thermal performance in its walls.
Practical considerations include inclusion in a management company to maintain the shared driveway and communal areas (ongoing charge applies). Council Tax is Band F and will be relatively expensive; the location is in an ageing rural neighbourhood with higher area deprivation metrics despite very low crime and excellent connectivity to local towns and beaches.
This home will suit buyers seeking spacious, low‑maintenance modern living in a coastal‑fringe village — families wanting room and comfort, or buyers looking for a high‑quality executive house with immediate occupation potential.
4 bedroom detached house for sale in Wheal Georgia, Rosudgeon, Penzance, Cornwall, TR20 — £750,000 • 4 bed • 4 bath • 2400 ft²
4 bedroom detached house for sale in Wheal Georgia, Rosudgeon, Penzance, Cornwall, TR20 — £750,000 • 4 bed • 4 bath • 1917 ft²
4 bedroom detached house for sale in Stunning four bed home, Rosudgeon, TR20 — £629,950 • 4 bed • 2 bath • 1561 ft²
4 bedroom detached house for sale in Rosudgeon, Penzance, Cornwall, TR20 — £650,000 • 4 bed • 2 bath • 2153 ft²
4 bedroom detached house for sale in Wheal Rose, Scorrier, TR16 — £575,000 • 4 bed • 4 bath • 1562 ft²
5 bedroom detached house for sale in Walters Way, Rosudgeon, Penzance, TR20 — £695,000 • 5 bed • 3 bath • 1358 ft²






























































































































