1.7 acres with planning for two homes, woodland views and substantial renovation scope.
Full planning for two homes (ref 20/04251/FUL) utilising existing footprints
Large 1.7 acre freehold plot with west‑facing panoramic views
South‑facing gardens; site edge of Hollybush Wood
Shared driveway; forestry vehicle access retained through northern site
Existing derelict barns and outbuildings require major demolition/renovation
Hamlet/isolated location; 3.5 miles to Hexham and Corbridge
Crime level recorded as above average locally — factor in security
Fast broadband, no flood risk; council tax band unknown
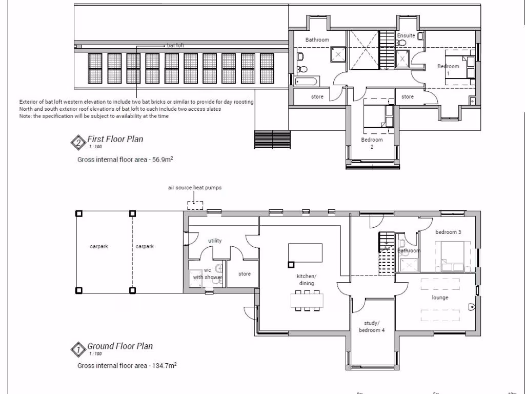
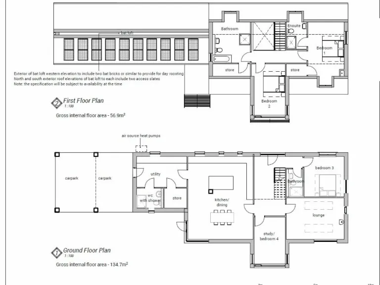
Hollybush Sawmill is a rare 1.7‑acre freehold plot on the crest of the valley, offered with full planning permission (ref 20/04251/FUL) for two residential homes. The site sits on the verge of Hollybush Wood and benefits from open west‑facing views and south‑facing gardens. The permissions reuse the footprints of existing buildings, creating generous family homes and separate garage/studio accommodation.
The setting is rural and tranquil, yet the site is 3.5 miles from both Hexham and Corbridge where shops, supermarkets and rail links to Newcastle and Carlisle are available. Practical strengths include fast broadband, no flood risk, and a shared driveway with retained access for forestry vehicles into the adjoining woodlands.
What you see on site are derelict barns, a rundown shed and substantial rustic outbuildings. These structures present clear development and refurbishment scope but will require demolition, structural work or full rebuilding. Buyers should budget for significant refurbishment or rebuild costs and secure specialist contractors for remediation and conversion work.
Other material points: the neighbourhood is an ageing rural hamlet and crime is recorded as above average locally. The plot is best suited to buyers seeking a substantial countryside development project — for personal occupation or an investment — who can manage the practical and cost implications of converting derelict agricultural buildings into two new homes.
Land for sale in West Peterel Field Barn, Dipton Mill Road, Hexham, Northumberland, NE46 — £320,000 • 5 bed • 5 bath • 2895 ft²
Land for sale in Healey Sawmill, Healey, Riding Mill, Northumberland, NE44 — £500,000 • 4 bed • 1 bath
3 bedroom detached house for sale in Dukesfield Mill, Hexham, NE46 — £325,000 • 3 bed • 1 bath • 1105 ft²
Plot for sale in Plot 2 Kearsley Farm, Ingoe, Newcastle upon Tyne, Northumberland, NE20 — £190,000 • 1 bed • 1 bath • 3481 ft²
5 bedroom detached house for sale in The Shieling, Humshaugh, Hexham, Northumberland, NE46 — £650,000 • 5 bed • 3 bath • 1669 ft²
2 bedroom bungalow for sale in Wall, Hexham, Northumberland, NE46 — £350,000 • 2 bed • 1 bath • 1209 ft²






































