RG1 2RB - 6 bedroom terraced house for sale in Reading, Berkshire, RG1

View on Property Piper

6 bedroom terraced house for sale in Reading, Berkshire, RG1

Summary - 217 SOUTHAMPTON STREET READING RG1 2RB

6 bed 2 bath Terraced

Licensed six-room HMO near university, station and hospital — ideal for investors..
Licensed six-bedroom HMO, freehold ownership
A licensed six-bedroom HMO in central Reading, offered freehold and ready for an investor or landlord seeking immediate income. The property includes six lettable rooms with one self-contained flat and sits within walking distance of the university, hospital and station — strong tenant demand areas for student and key-worker lets.

Built circa 1900–1929, the mid-terrace Victorian house retains period character but is compact throughout and will benefit from modernisation. Construction is solid brick with assumed no wall insulation and double glazing with unknown install date; buyers should budget for thermal upgrades and possible interior refurbishment to maximise rents and efficiency.

Practical advantages include fast broadband, excellent mobile signal, cheap council tax and a small maintenanceable footprint. The location in a cosmopolitan, private-renting neighbourhood offers many local amenities and strong letting demand, though the small overall size and plot limit alternatives for expansion.

This property suits investors or landlords looking for an HMO with immediate lettable rooms and near-term improvement potential. It is less suitable for buyers seeking a large family home or a turnkey, high-spec residence without further investment.

Property Details

Image Descriptions

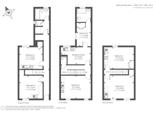
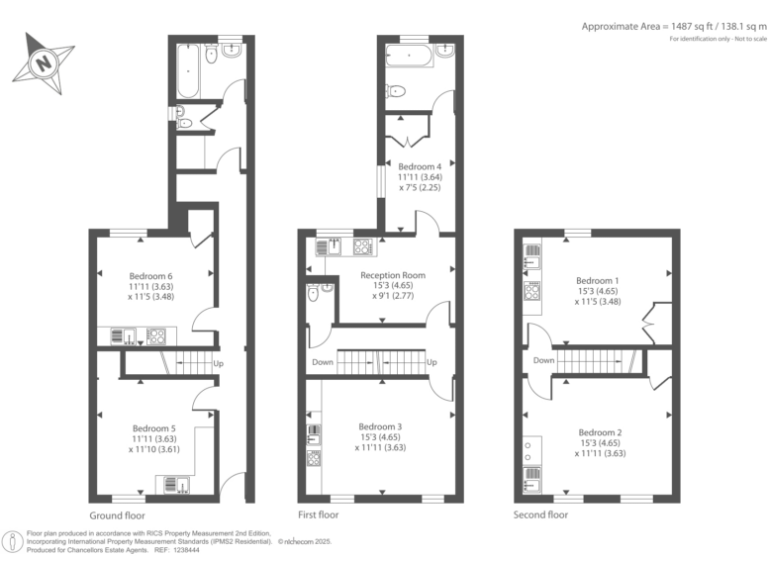
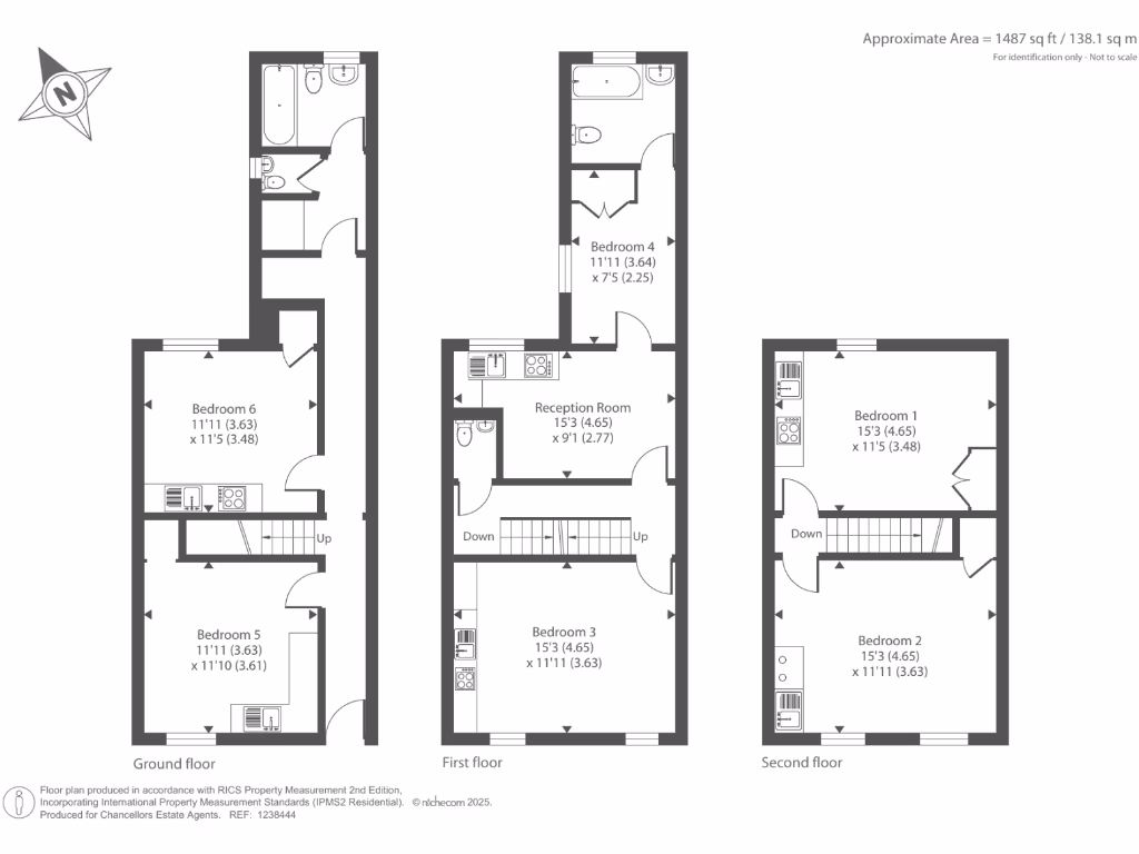
Floorplan Description

Rooms

Textual Property Features

Target Audience

AI Tags

Detected Visual Features

EPC Details

Nearby Schools

Nearest Bars And Restaurants

,,,,}

Nearest General Shops

,,}

Nearest Grocery shops

,,}

Nearest Supermarkets

,,}

Nearest Religious buildings

,,}

Nearest Medical buildings

,,,}

Nearest Airports

}

Nearest Leisure Facilities

,,,,}

Nearest Tourist attractions

,,}

Nearest Train stations

,,,,}

Nearest Bus stations and stops

,,,,}

Nearest Hotels

,,}

Tags

Local Market Stats

AirBnB Data

Similar Properties

Meta

High Res Images

Compatible Images

Low res Images

Thumbnails

Raw Images

High Res Floorplan Images

Compatible Floorplan Images

Low res Floorplan Images

FloorplanImages Thumbnail

Raw Floorplan Images